EasyManua.ls Logo

Wolf ICBSO30-2U/S-TH - Page 16

Wolf ICBSO30-2U/S-TH
76 pages
Print Icon
To Next Page IconTo Next Page
To Next Page IconTo Next Page
To Previous Page IconTo Previous Page
To Previous Page IconTo Previous Page
Loading...
Wolf Warming Drawers 16
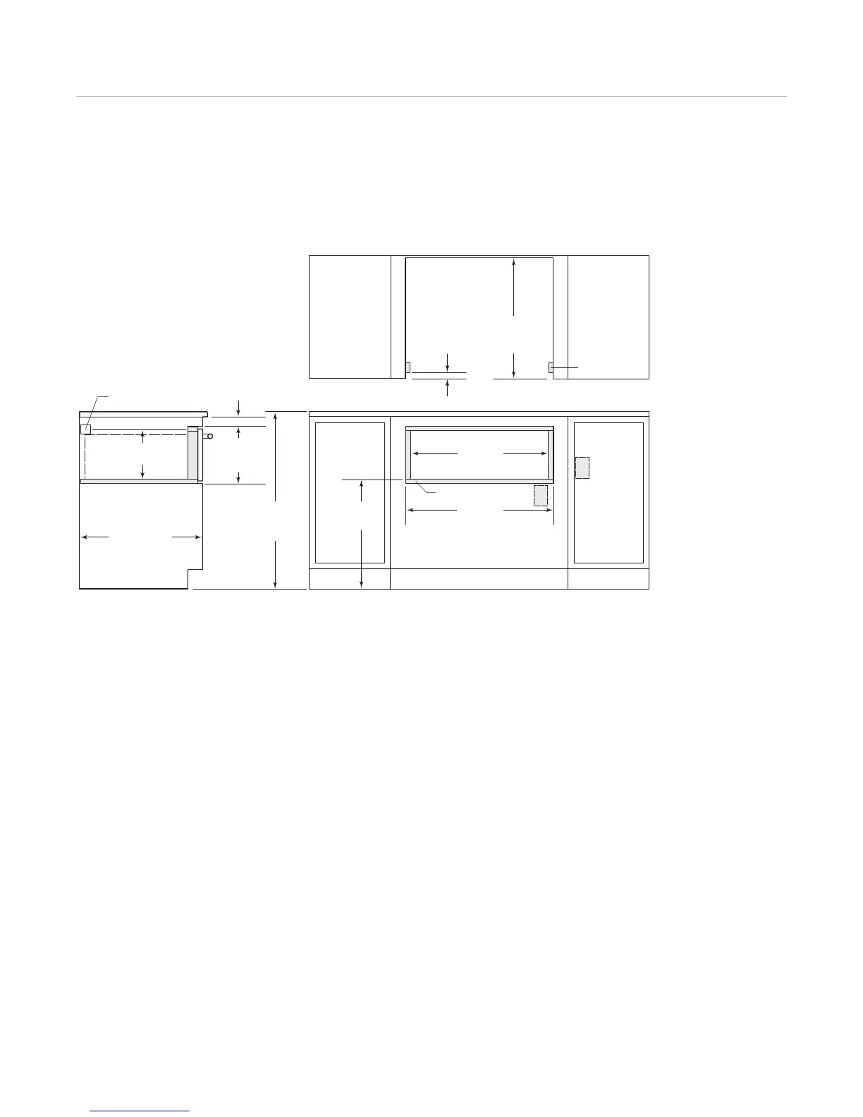
51 mm x 51 mm
ANTI-TIP BLOCK
D
IMENSION
WILL VARY*
597 mm
TYPICAL
*Dimension must accommodate height of anti-tip block and drawer face overlap.
NOTE: Location of electrical supply within opening may require additional cabinet depth. Dashed line represents profile of unit.
FRONT VIEWSIDE VIEW
610 mm
min
CABINET DEPTH
772 mm
F
LUSH INSET WIDTH
727 mm
OPENING WIDTH
22 mm PLATFORM
22 mm TOP AND SIDE CLEATS
914 mm
F
LOOR TO
C
OUNTERTOP
276 mm
F
LUSH INSET
HEIGHT
232 mm
OPENING HEIGHT
E
E
S
IDE CLEATS
610 mm
min
FLUSH INSET
DEPTH
25 mm
T
OP VIEW
E Series, Pro Series or Integrated Drawer Front
FLUSH INSET INSTALLATION

Related product manuals