EasyManua.ls Logo

Wolf ICBSO30-2U/S-TH - Page 39

Wolf ICBSO30-2U/S-TH
76 pages
Print Icon
To Next Page IconTo Next Page
To Next Page IconTo Next Page
To Previous Page IconTo Previous Page
To Previous Page IconTo Previous Page
Loading...
Wolf Integrated Modules 39
wolfappliance.com/specs
E
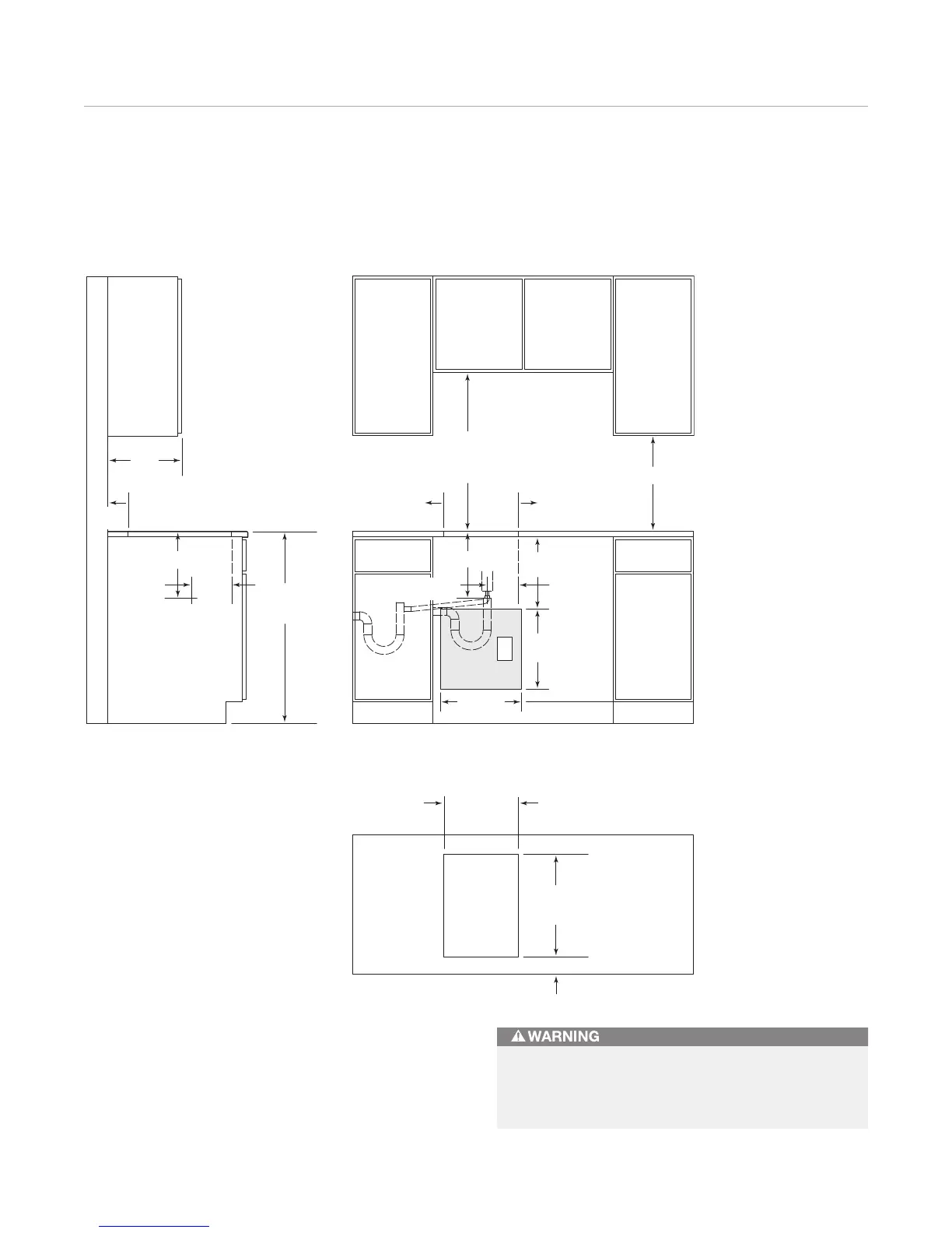
381 mm
381
mm
314 mm
343
mm
314 mm
914 mm
FLOOR TO
COUNTERTOP
762 mm min
COUNTERTOP
TO COMBUSTIBLE
MATERIALS
SEE COUNTERTOP
CUT-OUT BELOW
356 mm
CUT-OUT
WIDTH
COUNTERTOP CUT-OUT
FRONT
489 mm
CUT-OUT
DEPTH
64 mm min
178 mm TO
COMBUSTIBLE*
178 mm TO
COMBUSTIBLE*
51
mm*
SIDE
CABINET
3
30 mm
m
ax
*Minimum clearance from cooktop cut-out to combustible materials up to 457 mm above countertop.
NOTE: Application shown allows for installation of two 381 mm modules side by side.
457 mm min
194
mm
DRAIN
OUTLET
152
mm
DRAIN
OUTLET
DRAIN CONNECTION OPTIONS
The 16 mm outlet from the steamer valve will accept a
drain hose that must flow downward to, and tie into, an
existing sink drain. A separate drain with a freefall may
also be installed, or a heat-resistant receptacle may be
placed under the drain outlet for drainage.
Electric Steamer
STANDARD INSTALLATION
The steamer module must be installed at least 381 mm
from a Wolf fryer module. Contact between water and
hot oil may cause burns from steam and hot oil.

Related product manuals