EasyManua.ls Logo

Wolf ICBSO30-2U/S-TH - Page 6

Wolf ICBSO30-2U/S-TH
76 pages
Print Icon
To Next Page IconTo Next Page
To Next Page IconTo Next Page
To Previous Page IconTo Previous Page
To Previous Page IconTo Previous Page
Loading...
Wolf Built-In Ovens 6
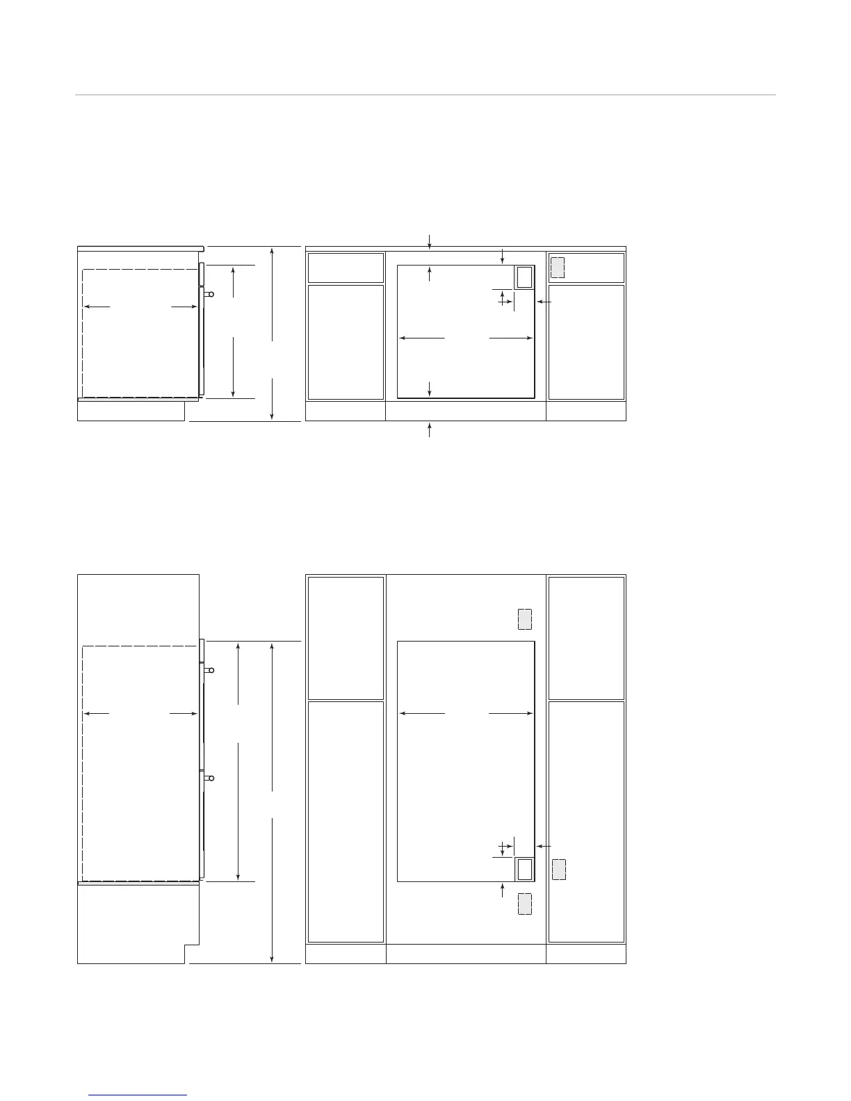
DIMENSION WILL VARY*
121 mm TYPICAL*
914 mm
F
LOOR TO
C
OUNTERTOP
*Dimension must accommodate height of oven trim.
NOTE: Location of electrical supply within opening may require additional cabinet depth. Dashed line represents profile of unit.
E
724 mm
OPENING WIDTH
6
91 mm
OPENING
HEIGHT
610 mm min
O
PENING DEPTH
E
127
m
m
102
m
m
F
RONT VIEWSIDE VIEW
1702 mm
TYPICAL*
1260 mm
OPENING
HEIGHT
E
E
E
724 mm
OPENING WIDTH
E
127
mm
102
mm
610 mm min
OPENING DEPTH
*Dimension must accommodate height of oven trim.
NOTE: Location of electrical supply within opening may require additional cabinet depth. Dashed line represents profile of unit.
FRONT VIEWSIDE VIEW
762 mm E Series Double Oven
STANDARD INSTALLATION
762 mm E Series Single Oven
STANDARD INSTALLATION

Related product manuals