EasyManua.ls Logo

Wolf MUS 85 - Part Numbers

Wolf MUS 85
20 pages
Print Icon
To Next Page IconTo Next Page
To Next Page IconTo Next Page
To Previous Page IconTo Previous Page
To Previous Page IconTo Previous Page
Loading...
16
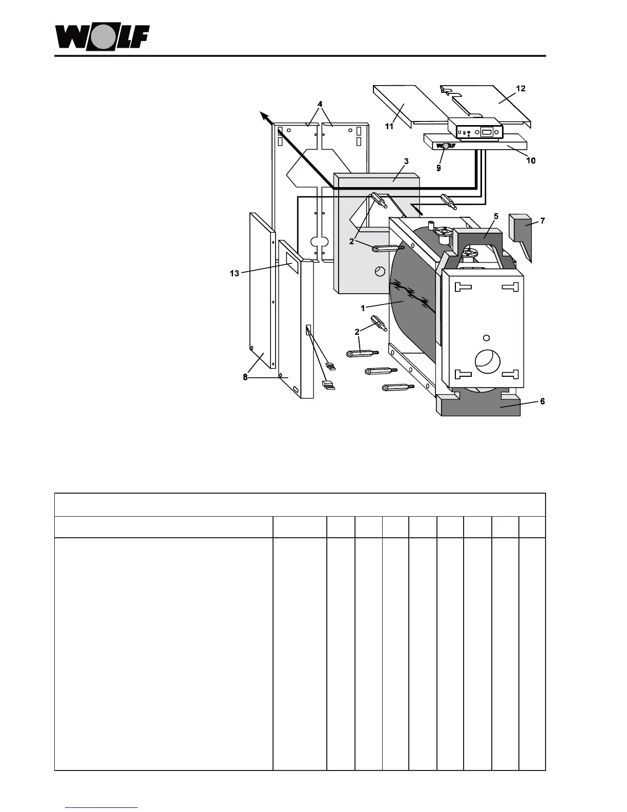
Part numbers
1 Thermal insulation
2 Spacers
3 Thermal insulation
4 Back panels
5 Thermal insulation
6 Thermal insulation
7 Thermal insulation
8 Side panels
9 Wolf label
10 Front panel lid
11 Left-hand rear panel lid
12 Right-hand rear panel lid
13 Type plate
MKS
Steel boiler MKS / MUS 70 up to 550 kW Part no. 85 100 140 190 250 340 420 500
Packing cord for boiler door, 3200 mm long 16 41 401 X X X X X X X X
Gasket for clean-out aperture 39 03 000 X X X X X X X X
Flat seal/flue gas collector box to approx. 3
rd
quarter of ’98 16 08 015 X X X - - - - -
Flat seal/flue gas collector box to approx. 3
rd
quarter of ’98 16 08 016 - - - X X - -
Flat pack./flue gas collector box to approx. 3
rd
quarter of ’98 16 08 017 - - - - - X X X
Sight glass flat packing 39 01 040 X X X X X X X X
Cleaning brush 24 40 240 X X - - - - - -
Cleaning brush 24 40 241 - - X - - - - -
Cleaning brush 24 40 242 - - - X X - - -
Cleaning brush 24 40 243 - - - - - X X X
Sight glass 24 00 125 X X X X X X X X
Sensor well (up to model M 2850) 45 00 150 X X X X X X X X
Sensor well (from model M 2851) 24 25 070 X X X X X X X X
Turbulators 89 00 150 X X - - - - - -
Turbulators 89 00 151 - - X - - - - -
Turbulators 89 00 152 - - - X X - - -
Turbulators 89 00 153 - - - - - X X X
Jamb brick 16 10 415 X X X - - - - -
Jamb brick 16 10 416 - - - X X - - -
Jamb brick 16 10 417 - - - - - X X X
Casing and insulation from approx. 3
rd
quarter of ’98 89 00 557 X X - - - - - -
Casing and insulation from approx. 3
rd
quarter of ’98 89 00 561 - - X - - - - -
Casing and insulation from approx. 3
rd
quarter of ’98 89 00 562 - - - X X - - -
Casing and insulation from approx. 3
rd
quarter of ’98 89 00 570 - - - - - X X X

Other manuals for Wolf MUS 85

Related product manuals