EasyManua.ls Logo

Wolf R606DG - Page 4

Wolf R606DG
5 pages
Print Icon
To Next Page IconTo Next Page
To Next Page IconTo Next Page
To Previous Page IconTo Previous Page
To Previous Page IconTo Previous Page
Loading...
Planning Information
60" (1524) Gas Ranges
MODELS R606DG / R606F / R606CG / R604CF / R604GF
Dimensions in parentheses are in
millimeters unless otherwise specified.
4
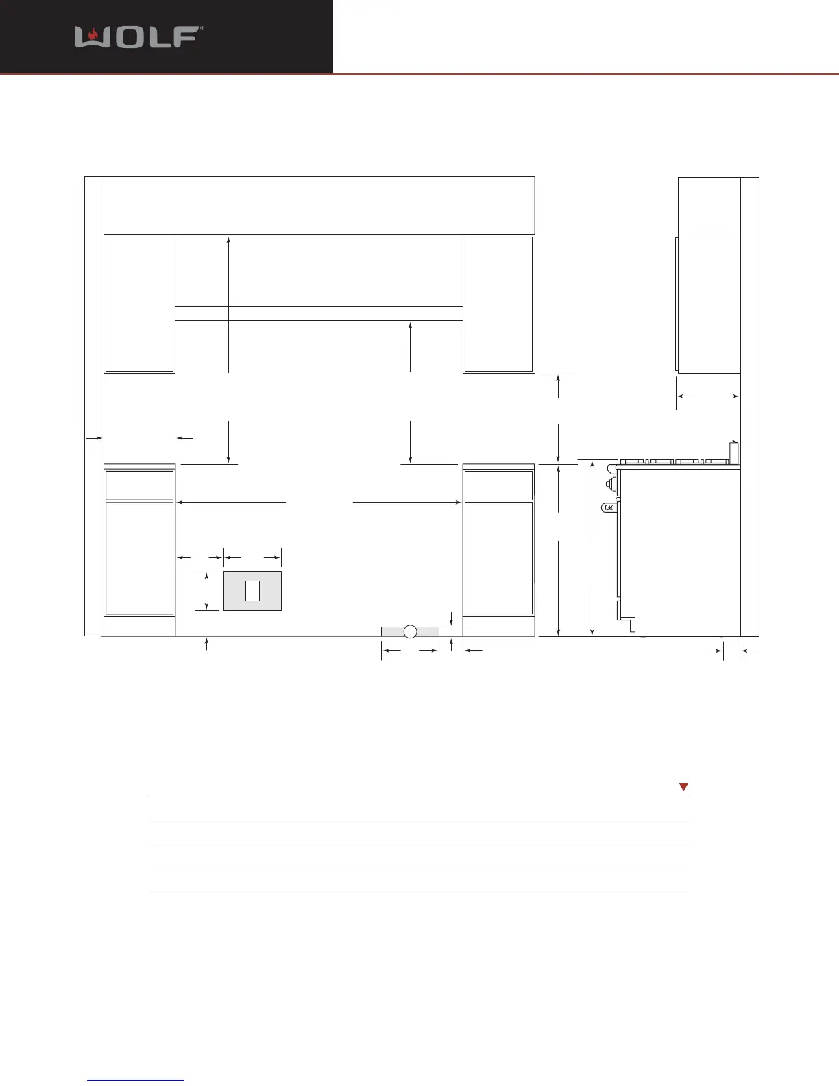
INSTALLATION SPECIFICATIONS
DIMENSIONS
Overall Width of Range 60" (1524)
Finished Rough Opening Width 60
1
/4" (1530)
Location of Gas Supply Within shaded area
Location of Electrical Within shaded area
See Installation Instructions shipped with unit for detailed specifications.
Refer to the Wolf Design Guide for additional specifications.
44"min (1118)
COUNTERTOP
TO COMBUSTIBLE
MATERIALS
30"(762) TO 36"(914)
COUNTERTOP
TO BOTTOM OF
VENTILATION HOOD
VENTILATION HOOD
60
1
/4" (1530)
FINISHED ROUGH OPENING WIDTH
ISLAND INSTALLATIONS: 12" (305) MINIMUM CLEARANCE FROM BACK
OF RANGE TO COMBUSTIBLE REAR WALL ABOVE COUNTERTOP –
0" (0) TO NON-COMBUSTIBLE MATERIALS
G
5"
(127)
2"
(51)
12"
(305)
E
12"
(305)
10"
(254)
5
1
/2"
(140)
8"
(203)
LOCATION OF GAS SUPPLY EXTENDS
3" (76) ON FLOOR FROM BACK WALL
3"
(76)
36"
(914)
18"min (457)
TO COUNTERTOP
37"
(940) TO
COOKING
SURFACE
13" max
(330)
6"min (152)
TO
COMBUSTIBLE
MATERIALS
(BOTH SIDES)

Related product manuals