EasyManua.ls Logo

Wolf SO30F/S - Page 10

Wolf SO30F/S
120 pages
Print Icon
To Next Page IconTo Next Page
To Next Page IconTo Next Page
To Previous Page IconTo Previous Page
To Previous Page IconTo Previous Page
Loading...
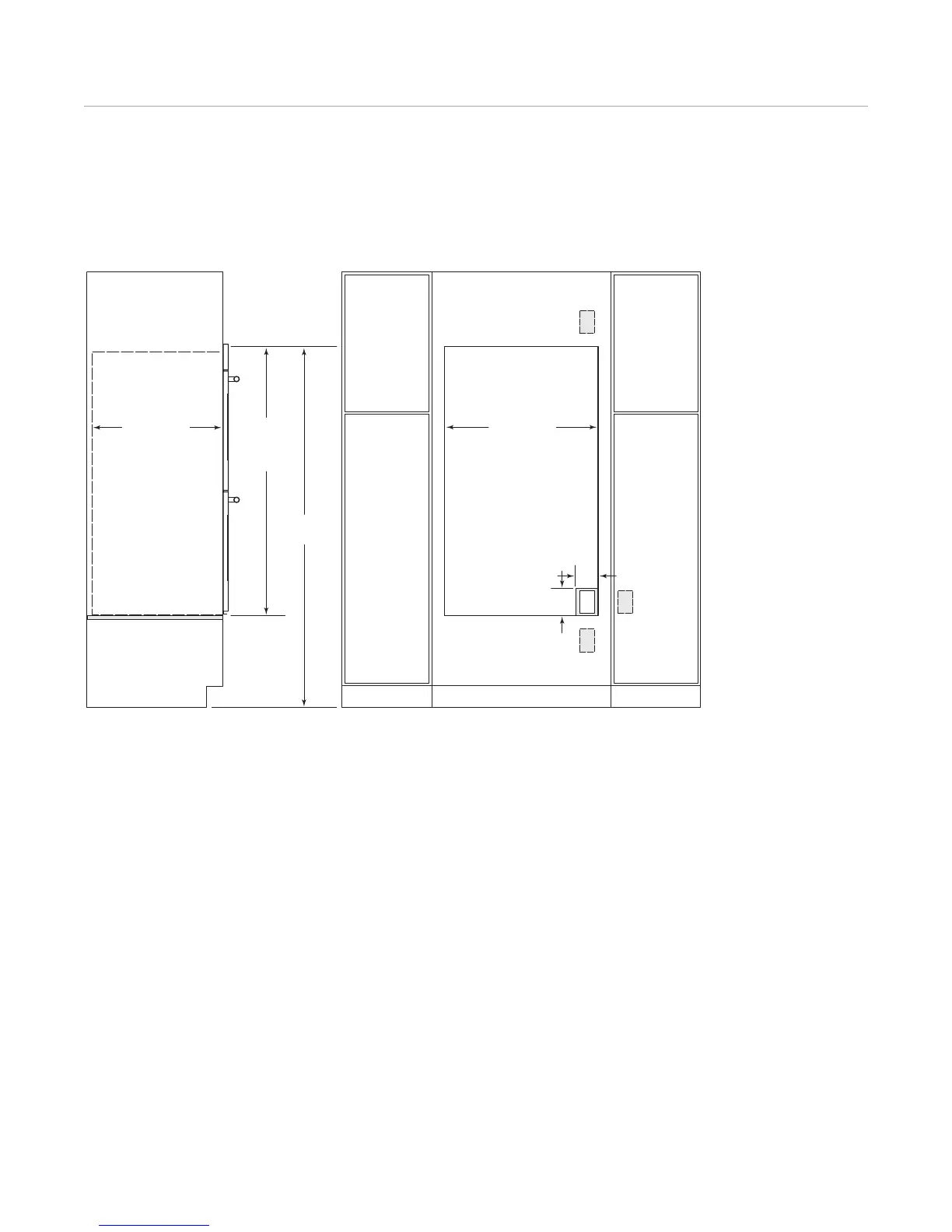
Wolf Built-In Ovens 10
67" (1702)
TYPICAL*
49
5
/8"
(1260)
OPENING
HEIGHT
E
E
E
28
1
/2" (724)
OPENING WIDTH
E
5"
(127)
4"
(102)
24" (610) min
OPENING DEPTH
*Dimension must accommodate height of oven trim.
NOTES: Location of electrical supply within opening may require additional cabinet depth.
Dashed line represents profile of unit.
FRONT VIEWSIDE VIEW
30" (762) L Series and E Series Double Oven
STANDARD INSTALLATION

Other manuals for Wolf SO30F/S

Related product manuals