EasyManua.ls Logo

Wolf SO30F/S - Flush Inset Installation

Wolf SO30F/S
120 pages
Print Icon
To Next Page IconTo Next Page
To Next Page IconTo Next Page
To Previous Page IconTo Previous Page
To Previous Page IconTo Previous Page
Loading...
Wolf Built-In Ovens 11
wolfappliance.com/specs
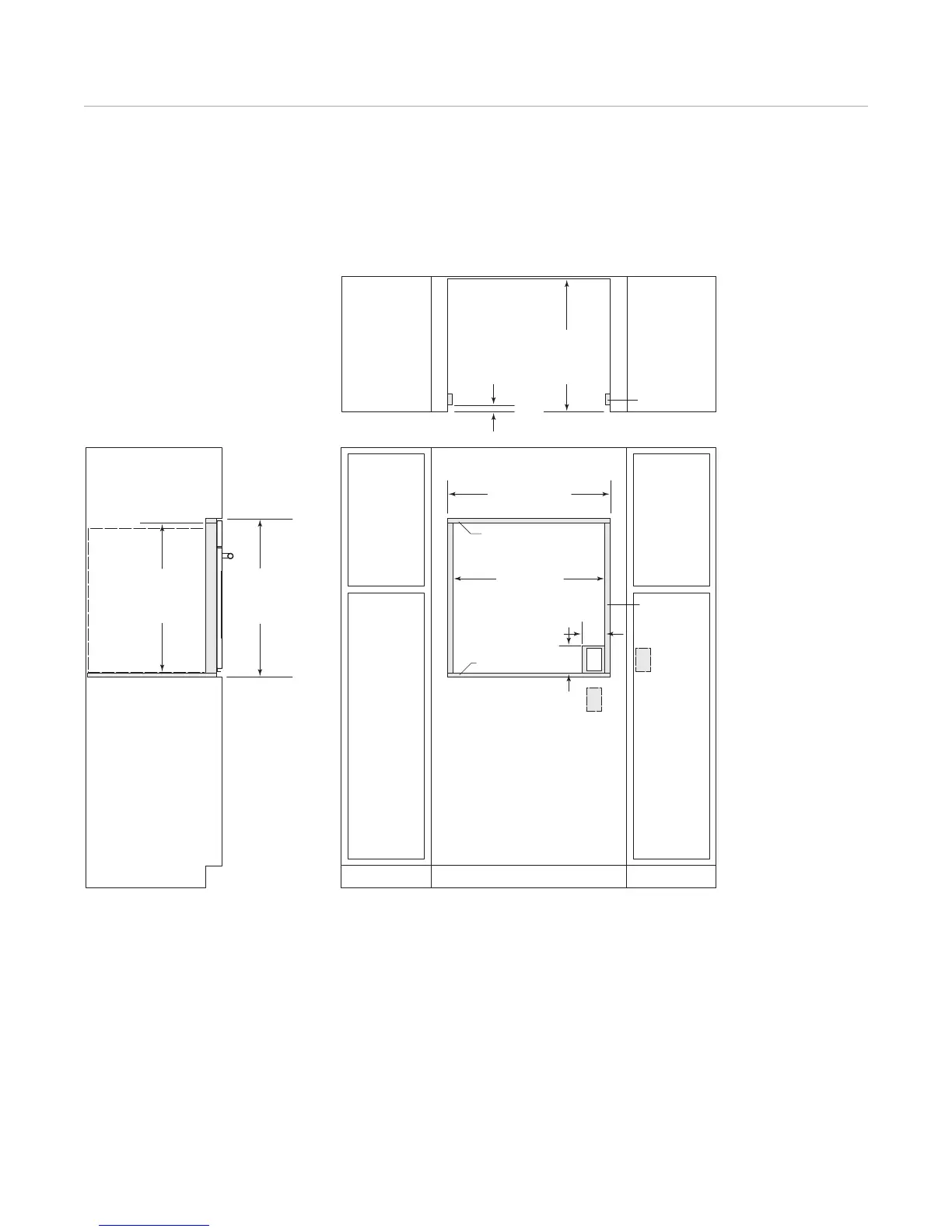
27
3
/16"
(691)
OPENING
HEIGHT
28
1
/2"
(724) min
FLUSH INSET
HEIGHT
28
1
/2" (724)
OPENING WIDTH
30
3
/8" (772) min
FLUSH INSET WIDTH
7
/8"(22) TOP CLEAT
7
/16" (11)
BOTTOM CLEAT
SIDE CLEATS
24
3
/4"*
(629) min
FLUSH INSET
DEPTH
1" (25)*
*For black glass model, increase dimension by
1
/4" (6).
NOTES: Minimum base support 250 lbs
(113 kg).
Location of electrical supply within opening may require additional cabinet depth.
Cleats may be visible and should be finished to match cabinetry.
Dashed line represents profile of unit.
FRONT VIEWSIDE VIEW
TOP VIEW
1" (25)
SIDE CLEATS
5"
(127)
4"
(102)
E
E
E
30" (762) E Series Single Oven
FLUSH INSET INSTALLATION

Other manuals for Wolf SO30F/S

Related product manuals