EasyManua.ls Logo

Worcester 30Ri Compact - 7.2 WIRING DIAGRAM

Worcester 30Ri Compact
56 pages
Print Icon
To Next Page IconTo Next Page
To Next Page IconTo Next Page
To Previous Page IconTo Previous Page
To Previous Page IconTo Previous Page
Loading...
FAULT FINDING AND DIAGNOSIS
Greenstar Ri Compact 6 720 646 610 (2013/12) 51
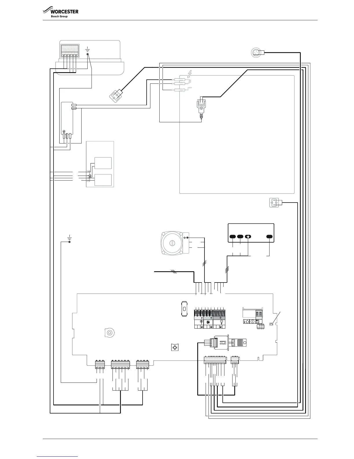
7.2 WIRING DIAGRAM
HCM
Worcester 24V
controls point
Fuse, slow
F 5A H 230 V
X7
X7
X3
X8
X12
X11 X10
LN
LR
LN
LN
21
13 1
1
1
1
6
4
13
4
TEMPERATURE
CONTROL AND
RESET
EMS
230V
IN
LN
230V
OUT
LN
LR
LN
FLAME SENSE
ELECTRODE
SPARK
ELECTRODES
FLOW
NTC
MAX SAFETY NTC
FLUE
STAT
FAN
FLAME SENSE
GROUND
GAS
VALVE
SAFETY
SOLENOID
SAFETY
SOLENOID
Fan wiring:
Live = brown
Neutral = blue
G/Y
6720646610-19.3Wo
Red
Blue
Orange
RETURN
NTC
G/Y
Black
Black
Blue
Green
Red
Blue
Blue
Blue
Red
Orange
Green
Brown
Yellow
Red
Red
White
White
White
White
Orange
Orange
EXTERNAL
PUMP
MAINS
SUPPLY
Neutral
Live
Pump Live
Pump Neutral
Pump Earth
Mains Live
Mains Neutral
Mains Earth
SL
L
N
230V WIRING CENTER/
JUNCTION BOX
WC/JB Live (LS)
WC/JB Neutral
WC/JB Earth
Switched Live (LR)
Live
Neutral
Switched Live
G/Y
G/Y
DIAGNOSTIC
INPUT
SPARK
GENERATOR
LN
Service Mode
Switch

Table of Contents

Related product manuals