EasyManua.ls Logo

Xilin CDDR - 1. Configuration Diagram; 1.1 CDDR Configuration Diagram

Xilin CDDR
60 pages
Print Icon
To Next Page IconTo Next Page
To Next Page IconTo Next Page
To Previous Page IconTo Previous Page
To Previous Page IconTo Previous Page
Loading...
2
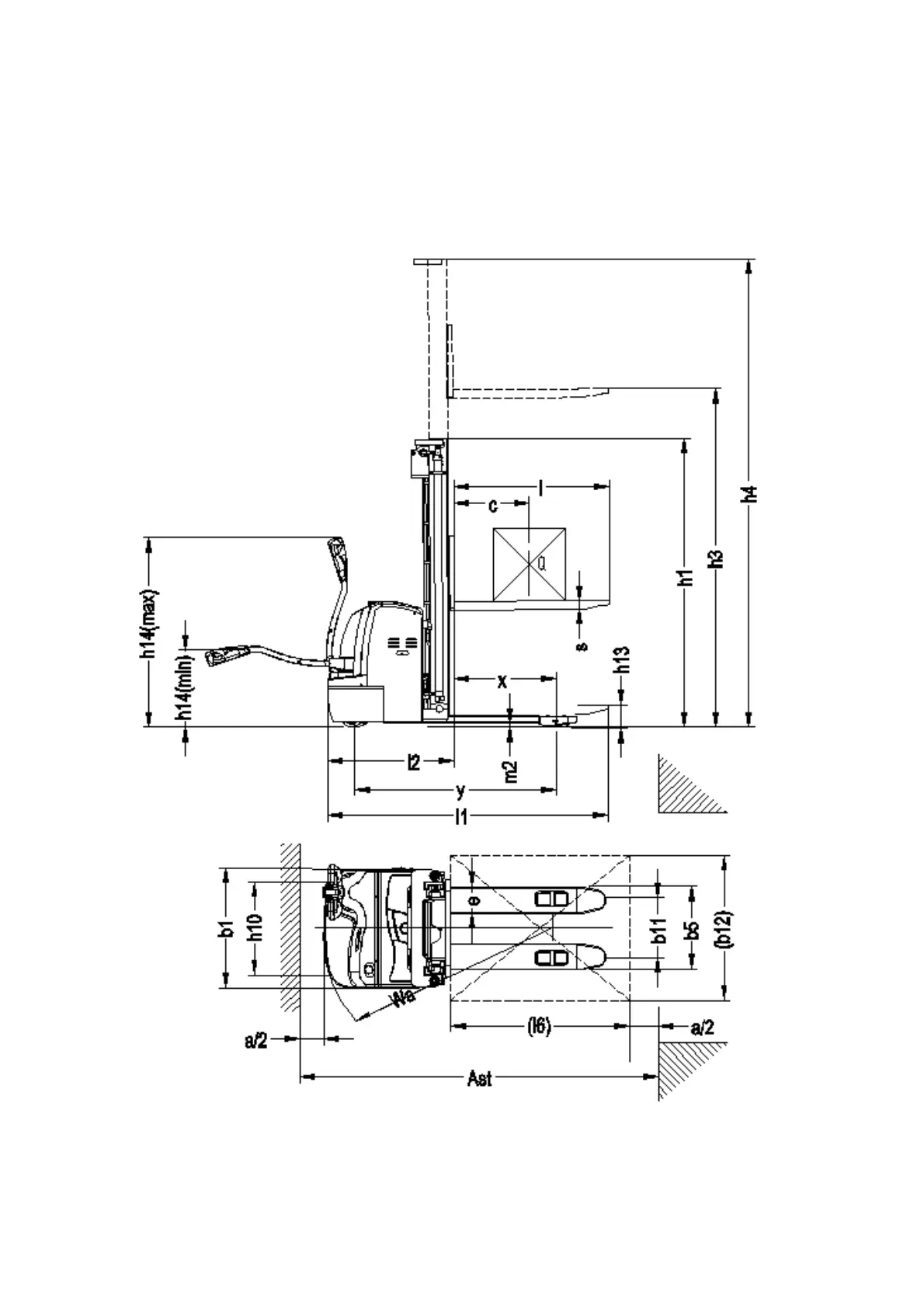
1.
Configuration diagram
1.1 CDDR configuration diagram