EasyManua.ls Logo

Yale ZAPI MPW050-E - Page 35

Yale ZAPI MPW050-E
68 pages
Print Icon
To Next Page IconTo Next Page
To Next Page IconTo Next Page
To Previous Page IconTo Previous Page
To Previous Page IconTo Previous Page
Loading...
2200 YRM 1067 Troubleshooting
Dash Display
Controller LED Handset or PC
AL10 LEDON(NoFlashing) Driver Shorted
CONDITION
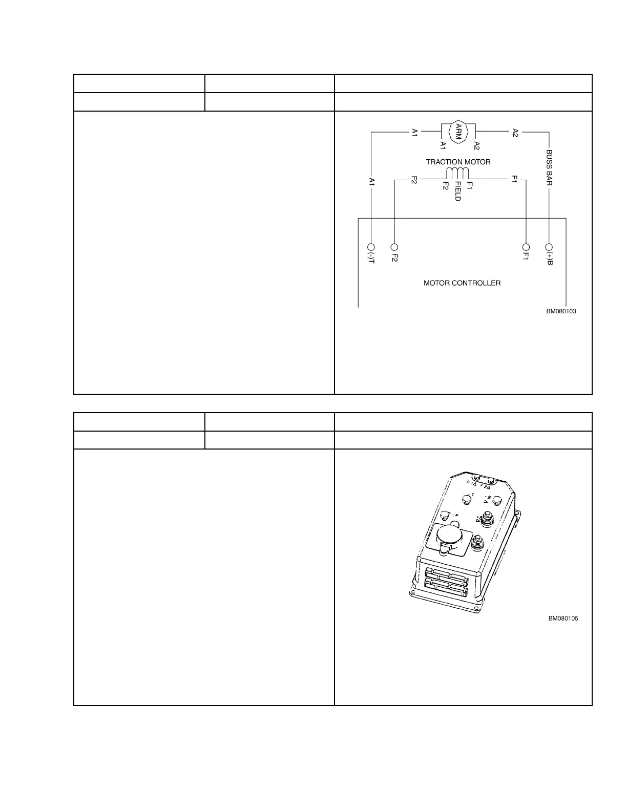
Voltage measured at field connections is not correct.
TRUCK RESPONSE
Traction and hydraulic functions disabled.
POSSIBLE CAUSES AND TEST PROCEDURES
Cable connection to motor field is loose or damaged.
Verify connection of field wires to motor and con-
troller.
Motor field winding is shorted to chassis.
Check motor field for shorts to chassis.
Main contactor coil shorted/open.
Check contactor coil for correct resistance of 22.0
ohms.
Refer to the section Electrical System 2200 YRM
1007 for more information on troubleshooting electrical
system circuits and components.
LOGIC
This fault occurs when the
voltage measured at the field connections
is not the expected value.
Dash Display
Controller LED Handset or PC
AL66 Continuous Flashing BATTERY LOW
CONDITION
Battery discharged and requires charging.
TRUCK RESPONSE
Hydraulic lift function disabled.
POSSIBLE CAUSES AND TEST PROCEDURES
Battery voltage is low.
Charge or replace battery. The battery generally
needs 8 hours to charge when fully discharged.
If none of previous components solved problem, then
replace controller.
LOGIC
Controller measures low
battery voltage over multiple checks during
traction or hydraulic operation.
31

Related product manuals