EasyManua.ls Logo

Yamaha 60FETO - Page 111

Yamaha 60FETO
329 pages
Print Icon
To Next Page IconTo Next Page
To Next Page IconTo Next Page
To Previous Page IconTo Previous Page
To Previous Page IconTo Previous Page
Loading...
3-23
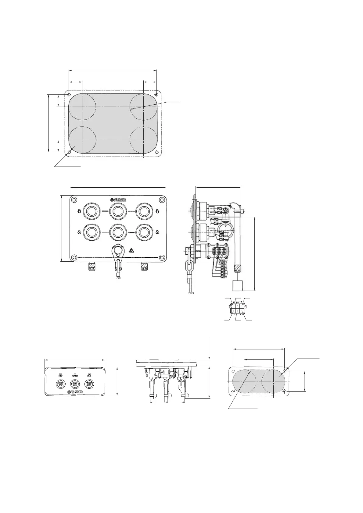
REMOTE SWITCH TYPES AND APPLICATIONS
TRIPLE IG SWITCH
Cut out shaded area
130 (5.12)
184 (7.24)
Cut out shaded areaCut out shaded areaCut out shaded area
167 (6.57)
25 (0.98)
25 (0.98)
113 (4.45)
24 (0.94) 24 (0.94)
52.4
(2.06)
5.5 (0.22)
mm (in.)
140 (5.51)
86 (3.39)
Or
YBr
P
W
B
3
4
mm (in.)
55 (2.17)
Cut out shaded area
1
14 (4.49)
55.2 (2.17)
97.4 (3.83)
5.6 (0.22)
61.5 (2.42) 12 (0.47)
38.4
(1.51)
44.45 (1.75)

Table of Contents

Related product manuals