EasyManua.ls Logo

Yardistry YM12842X - Page 47

Default Icon
108 pages
Print Icon
To Next Page IconTo Next Page
To Next Page IconTo Next Page
To Previous Page IconTo Previous Page
To Previous Page IconTo Previous Page
Loading...
47 support@yardistrystructures.com
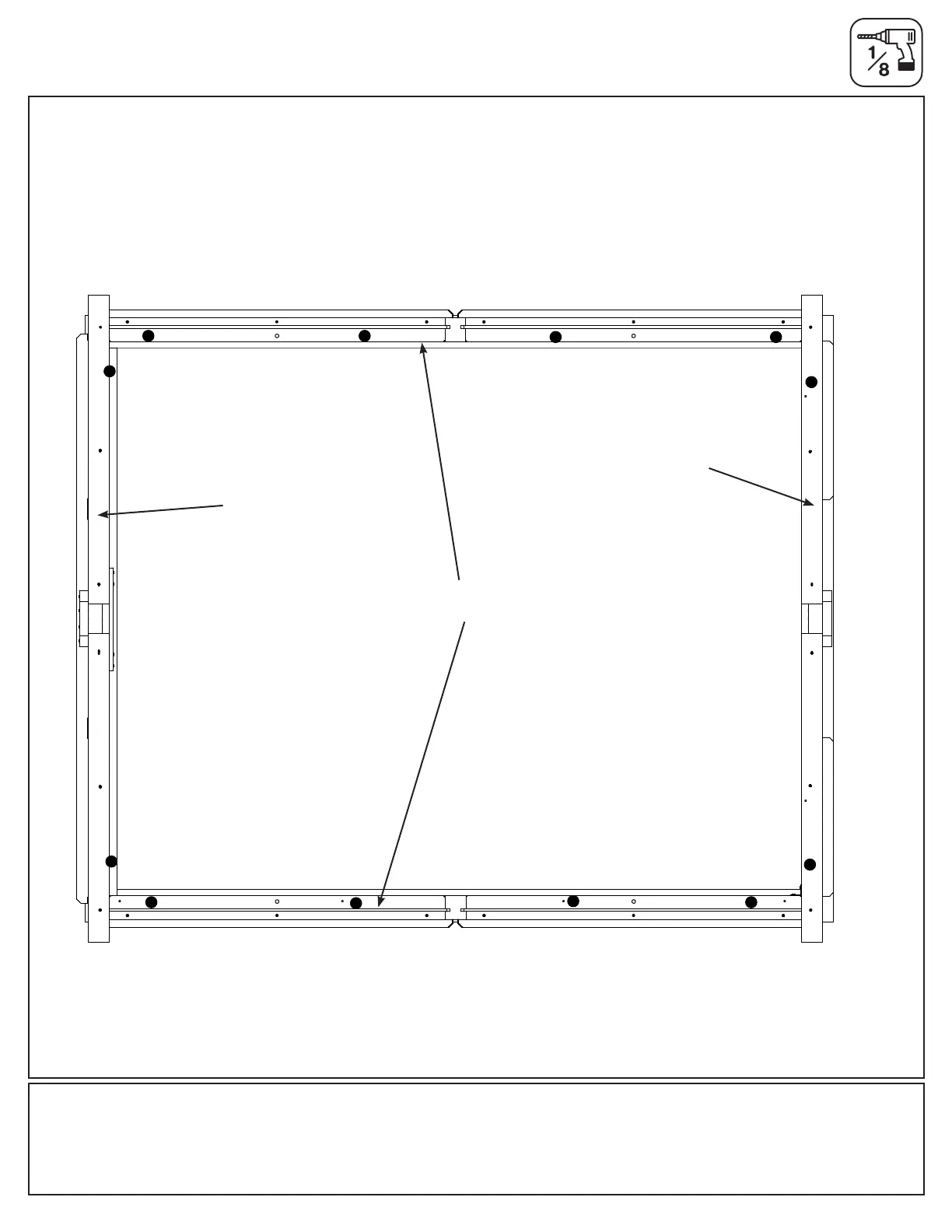
Step 9: Secure Assembly to Base
A: Using the purchased hardware as mentioned on page 7, pre-drill then secure the Front Wall, Back Wall
and Side Walls to the base in the locations shown in F9.1.
#8 x 3” Wood Screws x14
Connects FRONT WALL, BACK AND
SIDE WALLS to the 4 x 4 base.
Pre-drill prior to fastening, into the
Crosses of each panel at locations
shown.
Side Wall
Assembly
Back Wall
Assembly
Front Wall
Assembly
F9.1