EasyManua.ls Logo

Yardistry YM12842X - Page 73

Default Icon
108 pages
Print Icon
To Next Page IconTo Next Page
To Next Page IconTo Next Page
To Previous Page IconTo Previous Page
To Previous Page IconTo Previous Page
Loading...
73 support@yardistrystructures.com
C
onnects WOODEN GUSSET to LEFT and
RIGHT POSTS, BACK POSTS and MID, SHORT
POSTS
#8 X 3 Wood Screws
C
onnects WOODEN GUSSET to LEFT and
RIGHT POSTS, BACK POSTS and MID, SHORT
POSTS
#8 X 3 Wood Screws
C
onnects WOODEN GUSSET to LEFT and
RIGHT POSTS, BACK POSTS and MID, SHORT
POSTS
#8 X 3 Wood Screws
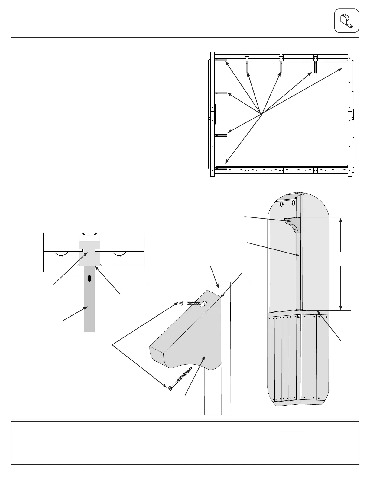
Step 19: Upper Shelf Assembly
Part 1
Note: Upper and Lower Shelves can be installed on
either Side Wall.
A: On the Back Wall, at each post measure 31” (78.74
cm) up from the top of (1106) Back Wall Sill and make a
mark. Place one (1138) Wooden Gusset on each post
so the top of the gusset is at the measured mark. (1138)
Wooden Gusset to be centered on (1113) Back Posts and

Post. Attach Gussets to posts with two #8 x 3” Wood
Scews per gusset. (F19.1, F19.2, F19.3 and F19.4)
B: On one Side Wall, at each post measure 31” (78.74
cm) up from the top of (1107) Side Wall Sill and make a
mark. Place one (1138) Wooden Gusset on each post
so the top of the gusset is at the measured mark. (1138)
Wooden Gusset to be centered on (1110) Mid Post and

Left or Right Post. Attach Gussets to posts with two #8
x 3” Wood Scews per gusset. (F19.1, F19.2, F19.3 and
F19.4)
Back Posts, Mid
Posts and Short
Post Assemblies
Left and
Right Posts
(1138)
Wooden
Gusset
Hardware
16 x #8 x 3” Wood Screw
Wood Parts
8 x (1138) Wooden Gusset
#8 x 3”
Wood
Screw
Side Wall
Back
Wall
(1138)
Wooden
Gusset
(1138)
Wooden
Gusset
F19.1
F19.2
F19.3
Flush
Centered
Top View
C
onnects WOODEN GUSSET to LEFT and
RIGHT POSTS, BACK POSTS and MID, SHORT
POSTS
#8 X 3 Wood Screws
F19.4
Roof removed
for clarity
Sill
31”
78.74 cm
Post
(1138)
Wooden
Gusset
(hidden)