EasyManua.ls Logo

YASKAWA Varispeed-616G3 - Connection Diagrams: Run;Stop Control; Run;Stop via Magnetic Contactor

YASKAWA Varispeed-616G3
46 pages
Print Icon
To Next Page IconTo Next Page
To Next Page IconTo Next Page
To Previous Page IconTo Previous Page
To Previous Page IconTo Previous Page
Loading...
TYPICAL
CONNECTION
DIAGRAM
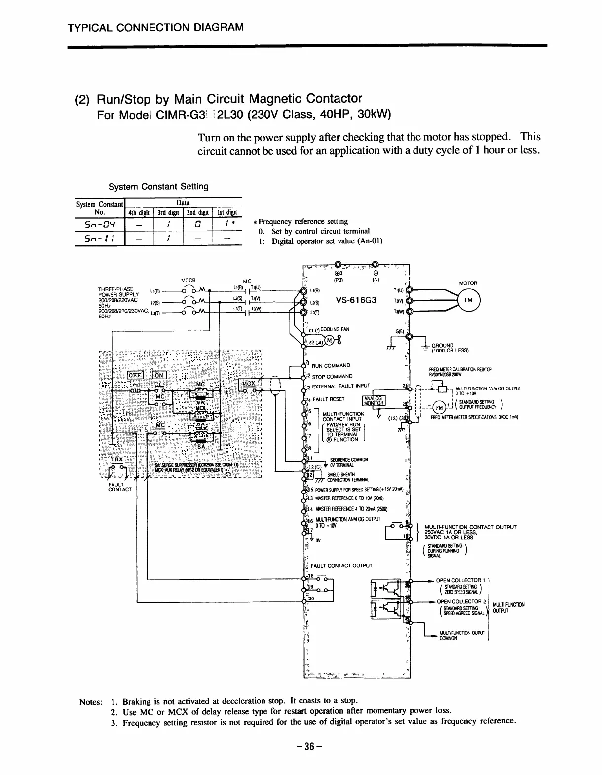
(2)
Run/Stop
by
Main
Circuit
Magnetic
Contactor
For
Model
CIMR-G3,'-
;2L30
(230V
Class,
40HP,
30kW)
System
Constant
Data
_
-
No
.
4th
digit
3rd
digit
2nd
digit
lst
digit
SA_U~
-
i
u
Sri
_J~
-
-
-
Notes
:
System
Constant
Setting
MCCB
PHASE
n
THREE-
Ii(R)
--------
0
POVdER
SUPPLY
`
2
/208/220VAC
I
.,
0
~(S)
--
50H7
"
200/208/2"0/230VAC,
U(T)
60H7
Turn
on
the
power
supply
after
checking
that
the
motor
has
stopped
.
This
circuit
cannot
be
used
for
an
application
with a duty
cycle
of
1
hour
or
less
.
*
Frequency
reference
setting
0
.
Set by
control
circuit
terminal
I :
Digital
operator
set
value
(An-O1)
RUN
COMMAND
STOP
COMMAND
3
EXTERNALFAULT
INPUT
AL
~M
NIT
R
. a .
-
3
6-
VS-616G3
MULTIFUNCTION
l
v
K
.
CONTACT
INPUT
(12)
(3j
FWD/REV
RUN
SELECT
IS
SET
TOTERMINAL
©
FUNCTION
' ;
SHIELD
SHEATH
CONNECTION
TERMINAL
5
POWER
SUPPLY
FOR
SPEED
SETTING
(+
15V
2011A)
33
MASTER REFERENCE
0
TO
10V
(20KD)
MOTOR
FRED
METER
CALIBRATION
RES-TOP
RV30YN20SB
20KW
FREDMETER
(METER
SPECIF .CATIONS
3VX
I
-A)
MULTI-FUNCTION
CONTACT
OUTPUT
250VAC
1A
OR
LESS,
30VDC
1A
OR
LESS
STANDARD
SETTING
(
DURING
RUNNING
)
SIGNAL
STANDARD
SETTING
SPEED
AGREED
SIGNAL
MULTI
FUNCTION
OUPUI
COMMON
MULTIFUNCTION
OUTPUT
l
.
Braking
is
not
activated
at
deceleration
stop
.
It
coasts
to
a
stop
.
2
.
Use
MC
or
MCX
of
delay
release
type
for
restart
operation
after
momentary power
loss
.
3
.
Frequency
setting
resistor
is
not
required
for the
use
of
digital
operator's
set
value
as
frequency
reference
.
for more: efesotomasyon - Yaskawa drive

Related product manuals