EasyManua.ls Logo

Yazaki CH-MG150 - Equipment Dimensions

Yazaki CH-MG150
28 pages
Print Icon
To Next Page IconTo Next Page
To Next Page IconTo Next Page
To Previous Page IconTo Previous Page
To Previous Page IconTo Previous Page
Loading...
4
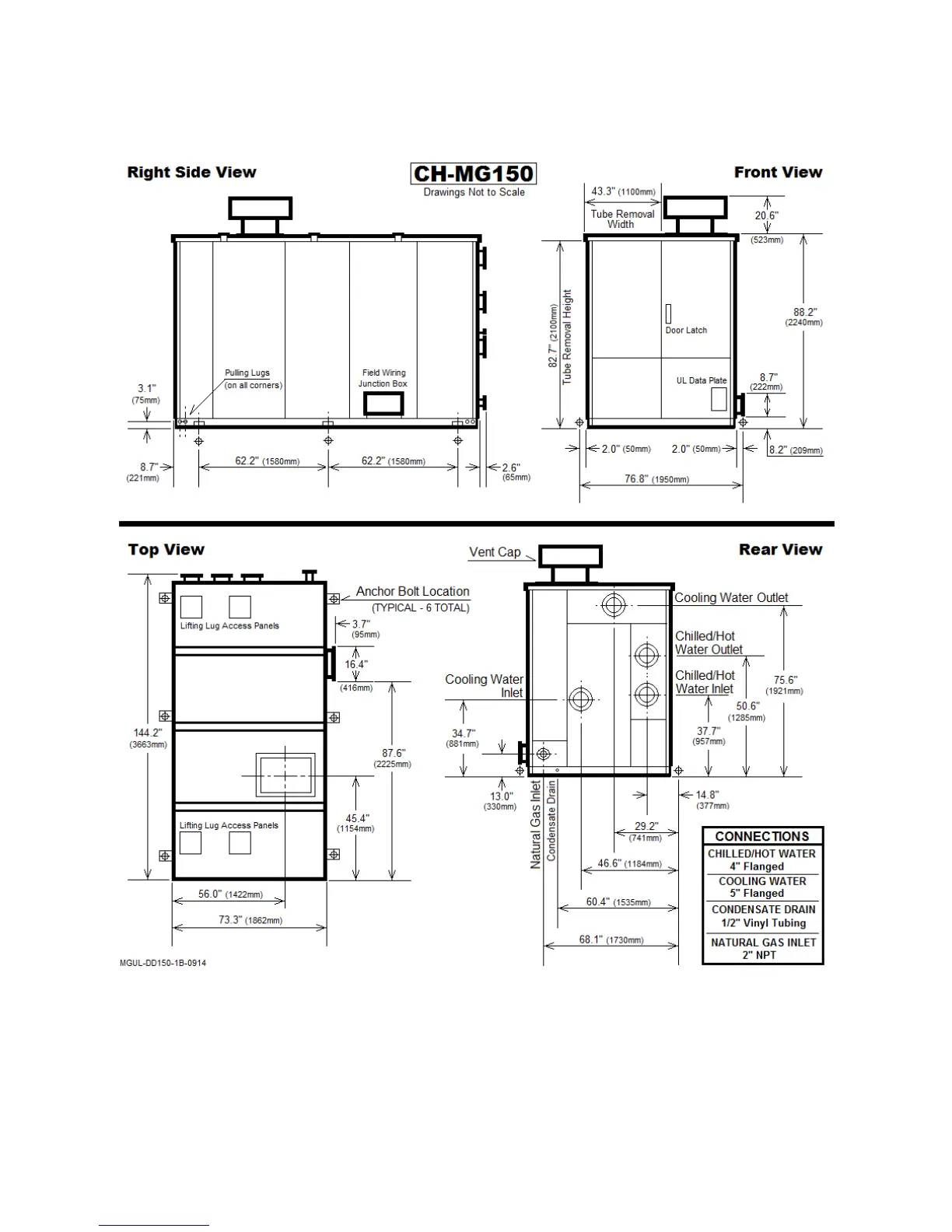
EQUIPMENT DIMENSIONS
Figure 1 MG150 Dimensions