EasyManua.ls Logo

York PCG6B36 - Ladder Wiring Diagram

York PCG6B36
26 pages
Print Icon
To Next Page IconTo Next Page
To Next Page IconTo Next Page
To Previous Page IconTo Previous Page
To Previous Page IconTo Previous Page
Loading...
5285473-UIM-E-1217
Johnson Controls Unitary Products 23
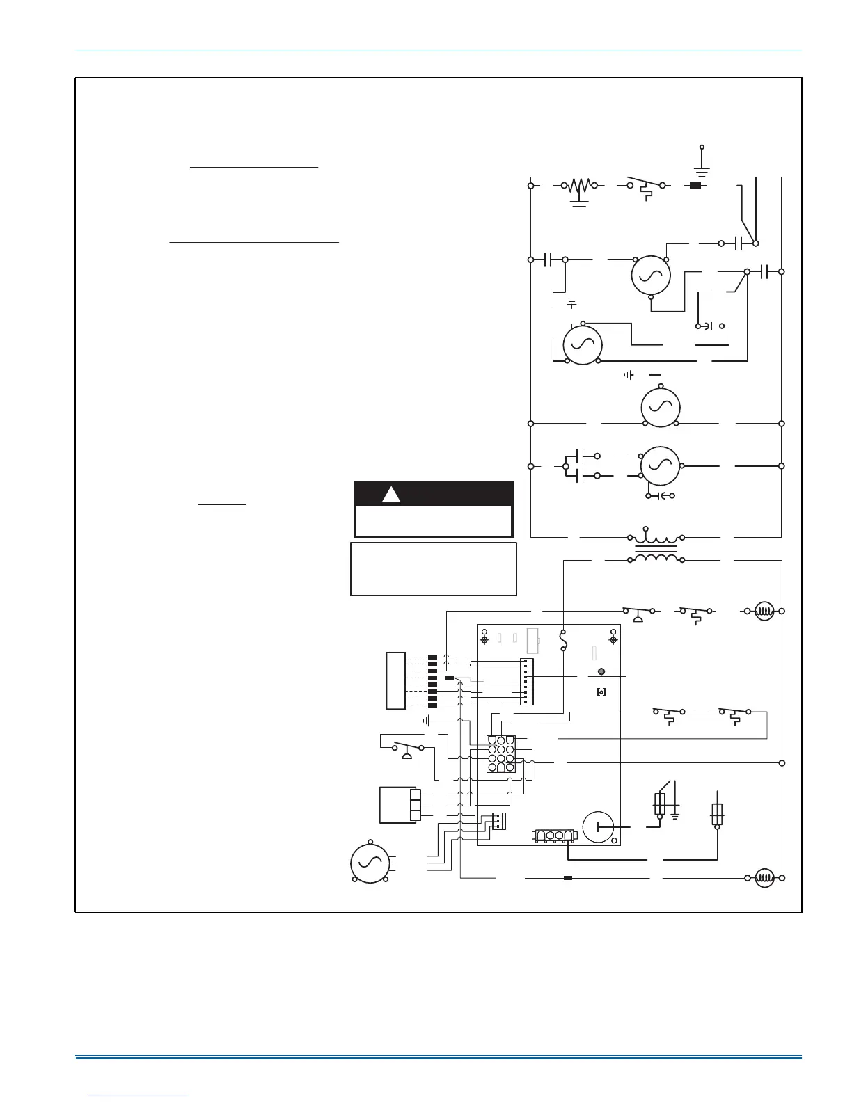
FIGURE 14: Ladder Wiring Diagram
2 STAGE COOLING UNIT WITH GAS HEAT
208/230-3-60
LADDER WIRING DIAGRAM
CAUTION
!
OPEN ALL DISCONNECTS
BEFORE SERVICING THIS UNIT.
DSI FAULT CODES
OPERATIONAL FAULT CODES
NORMAL OPERATION
GREEN HEARTBEAT Normal Operation / Standby mode
AMBER HEARTBEAT Call for furnace heat active
RAPID GREEN FLASHES Control in Factory Test mode
4 AMBER FLASHES No G from thermostat with Y call
NONE Power o or open fuse
RAPID AMBER FLASHES Low ame sense current
1 RED FLASH Flame sensor with gas o
STEADY ON (ANY COLOR) Control failure
2 RED FLASHES Check pressure switch wiring
3 RED FLASHES Check pressure switch, wiring, draft inducer
4 RED FLASHES Airow problem
5 RED FLASHES Flame rollout
6 RED FLASHES Repeated pressure switch cycles
7 RED FLASHES Failed to light burners
8 RED FLASHES Loss ofame during call for heat
9 RED FLASHES Incorrect polarity
10 RED FLASHES Gas valve shorted “ON”
11 RED FLASHES Check blower motor/wiring
12 RED FLASHES Missing model ID plug or improperly
connected
NOTES
1. ALL FIELD WIRING TO BE ACCOMPLISHED
FOLLOWING CITY, LOCAL, AND/OR NATIONAL
CODES IN EFFECT AT THE TIME OF INSTALLATION
OF UNIT.
2. CAUTION: LABEL ALL WIRES PRIOR TO
DISCONNECTION WHEN SERVICING CONTROLS.
WIRING ERRORS CAN CAUSE IMPROPER AND
DANGEROUS OPERATION. IF ANY OF THE WIRING AS
SUPPLIED WITH UNIT MUST BE REMOVED, IT MUST
BE REPLACED WITH TYPE 105 C 600 VOLT WIRE OR
EQUIVALENT AND CLEARLY RENUMBERED FOR
IDENTIFICATION. VERIFY PROPER OPERATION AFTER
SERVICING.
3. FACTORY WIRED FOR 230 VOLT THREE PHASE SUPPLY
POWER. FOR 208 VOLT THREE PHASE SUPPLY POWER,
MOVE BLACK TRANSFORMER WIRES FROM THE 230 VOLT
TAP TO THE 208 VOLT TAP.
4. MOTORS ARE INHERENTLY PROTECTED.
5. SEE UNIT NAMEPLATE FOR MAXIMUM FUSE
AND/OR CIRCUIT BREAKER SIZE AND MINIMUM
CIRCUIT AMPACITY.
6. SELECT INDOOR BLOWER SPEED TO REMAIN
WITHIN THE TEMPERATURE RISE RANGE ON
THE NAMEPLATE IN HEATING AND TO OBTAIN
APPROXIMATELY 400 CFM/TON IN COOLING.
NOTICE
THIS UNIT IS WIRED FOR THREE-PHASE
POWER DO NOT CONNECT TO A
SINGLE PHASE SUPPLY
5282990-UWD-A-0816
PRESSURE
SWITCH
THERMOSTAT
BLK BLK
YEL
BLU
KLB
RED
BRN/WHT
RED
RUPKLB
PUR
BLK
BLK
PUR
BLU
BLUYEL/BLU
BLK
RED
YEL
BLU
RED
WHT/BLK
GRY
RED
RED
RED
RED
RED/BLK
RED/GRN
BLU
ORG
YEL
WHT
BLK
BLU/WHT
PUR/WHT
ORG
GRN
WHT
YEL/BLK
YEL
YEL/BLUBLU
RED
BLK/WHT
GRN
GRN
BLK
BLK/WHT
L2L3L1
T1
T2
INDOOR BLOWER
MOTOR
INDOOR BLOWER
MOTOR
GAS
VALVE
CAPACITOR
OD FAN
MOTOR
COMPRESSOR
CRANKCASE
HEATER
TEMP.
SWITCH
HIGH PRESSURE
SWITCH
LOSS OF CHARGE
SWITCH
CONTACTOR
COIL
COMPRESSOR
SOLENOID
GROUND
LUG
DRAFT INDUCER
MOTOR
CAPACITOR
XFMR
3A
FUSE
CONTROL BOARD
RELAYS
LIMIT
SWITCH
ROLLOUT
SWITCH
IGNITOR FLAME
SENSOR
CF
1
2 STAGE DSI
CONTROL BOARD
C
R
O
Y1
Y2
W1
W2
G
DHUM
P3
1
2
3
456
789
101112
P1
P2
T1
P5
P7P8
1
HUM
PRESENT
NO HUM
180
120
90
60
AC
HP
BLOWER
DELAY
1234
LAST
ERROR
STATUS
230V
24V SEC
75VA
COM
208V
3
L2
L1 L3
C
R
S
1
L
N
G
1
L
N
G
1
C
R
Y1
Y2
W1
W2
G
DHUM
M
HI
C
PWM
ENABLE
PWM COM
RED/WHT
T3

Other manuals for York PCG6B36

Related product manuals