EasyManua.ls Logo

York PHE6B48 - Unit Limitations

York PHE6B48
24 pages
Print Icon
To Next Page IconTo Next Page
To Next Page IconTo Next Page
To Previous Page IconTo Previous Page
To Previous Page IconTo Previous Page
Loading...
5285477-UIM-A-1016
Johnson Controls Unitary Products 3
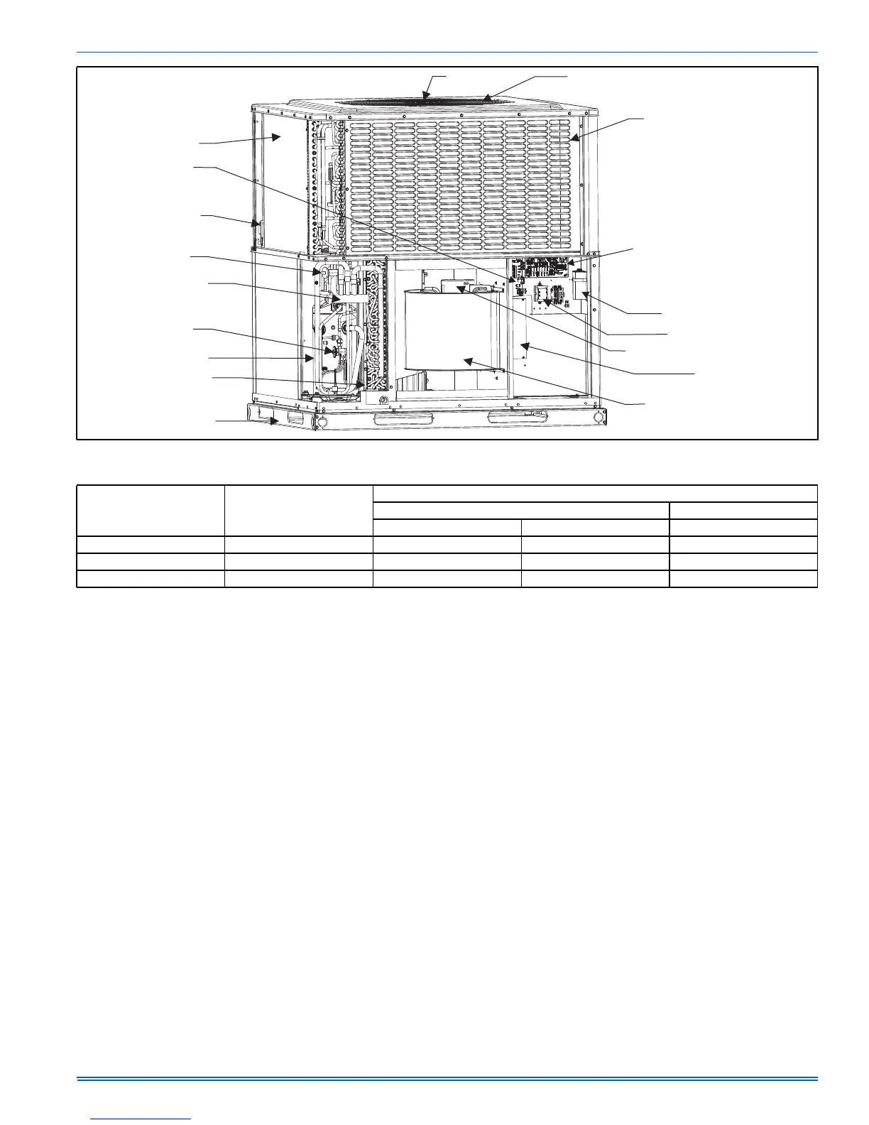
FIGURE 1: Component Location
FAN MOTOR
OUTDOOR FAN
OUTDOOR COIL
AMBIENT
TEMPERATURE
SENSOR
OUTDOOR TXV
REVERSING
VALVE
INDOOR TXV
COMPRESSOR
INDOOR COIL
REMOVABLE
BASE RAILS
COIL GUARD PANEL
BLOWER MOTOR
INDOOR BLOWER
OPTIONAL
ELECTRIC HEAT KIT
TRANSFORMER
CAPACITOR
DEFROST CONTROL BOARD
ECM BLOWER MOTOR
CONTROL BOARD
A0588-001
Table 1: Unit Limitations
Model Unit Voltage
Unit Limitations
Applied Voltage Outdoor DB Temp
Min Max Max (°F)
B36 208/230-3-60 187 252 125
B48 208/230-3-60 187 252 125
B60 208/230-3-60 187 252 125

Related product manuals