EasyManua.ls Logo

York Predator ZR series - ZR037 Physical Dimensions

York Predator ZR series
70 pages
To Next Page IconTo Next Page
To Next Page IconTo Next Page
To Previous Page IconTo Previous Page
To Previous Page IconTo Previous Page
Loading...
5167540-YIM-H-0518
Johnson Controls Ducted Systems 9
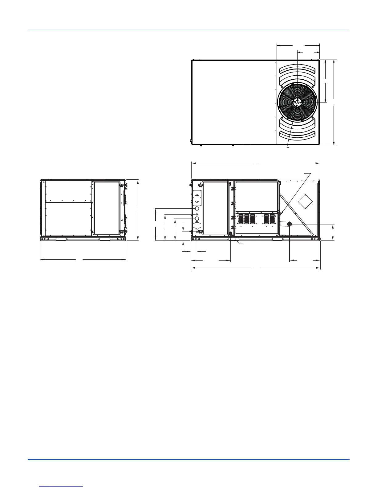
Figure 8: ZR037 Physical Dimensions
Ø 25.31
59.00
15.51
29.75
59
LEFT
11 3/8
21 3/16
89
27 5/16
4 3/16
FRONT
See detail A for gas inlet
A
See detail B for drain location
B
C
D
E
F
29.52

Table of Contents

Related product manuals