EasyManua.ls Logo

York Y34 - Millennium Overhead View; Millennium Major Component Layout

York Y34
96 pages
Print Icon
To Next Page IconTo Next Page
To Next Page IconTo Next Page
To Previous Page IconTo Previous Page
To Previous Page IconTo Previous Page
Loading...
246653-YTG-E-0108
Johnson Controls Unitary Products 85
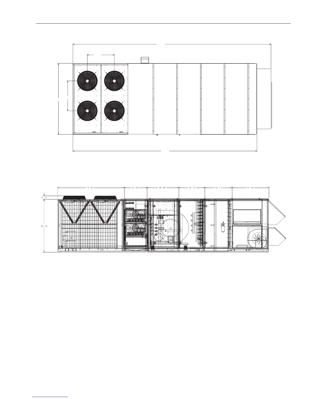
FIGURE 33 - MILLENNIUM OVERHEAD VIEW
259.68
35.42
39.31
93.43
241.22
FIGURE 34 - MILLENNIUM MAJOR COMPONENT LAYOUT
CONDENSER SECTION
GAS HEAT
SECTION
BLOWER
SECTION
EVAPORATOR
SECTION
FILTER
SECTION
ECONOMIZER POWER
EXHAUST SECTION

Table of Contents

Related product manuals