EasyManua.ls Logo

York YCSA - Page 17

York YCSA
56 pages
Go to English
To Next Page IconTo Next Page
To Next Page IconTo Next Page
To Previous Page IconTo Previous Page
To Previous Page IconTo Previous Page
Loading...
17
GB
All data subject to change without notice.
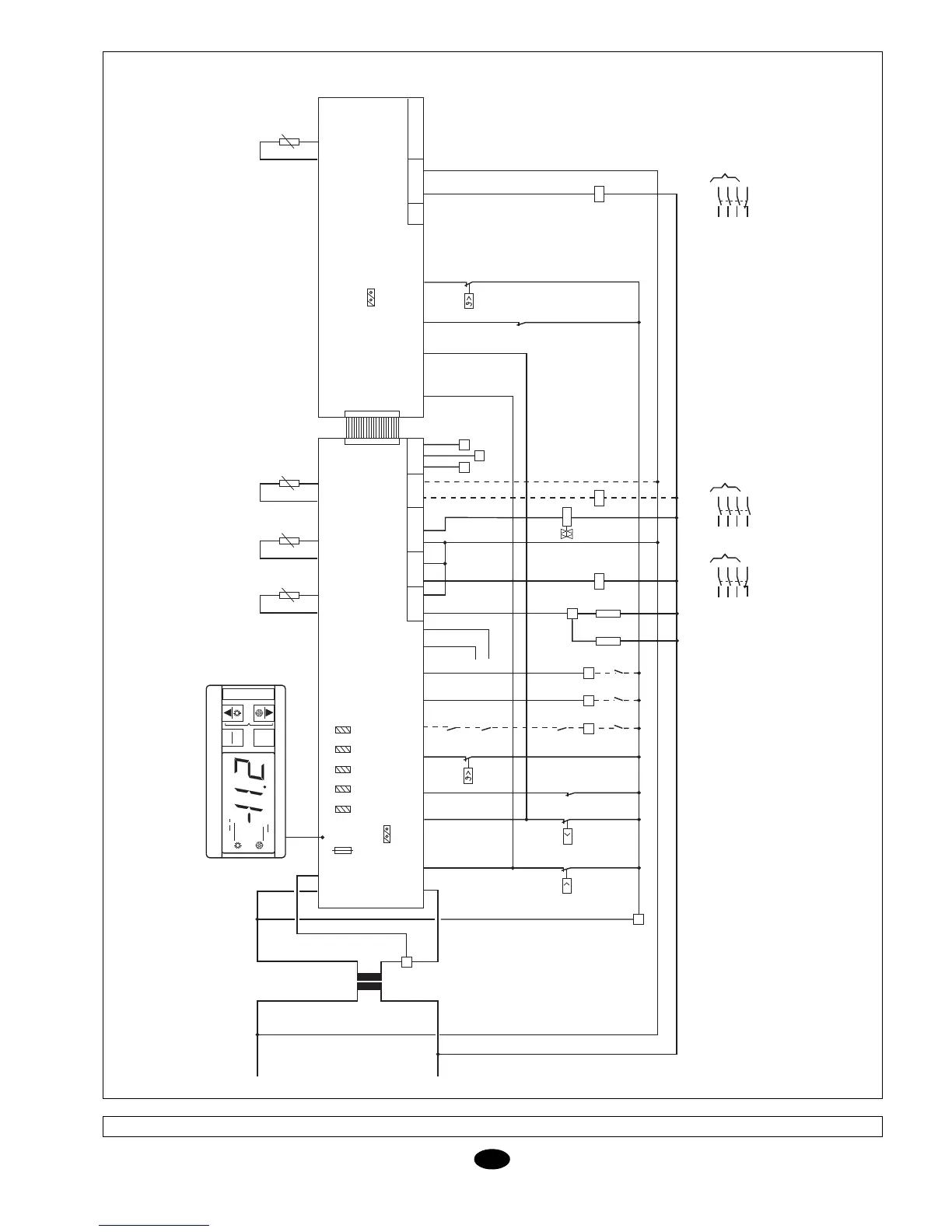
Diagrama eléctrico
YCSA/YCSA-H 50 & 60 T & TP, 400.3.50
I-2409a (2 of 2)
YCSA/YCSA-H 50 & 60 T & TP
400.3.50
mute
PRG
µ
chiller
comp
x 100
clear
SEL
21
3 4
65
21 22
(03)
(9)
21
3 4
65
21 22
(02)
(8)
R
10 11
HP
P
5
6
K1
A1
A2
24V
0V
T1
80 VA
230V
0V
a (L1)
b (N)
G GO
ALARM
REMOTE COOL/HEAT
REMOTE ON/OFF
FLOW SWITCH
LOW PRESSURE
SWITCH
HIGH PRESSURE
SWITCH
IDCOM ID1 ID2 ID3 ID4 ID5 ID6 ID7
B3
B1
PROBE COIL 1
GND B1 GND B2
B2
GND B3
WATER OUTLET
PROBE
WATER INTAKE
PROBE
ID9GND Y1
C
ID10 ID11 GND Y2
3
2
1
P2
3
2
1
P1
3
2
1
P3
3
2
1
P4
3
2
1
P5
NTC PROBE,
CONNECT 1-2
12 13 14 15 16 17 18 19 20 21 22 23 24 25 26 27 28 29 30
2
ROO
FS
NC
NO
C
C
NC
NO
C
NO
NC
NO
C
NO
C
K2
A1
A2
1 3
RCH
GND B5
B5
PROBE COIL 2
GND B4
ID8
P6
P1
THERMAL PROTECTOR
COMPRESSOR 1
THERMAL
PROTECTOR COMP. 2
K3
A1
A2
F1
13
14
(*)
K3
M2
M1
A4
HEATER. 1
COMP. 1
VALVE 1
PUMP
ALARM
HEATER. 2
COMP. 2
VALVE 2
7
V4V
A2
EXPANSION BOARD
NO
4
NO
C
TL
M2
M1
A3
LP
P
d
c
RE (35W)
RD (200W)
NO
C
8
13
14
(*)
Q3
PDW
21
3 4
65
13 14
(01)
(16)
TK1
(**)
THERMAL
PROTECTOR RAN 2
THERMAL PROTECTOR
FAN 1
TK2
(*) ON UNITS WITH
WATER PUMP ONLY
(* *) ON YCSA-H ONLY
A1
BASE PLATE

Related product manuals