EasyManua.ls Logo

York YCSA - Page 23

York YCSA
56 pages
Go to English
To Next Page IconTo Next Page
To Next Page IconTo Next Page
To Previous Page IconTo Previous Page
To Previous Page IconTo Previous Page
Loading...
23
Données et mesures susceptibles de variation sans préavis.
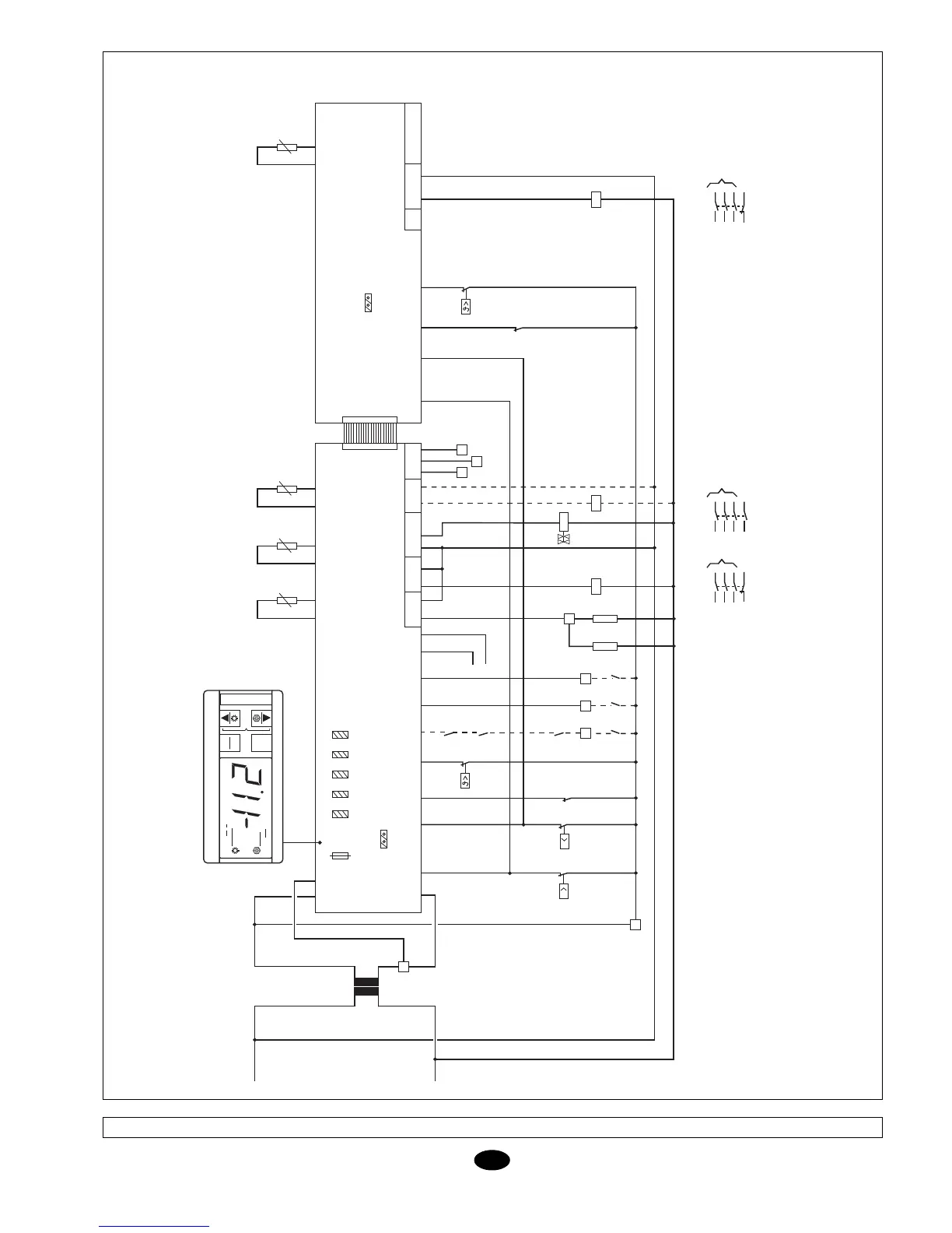
Installation électrique
YCSA/YCSA-H 50 et 60 T et TP, 400.3.50
F
I-2409a (2/2)
YCSA/YCSA-H 50 et 60 T et TP
400.3.50
mute
PRG
µ
chiller
comp
x 100
clear
SEL
21
3 4
65
21 22
(03)
(9)
21
3 4
65
21 22
(02)
(8)
R
10 11
HP
P
5
6
K1
A1
A2
24V
0V
T1
80 VA
230V
0V
a (L1)
b (N)
G GO
ALARME
FROID/CHAUD À
DISRANCE
MARCHE/ARRÊT À
DISTANCE
FLOW SWITCH
PRESSOSTAT
BASSE PRESSION
PRESSOSTAT
HAUTE PRESSION
IDCOM ID1 ID2 ID3 ID4 ID5 ID6 ID7
B3
B1
SONDE BATTERIE 1
GND B1 GND B2
B2
GND B3
SONDE SORTIE
EAU
SONDE ENTRÉE
EAU
ID9GND Y1
C
ID10 ID11 GND Y2
3
2
1
P2
3
2
1
P1
3
2
1
P3
3
2
1
P4
3
2
1
P5
SONDES NTC
CONNECTER 1-2
12 13 14 15 16 17 18 19 20 21 22 23 24 25 26 27 28 29 30
2
ROO
FS
NC
NO
C
C
NC
NO
C
NO
NC
NO
C
NO
C
K2
A1
A2
1 3
RCH
GND B5
B5
SONDE BATTERIE 2
GND B4
ID8
P6
P1
PROTECTEUR
THERMIQUE COMP. 1
PROTECTEUR
THERMIQUE COMP. 2
K3
A1
A2
F1
13
14
(*)
K3
M2
M1
A4
RES. 1
COMP. 1
VANNE 1
POMPE
ALARME
RES. 2
COMP. 2
VALV. 2
7
V4V
A2
CARTE D’EXTENSION
NO
4
NO
C
TL
M2
M1
A3
LP
P
d
c
RE (35W)
RD (200W)
NO
C
8
13
14
(*)
Q3
PDW
21
3 4
65
13 14
(01)
(16)
TK1
(**)
PROTECTEUR
THERMIQUE VENT. 2
PROTECTEUR
THERMIQUE VENT. 1
TK2
(*)
UNIQUEMENT POUR
UNITÉS RÉVERSIBLES
(* *)
UNIQUEMENT POUR YCSA-H
A1
CARTE BASE

Related product manuals