EasyManua.ls Logo

York YCSA - Page 35

York YCSA
Print Icon
To Next Page IconTo Next Page
To Next Page IconTo Next Page
To Previous Page IconTo Previous Page
To Previous Page IconTo Previous Page
Loading...
35
Dati e misure soggetti a variazioni senza preavviso.
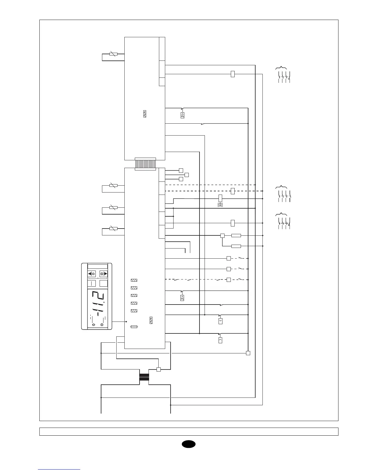
Schema elettrico
YCSA/YCSA-H 50 e 60 T e TP, 400.3.50
I
I-2409a (2 di 2)
YCSA/YCSA-H 50 e 60 T e TP
400.3.50
mute
PRG
µ
chiller
comp
x 100
clear
SEL
21
3 4
65
21 22
(03)
(9)
21
3 4
65
21 22
(02)
(8)
R
10 11
HP
P
5
6
K1
A1
A2
24V
0V
T1
80 VA
230V
0V
a (L1)
b (N)
G GO
ALLARME
RAFFRESCAMENTO/RI
ACCENSIONE/SPEGNIMENT
O REMOTO
FLUSSOSTATO
PRESSOSTATO
DI BASSA
PRESSOSTATO
DI ALTA
IDCOM ID1 ID2 ID3 ID4 ID5 ID6 ID7
B3
B1
SONDA BATTERIA 1
GND B1 GND B2
B2
GND B3
SONDA USCITA
ACQUA
SONDA ENTRATA
ACQUA
ID9GND Y1
C
ID10 ID11 GND Y2
3
2
1
P2
3
2
1
P1
3
2
1
P3
3
2
1
P4
3
2
1
P5
SONDE NTC
COLLEGARE 1-2
12 13 14 15 16 17 18 19 20 21 22 23 24 25 26 27 28 29 30
2
ROO
FS
NC
NO
C
C
NC
NO
C
NO
NC
NO
C
NO
C
K2
A1
A2
1 3
RCH
GND B5
B5
SONDA BATTERIA 2
GND B4
ID8
P6
P1
PROTETTORE
TERMICO COMP. 1
PROTETTORE
TERMICO COMP. 2
K3
A1
A2
F1
13
14
(*)
K3
M2
M1
A4
RES. 1
COMP. 1
VALV. 1
POMPA
ALLARME
RES. 2
COMP. 2
VALV. 2
7
V4V
A2
SCHEDA DI ESPANSIONE
NO
4
NO
C
TL
M2
M1
A3
LP
P
d
c
RE (35W)
RD (200W)
NO
C
8
13
14
(*)
Q3
PDW
21
3 4
65
13 14
(01)
(16)
TK1
(**)
PROTETTORE
TERMICO VENT. 2
PROTETTORE
TERMICO VENT. 1
TK2
(*)
SOLO UNITÀ CON POMPA
DELL´ACQUA
(* *)
SOLO YCSA-H
A1
SCHEDA BASE

Related product manuals