EasyManua.ls Logo

York YCSA - Page 41

York YCSA
Print Icon
To Next Page IconTo Next Page
To Next Page IconTo Next Page
To Previous Page IconTo Previous Page
To Previous Page IconTo Previous Page
Loading...
41
Technische Angaben und Maße können ohne vorherige Ankündigung geändert werden.
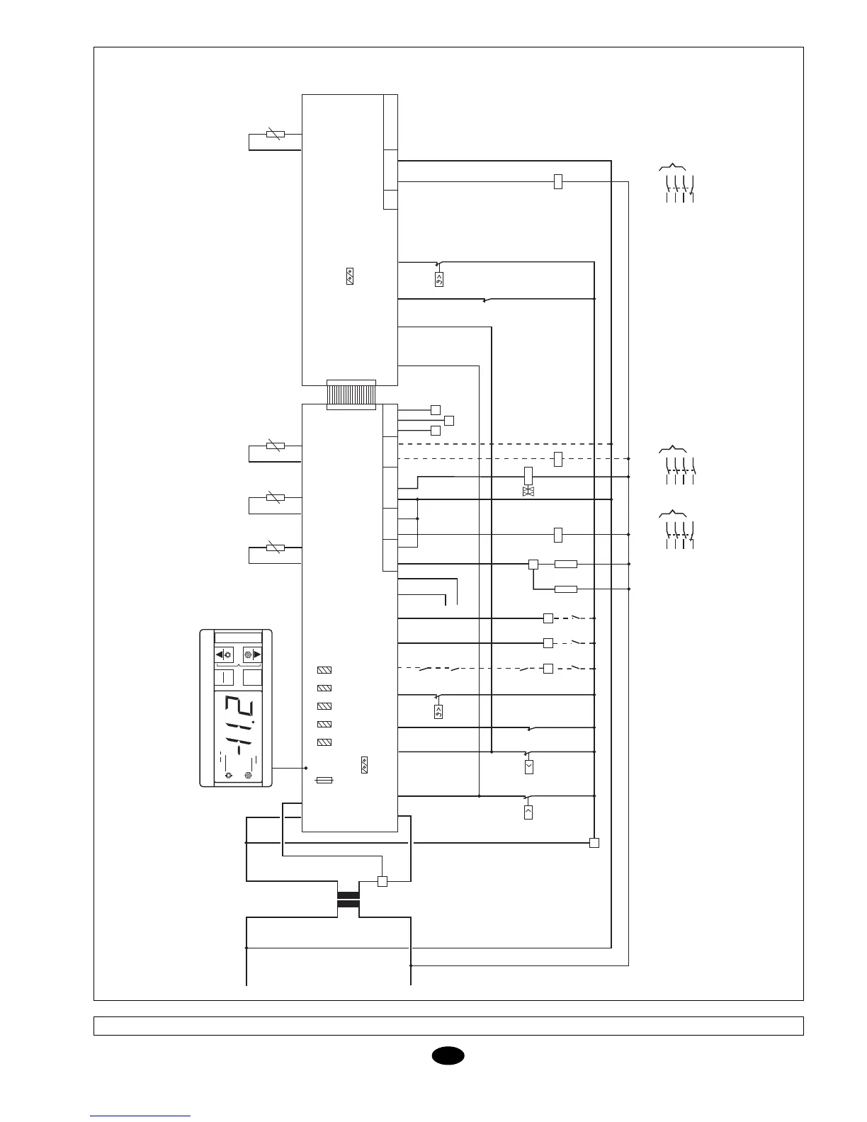
Schaltbild
YCSA/YCSA-H 50 und 60 T und TP, 400.3.50
D
I-2409a (2/2)
YCSA/YCSA-H 50 und 60 T und TP
400.3.50
mute
PRG
µ
chiller
comp
x 100
clear
SEL
21
3 4
65
21 22
(03)
(9)
21
3 4
65
21 22
(02)
(8)
R
10 11
HP
P
5
6
K1
A1
A2
24V
0V
T1
80 VA
230V
0V
a (L1)
b (N)
G GO
ALARM
FERN-KÜHLEN/HEIZEN
FERN-EIN/AUS
STRÖMUNGSWÄCHTER
NIEDERDRUCKWÄCHTER
HOCHDRUCKWÄCHTER
IDCOM ID1 ID2 ID3 ID4 ID5 ID6 ID7
B3
B1
GND B1
GND B2
B2
GND B3
SENSOR BATTERIE 1
ID9GND Y1
C
ID10 ID11 GND Y2
3
2
1
P2
3
2
1
P1
3
2
1
P3
3
2
1
P4
3
2
1
P5
SENSOREN NTC
ANSCHLIESSEN 1-2
12 13 14 15 16 17 18 19 20 21 22 23 24 25 26 27 28 29 30
2
ROO
FS
NC
NO
C
C
NC
NO
C
NO
NC
NO
C
NO
C
K2
A1
A2
1 3
RCH
GND B5
B5
SENSOR
WASSEREINTRITT
GND B4
ID8
P6
P1
TEMPERATURSICHERUNG
VERD. 1
K3
A1
A2
F1
13
14
(*)
K3
M2
M1
A4
WIDERST. 1
VERD. 1
VENTIL. 1
PMPE
ALARM
WIDERST
. 2
VERD. 2
VENTIL. 2
7
V4V
A2
ERWEITERUNGSPLATINE
NO
4
NO
C
TL
M2
M1
A3
LP
P
d
c
RE (35W)
RD (200W)
NO
C
8
13
14
(*)
Q3
PDW
21
3 4
65
13 14
(01)
(16)
TK1
(**)
TK2
(*) NUR BEI EINHEITEN MIT
WASSERPUMPE
(* *) NUR BEI YCSA-H
SENSOR
WASSEREINTRITT
SENSOR BATTERIE 2
A1
GRUNDPLATINE
TEMPERATURSICHERUNG
VENT. 1
TEMPERATURSICHERUNG
VERD. 2
TEMPERATURSICHERUNG
VENT. 2

Related product manuals