EasyManua.ls Logo

York YCSA - Page 53

York YCSA
56 pages
Go to English
To Next Page IconTo Next Page
To Next Page IconTo Next Page
To Previous Page IconTo Previous Page
To Previous Page IconTo Previous Page
Loading...
53
N
Data og ytelser er til orientering og kan endres uten varsel.
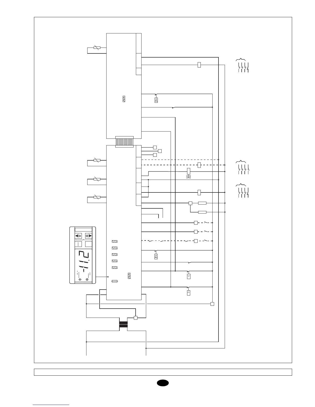
Elektrisk skjema
YCSA/YCSA-H 50 og 60 T og TP, 400.3.50
I-2409a (2 av 2)
YCSA/YCSA-H 50 og 60 T og TP
400.3.50
mute
PRG
µ
chiller
comp
x 100
clear
SEL
21
3 4
65
21 22
(03)
(9)
21
3 4
65
21 22
(02)
(8)
R
10 11
HP
P
5
6
K1
A1
A2
24V
0V
T1
80 VA
230V
0V
a (L1)
b (N)
G GO
ALARM
FJERN KULDE/VARME
FJERN START/STOPP
FLOW SWITCH
LAVTRYKKSPRE
SSOSTAT
HØYTRYKKSPRE
SSOSTAT
IDCOM ID1 ID2 ID3 ID4 ID5 ID6 ID7
B3
B1
SONDE BATTERI 2
GND B1 GND B2
B2
GND B3
SONDE
VANNUTLØP
SONDE
VANNINNTAK
ID9GND Y1
C
ID10 ID11 GND Y2
3
2
1
P2
3
2
1
P1
3
2
1
P3
3
2
1
P4
3
2
1
P5
SONDER NTC
TILKOBLE 1-2
12 13 14 15 16 17 18 19 20 21 22 23 24 25 26 27 28 29 30
2
ROO
FS
NC
NO
C
C
NC
NO
C
NO
NC
NO
C
NO
C
K2
A1
A2
1 3
RCH
GND B5
B5
SONDE BATTERI 2
GND B4
ID8
P6
P1
VARMEBESKYTTER
KOMP. 1
K3
A1
A2
F1
13
14
(*)
K3
M2
M1
A4
RES. 1
KOMP. 1
VALV. 1
PUMPE
ALARM
RES. 2
KOMP. 2
VALV. 2
7
V4V
A2
EKSPANSJONSKORT
NO
4
NO
C
TL
M2
M1
A3
LP
P
d
c
RE (35W)
RD (200W)
NO
C
8
13
14
(*)
Q3
PDW
21
3 4
65
13 14
(01)
(16)
TK1
(**)
VARMEBESKYTTEL
SE VENTIL 1
TK2
(*) BARE I ENHETER
MED VANNPUMPE
(* *) BARE I YCSA-H
A1
GRUNNKORT
VARMEBESKYTTER
KOMP. 2
VARMEBESKYTTEL
SE VENTIL 2

Related product manuals