EasyManua.ls Logo

York YLAA0065 - FIGURE 22 - Power Panel

York YLAA0065
178 pages
Print Icon
To Next Page IconTo Next Page
To Next Page IconTo Next Page
To Previous Page IconTo Previous Page
To Previous Page IconTo Previous Page
Loading...
JOHNSON CONTROLS
76
FORM 150.72-ICOM6
ISSUE DATE: 12/29/2017
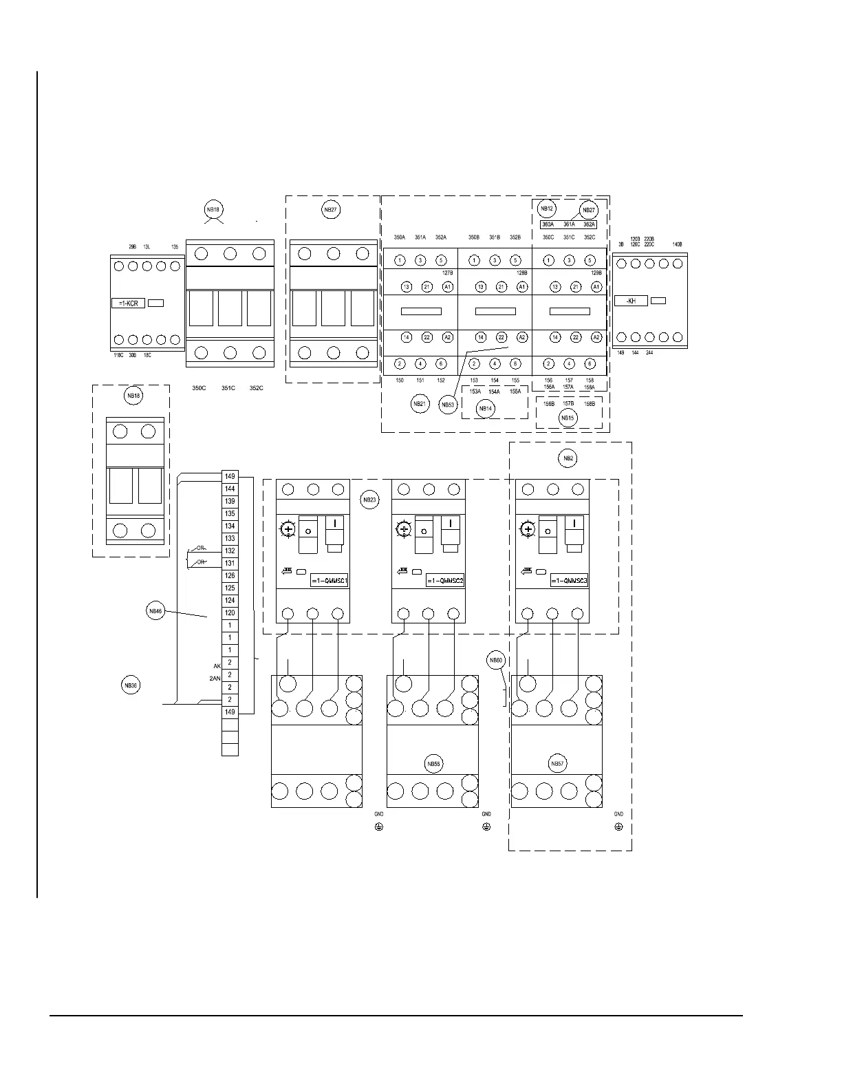
SECTION 5 – TECHNICAL DATA
POWER PANEL
FIGURE 22 - POWER PANEL
035-21589-101 REV H
/'
/ / /
;7%)
$9
$*
$-
-03
)
*
.
/
.
4
5
/
0
3
4
.
/
3
-
.
$4
$(
$%
$$
/
0
0
1
1
<
<
2
*
+
+
,
,
-
-
,
-
;
,
+
;
25
(+5+(;7
(+5+(;7
$5
;
)+3
5
0
2
$ $ $%% %&&&
63
63
63
/ //
// /
// /
)
/
/
/
/
/
$
%
$
%
$
%

)
/
/
$$$
)
&$.1
$




 $
&$.1
$
 $
/&'
.)
/&'
.)
/&'
.)
%

'
'

$




$
.0
%


$




$
.0
&
'
&
'
%


$




$
.0
%
&
%
&
$ 


&

$
(
$

$ 
$

$ %

$

$

$
$

*
)



Table of Contents