EasyManua.ls Logo

York ZF150 - ZF078-150 Unit Accessory Weights; Zf078-120

York ZF150
70 pages
Print Icon
To Next Page IconTo Next Page
To Next Page IconTo Next Page
To Previous Page IconTo Previous Page
To Previous Page IconTo Previous Page
Loading...
518674-YIM-C-0610
Johnson Controls Unitary Products 9
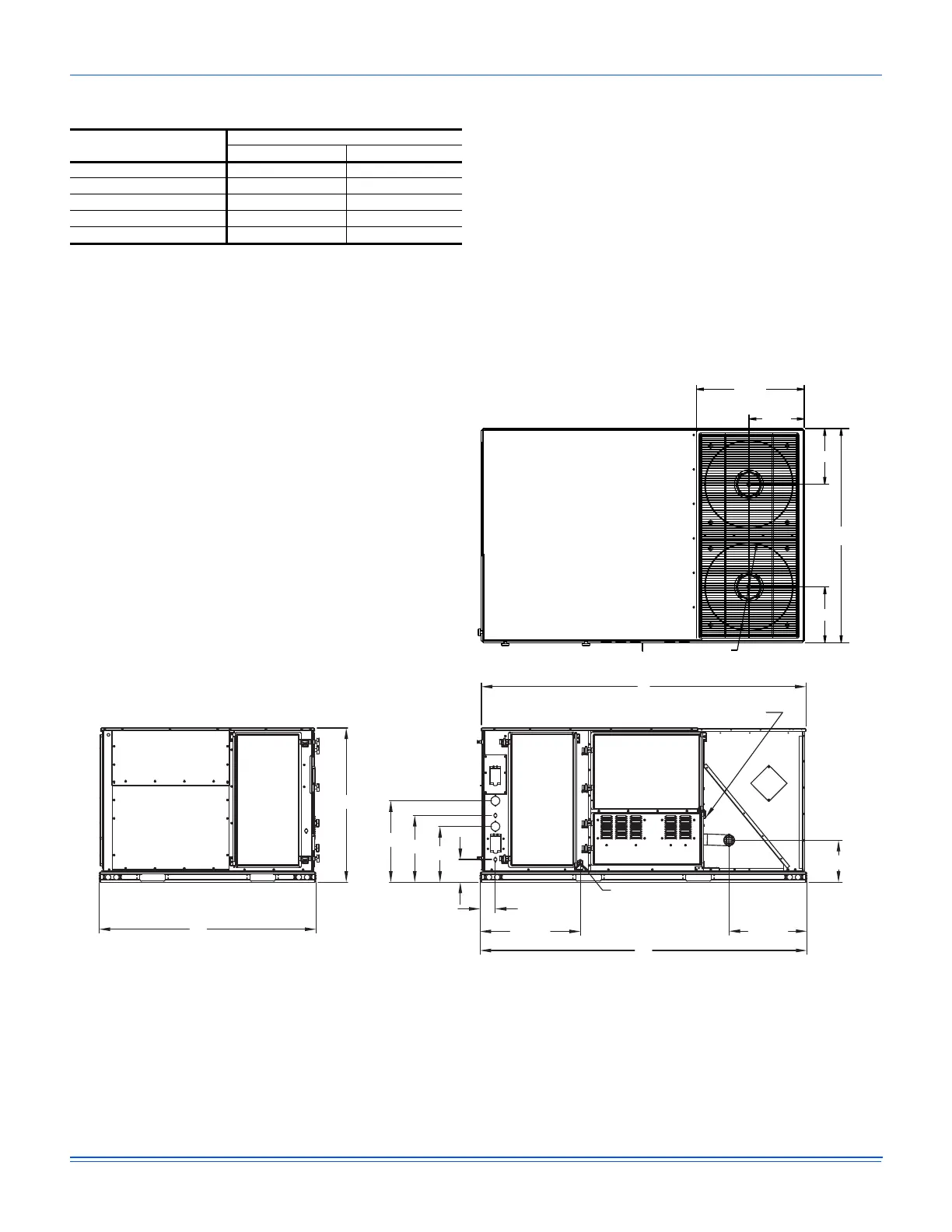
Figure 8: ZF078-120
Table 3: ZF078-150 Unit Accessory Weights
Unit Accessory
Weight (lbs.)
Shipping Operating
Economizer 90 85
Power Exhaust 40 35
Electric Heat
1
1. Weight given is for the maximum heater size available
(54KW).
49 49
Gas Heat
2
2. Weight given is for the maximum number of tube heat
exchangers available (8 tube).
110 110
Variable Frequency Drive
3
3. Weight includes mounting hardware, controls and manual
bypass option.
30 30
Ø 24.47 TYP. 2 PL.
15.38
15.38
59.00
15.25
29.69
59
LEFT
11 3/8
21 3/16
89
27 5/16
4 3/16
FRONT
See detail A for gas inlet
A
See detail B for drain location
B
C
D
E
F

Table of Contents

Related product manuals