EasyManua.ls Logo

Zanotti BAS235T02F - Page 72

Zanotti BAS235T02F
86 pages
Print Icon
To Next Page IconTo Next Page
To Next Page IconTo Next Page
To Previous Page IconTo Previous Page
To Previous Page IconTo Previous Page
Loading...
DATA:
REV.nr. FOGLIO nr :
DI
23
BDB340NS02F
BDB340TS02F
BDB340NS161F
AB10001
16-04-2003Soncini
DISEGNO nr.
ApprovatoDisegnato
Soncini
DATA: Approvato
MODELLO
BDB340NS317F
BDB340NS170F/ELX
BDB340TS170F/ELX
01
26-05-2004 SONCINI
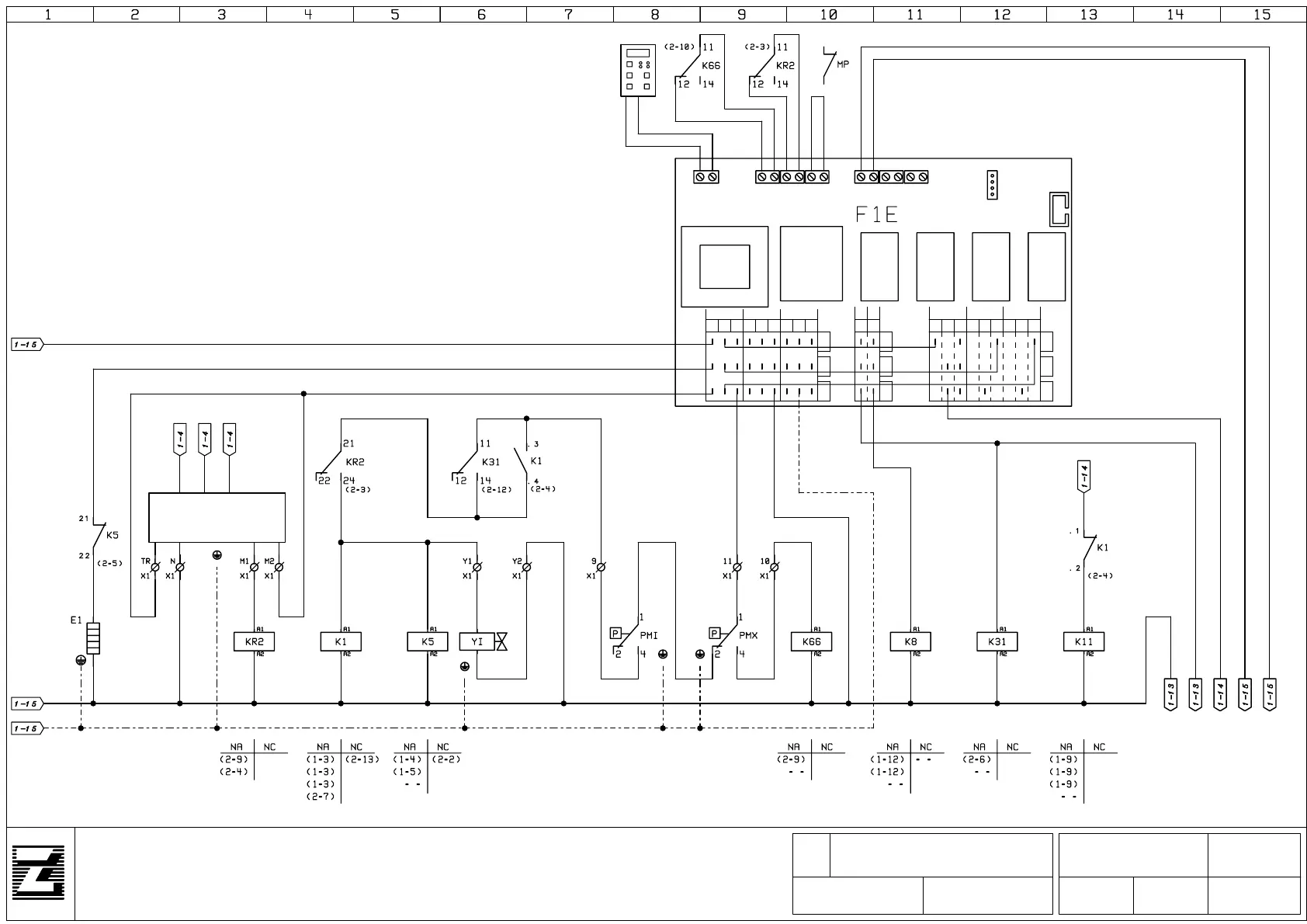
Rivisto collegamento "F1TR"
25
13 12
20
40
16
27
3
3
3
N1
50
17
23
N1
N1
630
N1
N1
5
5
8
8
8
7
7
7
1
N1
L8
L10
N1
3
3
N1
L12
21
N1N1
10
40
N1N1 N1
GV
11
10
N1
20
20
N111
10
N1
17
20
N1
41
N1
20
20
22
N1
GV
11
GV
N1
11
50
GV
11
GVGV
12
N1
11
GV
GV
GV
T2T1 S1 S2 M1 M2
L1 L2 L3
-+
-
NEUTRALLINE GROUND
3456789
A
B
C
1224567
D
E
F
NO NO
RL1 RL2 NO NC NC
RL3
COM
123 89
NO
COM
RL4
NC
NO
RL5
COM
G
H
I
+
DI1 DI2 DI3 PB2
COMPRESSOR EVAP.FANS DEFROST ALARMLIGHT
1
RL2 RL3 RL4 RL5RL1
TRANSFORMER
ROOM
PB1 PB3
F1TR

Related product manuals