EasyManua.ls Logo

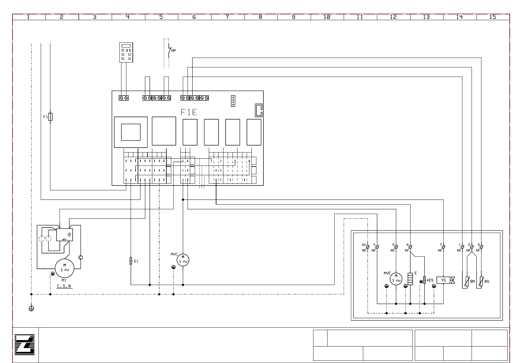
Zanotti BGM32002F - MDB121 TS02 F Wiring Diagram

Zanotti BGM32002F
86 pages
Print Icon
To Next Page IconTo Next Page
To Next Page IconTo Next Page
To Previous Page IconTo Previous Page
To Previous Page IconTo Previous Page
Loading...
DATA:
REV.nr. FOGLIO nr :
DI
11
MDB123TO17F-12F-316F-02F-161F-TS02F-TS12
MDB121TO12F-17F-02F-316F-TS02F-NO02F
BDB121TS02F-TO02F-NO02F-TO161F
27006DB
12-03-2003Soncini
DISEGNO nr.
ApprovatoDisegnato
Soncini
DATA: Approvato
MODELLO
BDB123TO12F-02F-161F-TS02F-12F-435F-368F
BDB221NO02F-17F-316F-368F-NS02F-NS12F
MDB221NS317F-02F-800F/FNV-NO02F-17F-151F
MDB121TS800F/FNV-TO161F-123TO307F-551F
GCD202NO02F-MDB221NO368F-161F-317F-N315F
01
03-04-2006 SONCINI
Nuova scheda (collegamento sonde)
230-220V/1N~/50-60Hz
SUPPLY
2CU0801
CAVO COMP.
VEDI DIS.
2CU0802
2CU0803
2CU0800
2CU0651
CAVO LINEA
VEDI DIS.
NE
MA
BL BL
BL
MA
BL
NE
PE N L1
MA
EVAPORATOR
2CU0651
MA
BL
BL
BL
MA
NE
GR (BL)
MA
NE
2CU0663
GV
GV
4
5
6
1
2
3
GV
GV
GV
(BY-CLIENT)
7
GR
BL
GV
E1 SOLO SE RICHIESTO IN VARIANTE
(ONLY IF IN VARIANT CODE REQUIRED)
GV
GV
GV
BL
GR (BL)
MA
NE
PER EVAPORATORI STATICI VENTOLE EVAP. (MVE) ASSENTI
S
C
R
4
1
2
5
RC SC
OL
_
_
_
_
-+
-
NEUTRALLINE GROUND
3456789
A
B
C
1224567
D
E
F
NO NO
RL1 RL2 NO NC NC
RL3
COM
123 89
NO
COM
RL4
NC
NO
RL5
COM
G
H
I
+
DI1 DI2 DI3 PB2
COMPRESSOR EVAP.FANS DEFROST ALARMLIGHT
1
RL2 RL3 RL4 RL5RL1
TRANSFORMER
ROOM
PB1 PB3

Related product manuals