EasyManua.ls Logo

Zanotti BGM32002F - Mdb335 Ts02 F

Zanotti BGM32002F
86 pages
Print Icon
To Next Page IconTo Next Page
To Next Page IconTo Next Page
To Previous Page IconTo Previous Page
To Previous Page IconTo Previous Page
Loading...
DATA:
REV.nr. FOGLIO nr :
DI
13
MDB335TS02F
MDB335TS161F
MDB335TS267F
AB09003
16-04-2003Soncini
DISEGNO nr.
ApprovatoDisegnato
Varvella
DATA: Approvato
MODELLO
MDB335TS316F
7DB335TS02F
01
28-03-2005 SONCINI
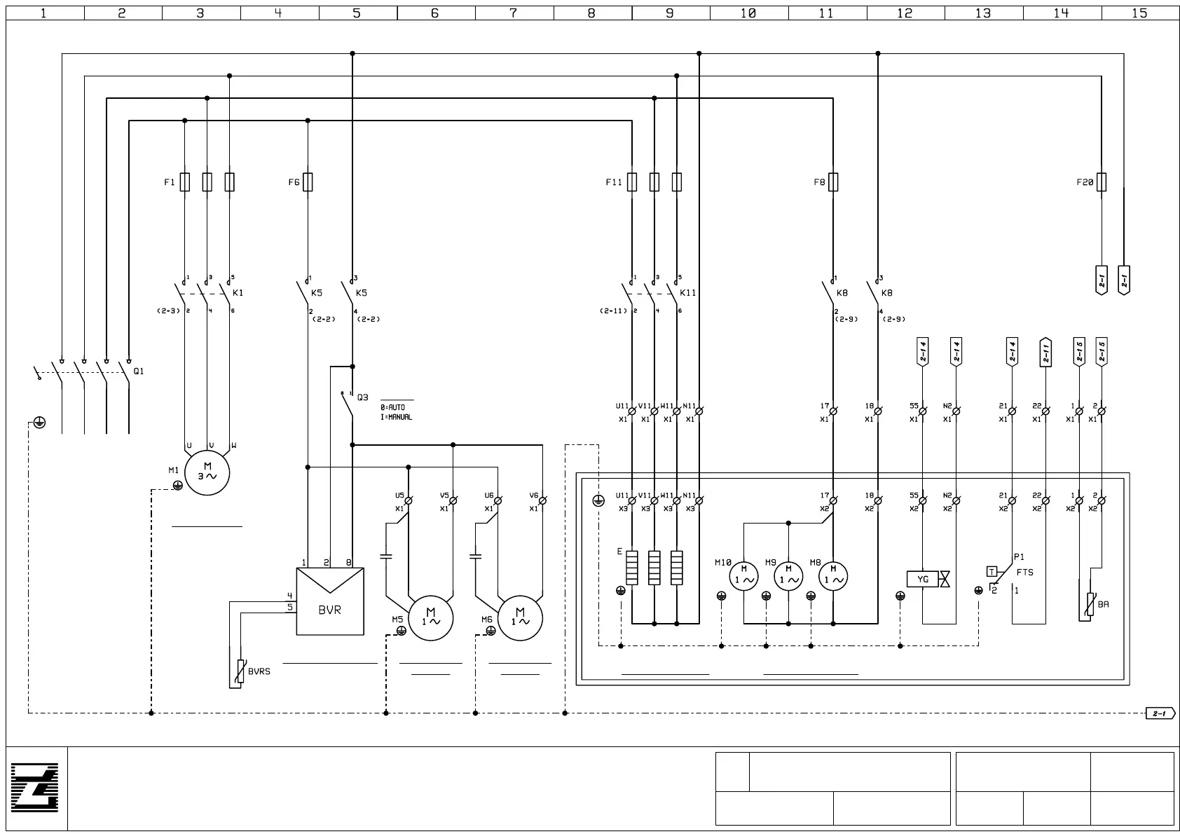
"BVR" nel quadro
380-400-415V/3N~/50Hz
PE
EVAPORATOR
220-230-240V/1N~/50Hz
COMPRESSOR
CONDENSER
DEFROST HEATER EVAPORATOR FANS
SPEED REGULATOR
6A 10A 6A
In=0,64 A
I max.=9,1 A In tot.=1,86 A
CONDENSER
In=0,64 A
SWITCH:
"ZS" I max=10,7 A
4A
"ZB" I max=12,8 A
FAN n°2FAN n°1
GV
GV GV GV GV GV
L7
L6
L4
L8
L10
L12
L9
L11
L13
L14
L16
L17 N1
GV
L17
L17
L7
L6
L4
L19 L19 L18
L20
L22
L21 L21
L19
L23
L21
L23 L23
N1N1 N1
L24
L26 L6L24L24L24
L25L25 L25
3 33
N1 N1
5 5 5
666
777
8 8 1
L7
L4
L7
GV
N1
GV
L4
GV
L15
6
8
L15
N1
N1
L6
L15
L17
L6
N1
L15
L6
L25
L3
L25
N
L2
L1
L7
L7
L4
N1
L4L4
N1
N1
N1
N1
L15
L17
L25
L24
GV GV GV
GV
GVGV
L15
L16
GV

Related product manuals