EasyManua.ls Logo

ZEKS Eclipse 90ZPB - Page 39

ZEKS Eclipse 90ZPB
73 pages
Print Icon
To Next Page IconTo Next Page
To Next Page IconTo Next Page
To Previous Page IconTo Previous Page
To Previous Page IconTo Previous Page
Loading...
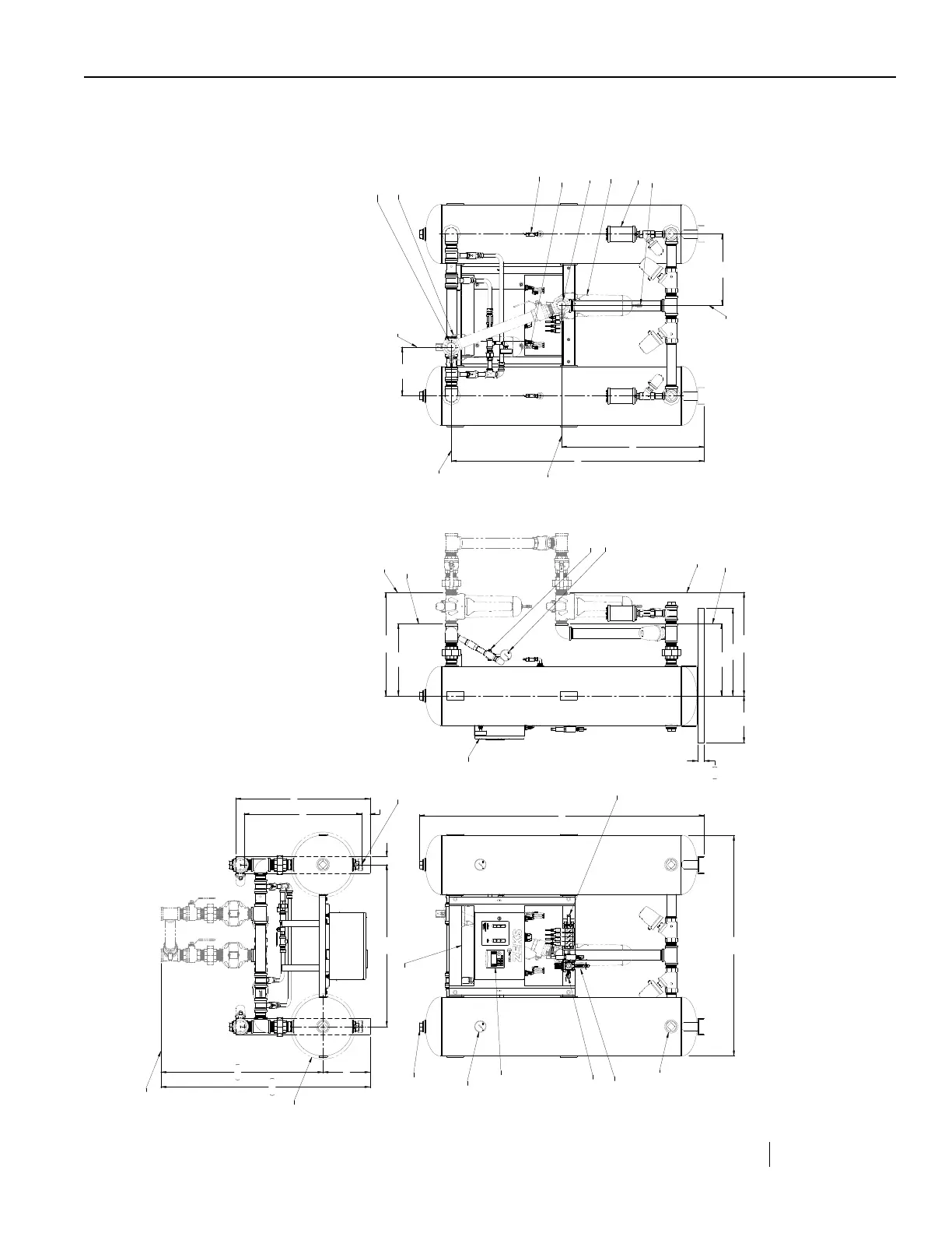
General Arrangement
Dryer Model: 400ZPB
NEMA 4
Drawing No.: 47597123
7*;.8.438
?43* )<3*(37*; )*8(7.59.43 )&9* &55;)
&  47.,.3&17*1*&8*  7(< 35
)*8.((&39)7&.35479

+59&.74:91*9
(433*(9.43

9>5



I
4+&.74:91*9

I
4+&.7.31*9
I
4+&.7.31*9
+59&.7.31*9
(433*(9.43

I
4+&.74:91*9
+&(*4+&.74:91*9
459.43&1+.19*75&(0&,*&
+&(*4+&.7.31*9
459.43&1+.19*75&(0&,*&


+&(*4+&.7.31*94:91*9
459.43&1;&1;*'>5&88
5:7,*+14<,&:,*
5:7,*&)/:892*39;&1;*
259&:942&9.(
)7&.3(433*(9.43
459.43&1+.19*75&(0&,*&



1.+9.3,8:55479
8**349*
459.43&1
94<*7.38:1&9.43
8-4<39-.8;.*<431>

*1*(97.(&1
*3(148:7*
3*2&
5.149&.7+.19*7
7*,:1&947
5.149&.78-:94++;&1;*
(4397411*7&3)).851&>5&3*1
8**9*(-3.(&12&3:&1+47
)*9&.1*).3+472&9.43
)*8.((&39+.115479
94<*757*88:7*,&:,*


7*1.*+;&1;*
-.,-*++.(.*3(>
57*+.19*7
459.43&1
5:7,*2:++1*7
259&:942&9.(
)7&.3(433*(9.43
459.43&1+.19*75&(0&,*&
):895&79.(:1&9*
&+9*7+.19*7
459.43&1

 24:39.3,-41*8
'1:*24.89:7*
.3).(&947


+&(*4+&.74:91*9

9>5

+&(*4+&.7.31*9

349*8
2&=.2:2<470.3,57*88:7*58.
8&+*9>7*1.*+;&1;*8*99.3,58.
5.149&.71.3*83498-4<3+47(1&7.9>
&11<.7.3,.8.3&((47)&3(*<.9-9-*3&9.43&1*1*(97.(&1(4)*81&9*89*).9.43
)7>*794'*1.+9*)'>1.+9.3,8:55479431>
)*8.,3.8)*5.(9*)+4789&3)&7)24)*19-.8)7&<.3,)4*8349)*5.(9459.438
9-*:3.9).2*38.438<.11;&7>+47574):(98(43+.,:7*)<.9-459.438
9-.8)7&<.3,.8574;.)*)+477*+*7*3(*5:7548*8431>
)*8.,3&3)).2*38.438&7*8:'/*(994(-&3,*<.9-4:9349.(*
14(&9.434+(4257*88*)&.7.31*94:91*9(433*(9.4382&>;&7>'&8*)43459.4388*1*(9*)
DIMENSIONAL TOLERANCES: +/- 1.00”
ZEKS Eclipse
TM
90-5,000ZPB Desiccant Dryers
www.zeks.com
12.0 GENERAL ARRANGEMENT
37

Related product manuals