EasyManua.ls Logo

ZEKS Eclipse 90ZPB - Page 42

ZEKS Eclipse 90ZPB
73 pages
Print Icon
To Next Page IconTo Next Page
To Next Page IconTo Next Page
To Previous Page IconTo Previous Page
To Previous Page IconTo Previous Page
Loading...
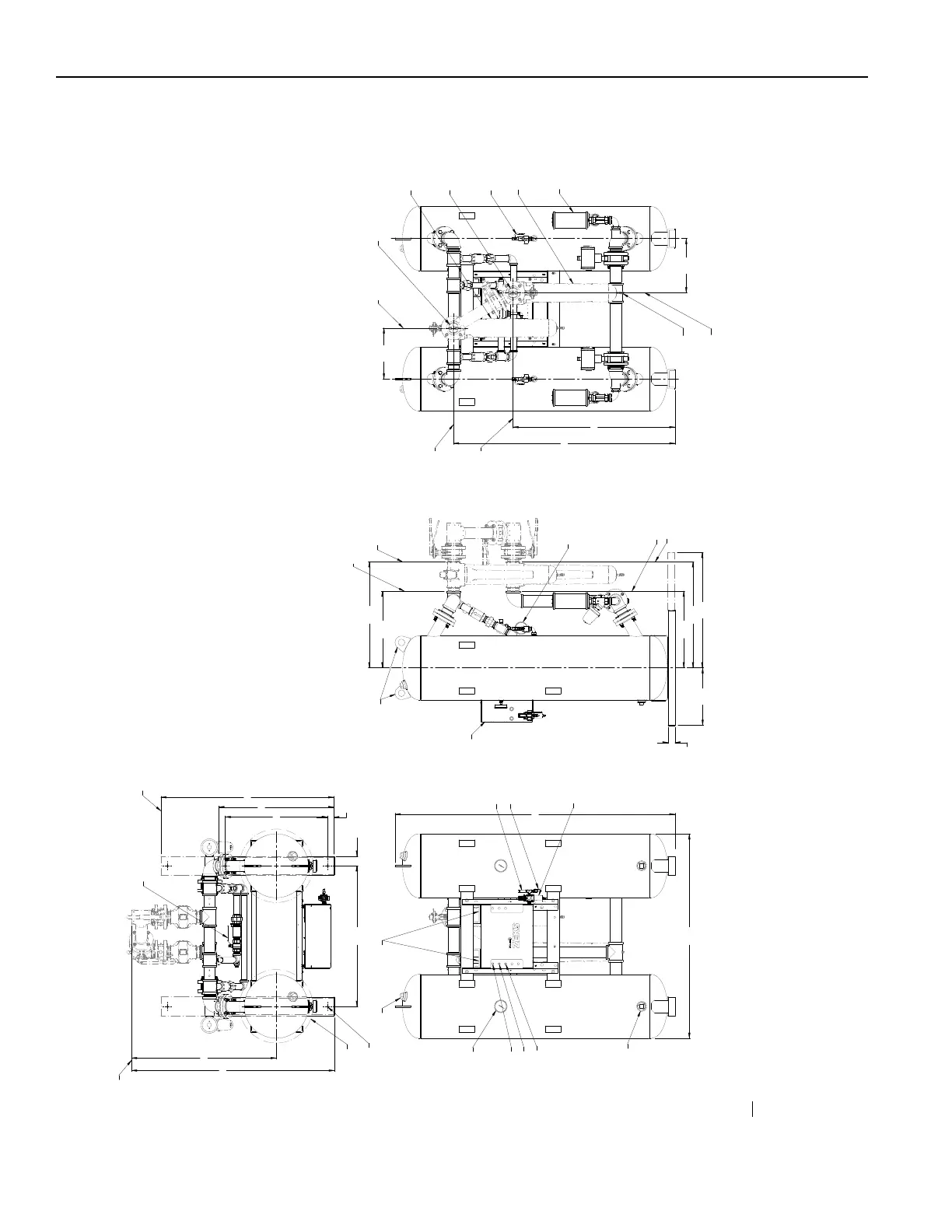
12.0 GENERAL ARRANGEMENT
ZEKS Eclipse
TM
90-5,000ZPB Desiccant Dryers
www.zeks.com
General Arrangement
Dryer Models: 800ZPB - 1200ZPB
NEMA 1
Drawing No.: 47597136 A
40
7*;.8.438
?43* )<3*(37*; )*8(7.59.43 )&9*
&

47.,.3&17*1*&8* 72&

I
4+&.74:91*9
I
4+&.74:91*9
7*1.*+;&1;*
+&(*4+&.74:91*9
I
4+&.7.31*9
I
4+&.7.31*9
1.+9.3,8:55479
8**349*
)*8.((&39)7&.35479
*1*(97.(&1
*3(148:7*
3*2&
5:7,*2:++1*7
94<*757*88:7*,&,*

24:39.3,-41*8
)*8.((&39+.115479
'1:*24.89:7*.3).(&947
+&(*4+&.7.31*9
-.,-*++.(*3(>57*+.19*7
459.43&1+.19*75&(0&,*&
259&:942&9.(
)7&.3(433*(9.43
459.43&15&(0&,*&
 9>5
 9>5







459.43&194<*7.38:1&9.43
8-4<39-.8;.*<431>
5:7,*+14<,&,*





359
&.74:91*9(433*(9.43
359
&.7.31*9(433*(9.43
):895&79.(:1&9*&+9*7+.19*7
459.43&1+.19*75&(0&,*&

1.+9.3,8:55479
8**349*
+&(*4+&.7.31*94:91*9
459.43&1;&1;*'>5&88
'&8*1*3,9-
459.43&1;&1;*'>5&88

5:7,*&)/:892*39;&1;*

+&(*4+&.74:91*9
459.43&1+.19*75&(0&,*&
+&(*4+&.7.31*9
459.43&1+.19*75&(0&,*&



5.149&.78-:94++
5.149&.7+.19*7
54<*7431.,-9
1*+994<*7)7>.3,1.,-9
7.,-994<*7)7>.3,1.,-9
;&1;*
7*,:1&947
349*8
2&=.2:2<470.3,57*88:7*58.
8&+*9>7*1.*+;&1;*8*99.3,58.
5.149&.71.3*83498-4<3+47(1&7.9>
&11<.7.3,.8.3&((47)&3(*<.9-9-*3&9.43&1*1*(97.(&1(4)*81&9*89*).9.43
)7>*794'*1.+9*)'>1.+9.3,8:55479431>
)*8.,3.8)*5.(9*)+4789&3)&7)24)*19-.8)7&<.3,)4*8349)*5.(9459.438
9-*:3.9).2*38.438<.11;&7>+47574):(98(43+.,:7*)<.9-459.438
9-.8)7&<.3,.8574;.)*)+477*+*7*3(*5:7548*8431>
)*8.,3&3)).2*38.438&7*8:'/*(994(-&3,*<.9-4:9349.(*
14(&9.434+(4257*88*)&.7.31*94:91*9(433*(9.4382&>;&7>'&8*)43459.4388*1*(9*)

Related product manuals