EasyManua.ls Logo

Zenith B25A76R - Interconnect Diagram

Zenith B25A76R
112 pages
Print Icon
To Next Page IconTo Next Page
To Next Page IconTo Next Page
To Previous Page IconTo Previous Page
To Previous Page IconTo Previous Page
Loading...
CRITICAL SAFETY COMPONENTS ARE IDENTIFIED BY THE LETTER “X“ IN THEIR
COMPONENT DESIGNATORS. REPLACE ONLY WITH PART NUMBERS SPECIFIED.
ALL SYMBOLS WITH “M” ON END OF DESIGNATOR
INDICATE SURFACE MOUNTED COMPONENT
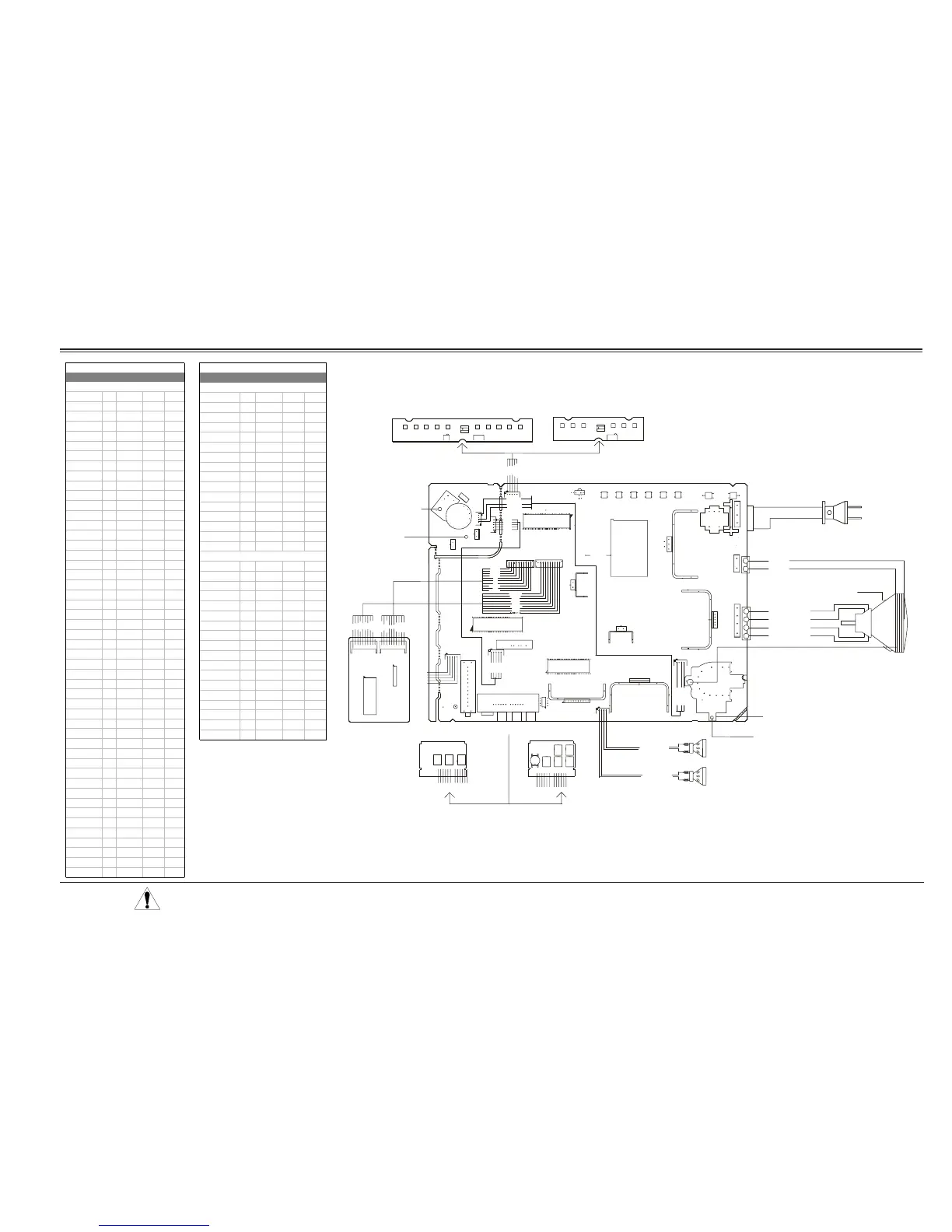
SECTION 6
SCHEMATICS
Interconnect Diagram
CA SHEET 16-1
HORIZONTAL YOKE HI
HORIZONTAL YOKE LOW
VERTICAL YOKE LOW
VERTICAL YOKE HI
DAG GROUND
DEGAUSS
DEGAUSS
SPKR
RIGHT SPEAKER
LEFT SPEAKER
SPKR
FILAM ENT
GROUND
+215V
FILAM ENT
GROUND
+215V
G + UP
B + UP
FBLNK
R
G
B
SW + PIP
GND
VIN PI P
R + UP
FLYBACK
VRAMP
GND
+5 V
GND
+9 V SW
GND
SCL
SDA
3R8
AC LOW
AC HIGH
ULUL
Y/C
OUT LOUT R
IN LIN RVID
IN LIN RVID
A-18785-03
JACKPACK IS SOLDERED TO MAIN CHASSIS
KEYBOARD VARIES BY MODEL SOME HAVE FEWER KEYS, SEE MODEL BOM FOR
KEYBOARD APPLICATION SPECIFICS.
GROUND
KEY 2
KEY 1
IR DATA
+5V SIDE Y
LEFT INT SPKR HI
RIGHT INT SPKR HI
LEFT INT SPKR LOW
RIGHT INT SPKR LOW
FOCUS
G2
A-18785-02
G2
FOCUS
GND
VCC
OUT
IR1
6K2
SW3
SW6 SW5
SW2
SW4
SW1
MENU CH-UP CH-DWN VOL-UPVOL-DWN ON/OFF
6K2
6P2
ENTER ADJ LEFT ADJ RIGHT SELECT
MENU
VOL DOWN VOL UP CH DOWN CH UP POWER
9-2107
SDA
SCL
GND
+9 VSW
GND
+5 V
GND
VRAMP
FLYBACK
R + UP
VIN PIP
GND
SW + PIP
B
G
R
FBLNK
B + UP
G + UP
PIPA
1
PIPB
1
IC2501
1
169
81
IC2502
B-OUT
G-OUT
R-OU T
+9V
GND
GND
+9V
R-OU T
G-OUT
B-OU T
GROUND
+5VSTD EY
CONTR OL
CLOCK
DATA
QX3251
TX3401
TU6000
TGND
4G9
J1
IC1402
9S4
IC804
2F5
IC2100
TX3204
QX3203
3Y3
FX3401
IC6000
IR6000
PIPB1
PIPA1
2K6
FX3402
SW6SW3SW2SW1 SW4 SW5
5C2
2C5
1
ICX3401
IN
G
OUT
1
1
ICX3412
1
IC1400
EX3401
1
ICX2200
12
1
BCE
EB
C
1
1
LX3401
3T8
3R8
1
1
DL2200
EB
C
Q5103
E
B
C
Q5101
5F2
CRT1
EB
C
Q5102
MODEL SCR AUDIO PIP JACKS
B25A02Z
25
Mono None 0
B25A10Z 25
Stereo None 0
B25A10Z6 25
Stereo None 3
B25A10ZC 25
Stereo None 0
B25A10ZC6 25
Stereo None 3
B25A10ZCF 25
Stereo None 0
B25A11Z 25
Stereo None 3
B25A11Z6 25
Stereo None 3
B25A11ZF 25
Stereo None 3
B25A24Z 25
MTS/SAP None 6
B25A24Z6 25
MTS/SAP None 6
B25A24ZF 25
MTS/SAP None 6
B25A30ZC 25
Stereo 1 Tuner 3
B25A30ZCF 25
Stereo 1 Tuner 3
B25A74R 25
MTS/SAP None 6
B25A74LK 25
MTS/SAP None 6
B25A76R 25
MTS/SAP None 6
B27A10Z 27
Stereo None 0
B27A10Z5 27
Stereo None 0
B27A10Z6 27
Stereo None 3
B27A10ZC 27
Stereo None 0
B27A10ZC5 27
Stereo None 0
B27A10ZC6 27
Stereo None 3
B27A10ZCF 27
Stereo None 0
B27A11Z 27
Stereo None 3
B27A11Z5 27
Stereo None 3
B27A11Z6 27
Stereo None 3
B27A11Z65 27
Stereo None 3
B27A11ZC 27
Stereo None 3
B27A11ZC5 27
Stereo None 3
B27A13Z 27
Stereo None 0
B27A24Z 27
MTS/SAP None 6
B27A24Z5 27
MTS/SAP None 6
B27A24Z6 27
MTS/SAP None 6
B27A24Z65 27
MTS/SAP None 6
B27A24ZF 27
MTS/SAP None 6
B27A24ZF5 27
MTS/SAP None 6
B27A30Z 27
Stereo 1 Tuner 3
B27A30ZC 27
Stereo 1 Tuner 3
B27A30ZC5 27
Stereo 1 Tuner 3
B27A30ZC6 27
Stereo 1 Tuner 3
B27A30ZC65 27
Stereo 1 Tuner 3
B27A30ZCF 27
Stereo 1 Tuner 3
B27A30ZCF5 27
Stereo 1 Tuner 3
B27A34Z 27
MTS/SAP 1 Tuner 6
B27A34Z6 27
MTS/SAP 1 Tuner 6
B27A34ZF 27
MTS/SAP 1 Tuner 6
B27A74R 27
MTS/SAP None 6
B27A76R 27
MTS/SAP None 6
COMPONENT LEVEL REPAIR ONLY
&$ &K DVVLV 0R GHO,QIRU P DW LRQ
MODEL SCR AUDIO PIP JACKS
CB25A25Z
25
MTS/SAP None 6
CB25A25Z6
25
MTS/SAP None 6
CB27A10Z
27
Stereo None 0
CB27A10ZC
27
Stereo None 0
CB27A25Z
27
MTS/SAP None 6
LGB26A11ZM
25
Stereo None 3
LGB26A11ZM6
25
Stereo None 3
LGB29A10ZM
27
Stereo None 0
LGB29A10ZM5
27
Stereo None 3
LGB29A11ZM
27
Stereo None 3
LGB29A11ZM5
27
Stereo None 3
LGB29A13ZM
27
Stereo None 0
LGB29A24ZM
27
MTS/SAP None 6
LGB29A24ZM5
27
MTS/SAP None 6
LGB29A30ZM
27
Stereo 1 Tuner 3
LGB29A30ZM5
27
Stereo 1 Tuner 3
B32A24Z
32
MTS/SAP None 6
B32A24Z6
32
MTS/SAP None 6
B32A24ZF
32
MTS/SAP None 6
B32A30Z
32
Stereo 1 Tuner 3
B32A30Z6
32
Stereo 1 Tuner 3
B32A30ZF
32
Stereo 1 Tuner 3
B32A34Z
32
MTS/SAP 1 Tuner 3
B32A34Z6
32
MTS/SAP 1 Tuner 3
B32A34ZF
32
MTS/SAP 1 Tuner 3
B36A24Z
36
MTS/SAP None 6
B36A24Z6
36
MTS/SAP None 6
B36A24ZF
36
MTS/SAP None 6
B36A30Z
36
Stereo 1 Tuner 3
B36A30Z6
36
Stereo 1 Tuner 3
B36A30ZF
36
Stereo 1 Tuner 3
B36A34Z
36
MTS/SAP 1 Tuner 6
B36A34Z6
36
MTS/SAP 1 Tuner 6
B36A34ZF
36
MTS/SAP 1 Tuner 6
MODULE LEVEL REPAIR ONLY
COMPONENT LEVEL REPAIR ONLY
&$0RGHO,QIRUPDW LRQFRQWLQXHG

Table of Contents

Related product manuals