EasyManua.ls Logo

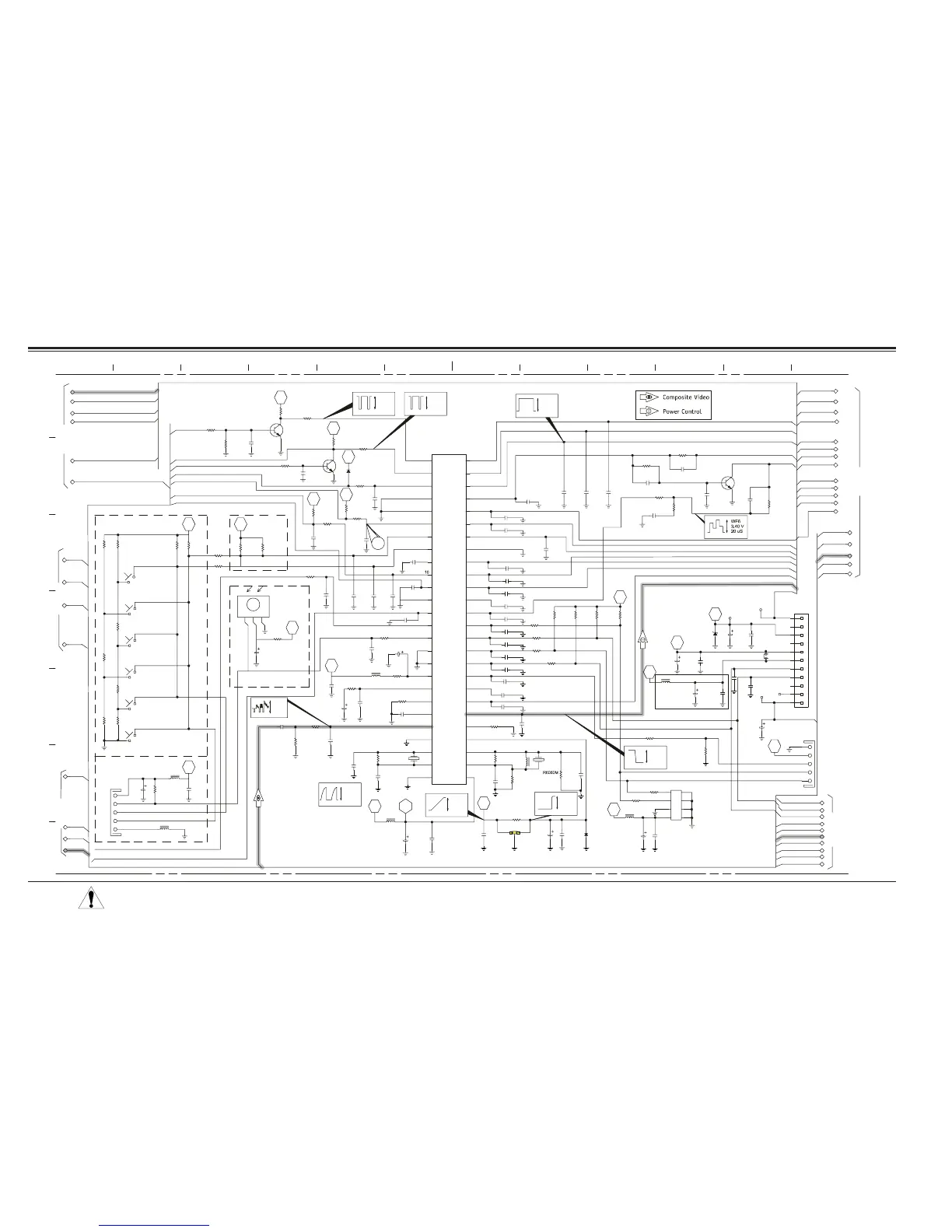
Zenith B25A76R - Main Microprocessor

Zenith B25A76R
112 pages
Print Icon
To Next Page IconTo Next Page
To Next Page IconTo Next Page
To Previous Page IconTo Previous Page
To Previous Page IconTo Previous Page
Loading...
CRITICAL SAFETY COMPONENTS ARE IDENTIFIED BY THE LETTER “X“ IN THEIR
COMPONENT DESIGNATORS. REPLACE ONLY WITH PART NUMBERS SPECIFIED.
ALL SYMBOLS WITH “M” ON END OF DESIGNATOR
INDICATE SURFACE MOUNTED COMPONENT
Main Microprocessor
WF2
4.98V
20US
WF3
4.40V
5MS
FASTBLANK
B+UP
G+UP
R+UP
WF1-A
5V
2O MS
WF12
3.60V
18 US
WF4
2.34V
20 US
AUXSWITCH1
VOL-CTRL
PIPSWITCH1
HALFTONE
MUTE
PWRCONT
CRT-PROTECTOR
DEG-CTL
VERT-SIZE
IF
8
9
10
11
7
6
5
4
3
2
1
HORZ-SIZE
EXT-AUD
VOL-CTRL
AUD-SWITCH
DEG-CTL
PROV
50V
PIPSWITCH1
AUD-SWITCH
47PF
50V
FM/IF-OUT
PROV
+5V
TUNE
IF
P/L
P/L
50V
20-4129-16
4.7UH
EXT-AUD
VM-OUT-R
EXT-R
VM-OUT-L
MUTE
SYNC
63PF
50V
47PF 50V
50V
0.10UF
47PF
50V
47PF 50V
VERT-SIZE
160PF
50V
160PF
50V
47PF
50V
47PF
50V
47PF
50V
47PF
50V
470PF
50V
4.7UF
50V
16V
220UF
50V
1UF
160PF
50V
HSYNC
VSYNC
AFC
FM_SD
N/C
SYNC
A/D_KEY2
A/D_KEY1
N/C
Y/C-SE NSE
PIP_BRT
N/C
CRT-PROT
MUTE
REMOTE
N/C
N/C
AVCC
HLF
RVCO
VHOLD
CVIN
CNVSS
XIN
XOUT
VSS
VCC
OSC-IN
OSC-OUT
RESET
CHASSIS_ID
POWER
DEG-CTL
RADIO/TV
IDENT
SDA2
SDA1
SCL2
SCL1
H/T
N/C
AUX_SW1
PIPSWITCH1
AUD-
N/C
VOL
HORZ-SIZE
VERT-SIZE
FB
B
G
R
P/L
SWITCH
+5V
SB
SBF
+5V
SBF
+5V
47PF 50V
SBF
+5V
SBF
+5V
SBF
+5V
SBF
+5V
SCL
SBF
+5V
SBF
+5V
SBF
+5V
SBF
+5V
COMP-AUD
COMP-AUD
+9V
SW
+5V
SBF
10000PF
25V
+5V
SBF
120PF
50V
470PF
50V
220PF
50V
1000PF
50V
20PF
50V
20PF
50V
P/L
P/L
HORZ-SIZE
2200PF
50V
470PF
50V
10000PF
25V
P/L
PROV PROV PROV
10000PF
25V
2200PF
50V
AUXSWITCH1
VRAMP
47PF
50V
10000
25V
+5V
SBF
10000
25V
47PF
50V
47PF
50V
P/L
Y/C-SENSE
120PF
50V
220PF
50V
PROV
10000PF
25V
CRT-PROTECTOR
50V
0.10UF
47PF
50V
+5V
SBF
PROV
50V
47PF
50V
SBF
+5V
FLYBACK
VERT- DRIVE
AFC
SDA
COMP-VIDEO
PWRCONT
SDA
SCL
33V
103-279-36A
12
WF
FASTBLA NK
B+UP
G+UP
R+UP
AGC
IF
P/L
4.7UF
50V
VM-OUT-L
4.7UF
50V
P/L
1UF
50V
VM-OUT-R
224-74-02A
EXT-L
EXT-L
EXT-R
P/L
PROV
P/L
220
120
50V
P/L
220
10K
P/L
P/L
4.7K
4.7K
2.2K
JUMPER
1.5K
P/L
39K
10K
+33V
1UH
4.7K
220
PROV
1K
1K
UP UP UP UP
150
10K
220
10K
47K
4.7UH
47K
P/L
220
P/L
P/L
P/L
P/L
P/L
P/L
P/LP/L
2.2K
PROV
15K
0
JUMPER
1K
P/L
1M
1M
27K
220
P/L
330
750K
330
P/L 4.7K 4.7K
P/L
P/L
P/L
4.7K
2.2UF
CH-DOWN
MENU
VOL-UP
CH-UP
ON/OFF
VOL-DOWN
P/L
P/L
GND
VS
VOUT
R6036M
CRY6002
C6062M
R6029M
C6055M
R6043
R6040M
C6067M
**J6000M
R6082M
R6081M
R6041
R6072
R6083M
C6064M
C6065M
R6084M
L6001
Q6003
C6057M
D6001
R6059M
R6061M
C6093M
R6030
R6053M
C6045M
L6002
R6058M
C6009
C6061M
C6095M
C6053M
C6052M
C6050M
C6049M
C6048M
C6047M
C6046M
R6026
C6098
C6013
C6006
C6051M
IC6000
C6038M
L6003
R6001M
R6050M
C6012M
C6001M
C6003M
C6005M
C6007M
C6008M
C6011M
C6010M
C6014M
C6015M
C6066
C6018M
C6019M
C6021M
C6023M
C6024M
C6025M
C6033M
C6026M
P/L
C6029M
C6031M
C6090M
R6090M
2K6
R6016
C6042M
C6043M
R6006M
C6079M
C6092M
R6008M
R6002M
C6036M
R6003M
R6004M
C6040M
L6007
R6012M
R6017M
R6049
R6019M
IR6000
R6020M
R6021M
R6023M
R6024M
R6022M
R6025M
R6027
C6037
R6031M
R6032M
R6033M
R6015
R6018
C6094M
R6034M
R6035M
C6056M
R6037M
R6039M
C6017
D6002
R6045M
R6042M
R6080
R6044M
R6046M R6047M
R6048M
C6041M
L6005
C6035
L6004
R6069M
C6058M
Q6002
Q6001
R6005M
ZD6001
C6016
L6000
SW3
SW6
SW4
SW2
SW1
SW5
R6028
C6004
C6020
C6028
C6030
C6032
CRY6001
R6070M
IC6002
IC6001
4G9
TU6000
TP6004
TP6010
TP6006
CX6027
P/L
TP6005
221-1177A
KIA7042
P/L
103-461A
20-4129-8
58-526-05
20-4129-16
103-461A
121-1310A
121-1310A
P/L
P/L
P/L
P/L
P/L
P/L
221-745-04
58-526-05
C
B
E
1
2
3
4
5
6
7
8
9
11
12
13
14
52
51
50
49
48
47
46
45
44
43
42
41
40
39
15
16
17
18
19
20
21
22
23
24
25
26
38
37
36
35
34
33
32
31
30
29
28
27
4
3
2
1
5
3
2
1
C
B
E
C
B
E
VCC OUT
GND
1
2
3
4
5
6
7
8
4
3
2
1
5
12345678
A
B
C
D
E
F
G
91011 12
EXTERNAL
KEYBOARD
TUNNER
FACTORY
SETUP
4.3
0.1
0
5
0.4
0
0
0
5.2
5.2
2.25
3.8
4.9
4.9
4.9
5.14
4.9
4.85
1.44
1.44
0.16
0
0
3.42
4.56
4.85
2.9
WF5
4.88V
1 US
WF10
5.0V
5 US
WF1
5V
20 MS
AUXSWITCH
SHEET 5
SHEET 5
SHEET 3
SHEET 3
SHEET 3
C6068M
2200PF
50V
4.9
4.9
4.9
4.9
4.9
175-2721 ZENITH TUNER
175-2771 LG TUNER
OMIT FOR 175-2771 TUNER
**ONLY FOR 175-2771 TUNER
C6090
PROV
C6070
PROV
PROV
PROV
PROV
P/L
6-4 CA SHEET 4

Table of Contents

Related product manuals