Home
A.O. Smith
Water Heater
BFC-120
Page 22
A.O. Smith BFC-120 - Page 22
104 pages
Manual
Save Page as PDF
To Next Page
To Next Page
To Previous Page
To Previous Page
Loading...
20
Instruction manual BFC
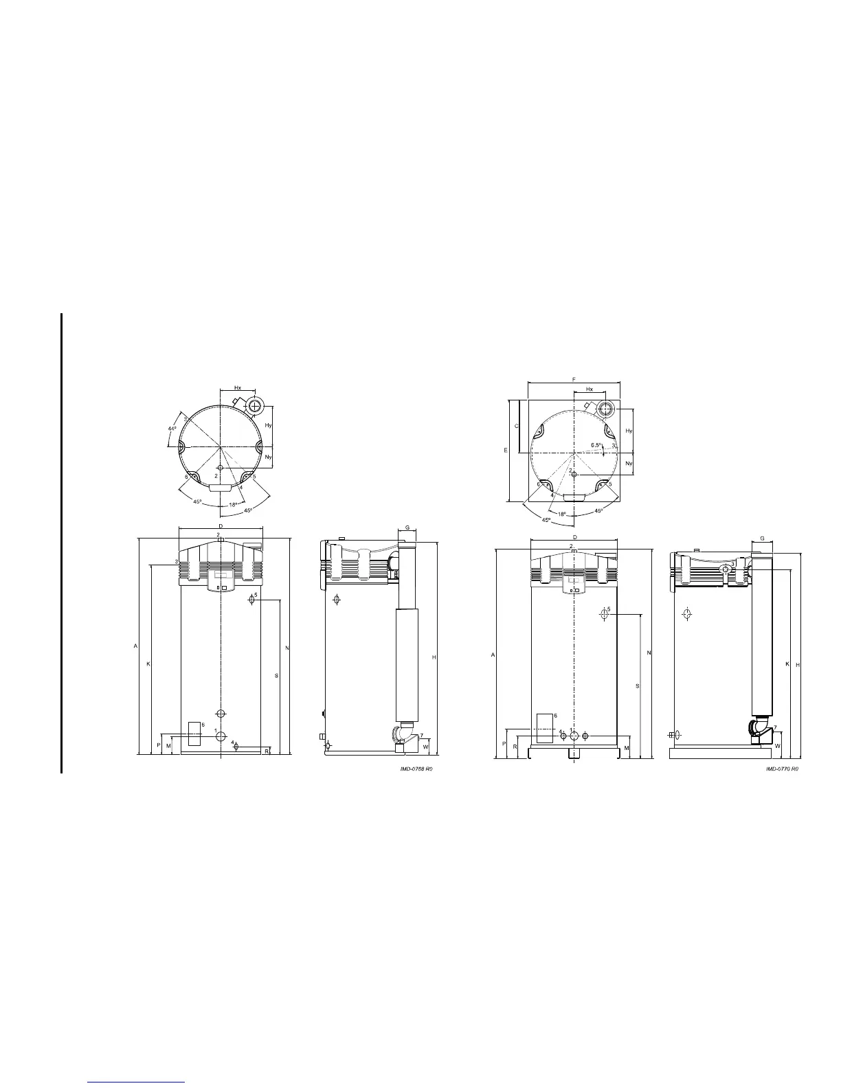
3.4.1
Dimensions of the water heater
T
op and front view of the appliance
Legend
See the table.
BFC 28, 30, 50, 60
BFC 80, 100, 120
21
23
Table of Contents
Main Page
Default Chapter
7
Table of Contents
7
1 Introduction
11
About the Water Heater
11
What to Do if You Smell Gas
11
Regulations
11
Target Groups
12
Maintenance
13
Notation Conventions
13
Overview of this Document
14
2 Working Principle of the Water Heater
15
Introduction
15
General Working Principle of the Water Heater
15
Water Heater Operating Cycle
17
Protection for the Water Heater
17
Safety of the Installation
18
3 Installation
19
Introduction
19
Packaging
19
Ambient Conditions
19
Technical Specifications
21
Installation Diagram
27
Unvented Water Connections
28
Vented Water Connections
29
Gas Connection
29
Air Supply and Chimney Flue Discharge
30
Specifications
33
Electrical Connection
35
Isolating Transformer
37
Check the Supply Pressure, Gas Controller Pressure, CO 2 Value and Switching Pressure
38
4 Conversion to a Different Gas Category
47
Introduction
47
5 Filling
49
Filling Unvented Installations
50
Filling Vented Installations
50
6 Draining
51
Draining Unvented Installations
52
Draining Vented Installations
52
7 The Control Panel
53
Introduction
53
Control
53
Explanation of Icons
53
ON/OFF Switch on Controller
53
Navigation Buttons
53
PC Connection
54
8 Status of the Water Heater
55
Introduction
55
Operating Modes
55
Error Conditions
56
Service Condition
56
Anode Warning
57
9 Starting the Water Heater
59
Introduction
59
Starting the Appliance
59
The Appliance's Heating Cycle
59
10 Shutting down
61
Introduction
61
Decommissioning the Water Heater for a Short Period
61
Isolating the Water Heater from the Mains
61
Decommissioning the Water Heater for a Long Period
61
11 Main Menu
63
Introduction
63
Notation Convention for Menu-Related Instructions
63
Switching to "ON Mode
63
Setting the Water Temperature
63
Week Program
64
Starting and Stopping the Week Program
64
Changing the Appliance's Standard Week Program
64
Adding Times to a Week Program
66
Deleting Times from a Week Program
67
Extra Period
68
Settings
69
12 Service Program
71
Introduction
71
Setting the Hysteresis
71
Displaying the Error History
71
Displaying the Water Heater History
71
Display the Selected Water Heater
72
Switching the Pump on or off
72
Setting the Service Interval
72
Service Mode
72
Setting Legionella Prevention
73
13 Errors
75
Introduction
75
Troubleshooting Table for General Errors
76
Troubleshooting Table for Displayed Errors
78
Warnings on the Display
86
14 Service Interval
87
Introduction
87
Determining Service Interval
87
15 Performing Maintenance
89
Introduction
89
Preparation for Maintenance
89
Water-Side Maintenance
90
Gas-Side Maintenance
91
Finalizing Maintenance
92
16 Warranty (Certificate)
93
General Warranty
93
Tank Warranty
93
Conditions for Installation and Use
93
Exclusions
94
Scope of the Warranty
94
Claims
94
Obligations of A.o.smith
94
17 Appendices
95
Introduction
95
Menu Structure
96
Electrical Diagram
98
Declaration of Conformity
100
Week Program Card
101
Related product manuals
A.O. Smith BFC-28
104 pages
A.O. Smith BFC 50
118 pages
A.O. Smith BFC Cyclone
118 pages
A.O. Smith Cyclone BFC - 30
98 pages
A.O. Smith cyclone BFC - 80
96 pages
A.O. Smith BL-100
36 pages
A.O. Smith BTX 100
60 pages
A.O. Smith BTH-120
80 pages
A.O. Smith BTH 300
76 pages
A.O. Smith BTH 199 Series
50 pages
A.O. Smith BTR 119 SERIES
31 pages
A.O. Smith BTX-80 SERIES 100
40 pages