EasyManua.ls Logo

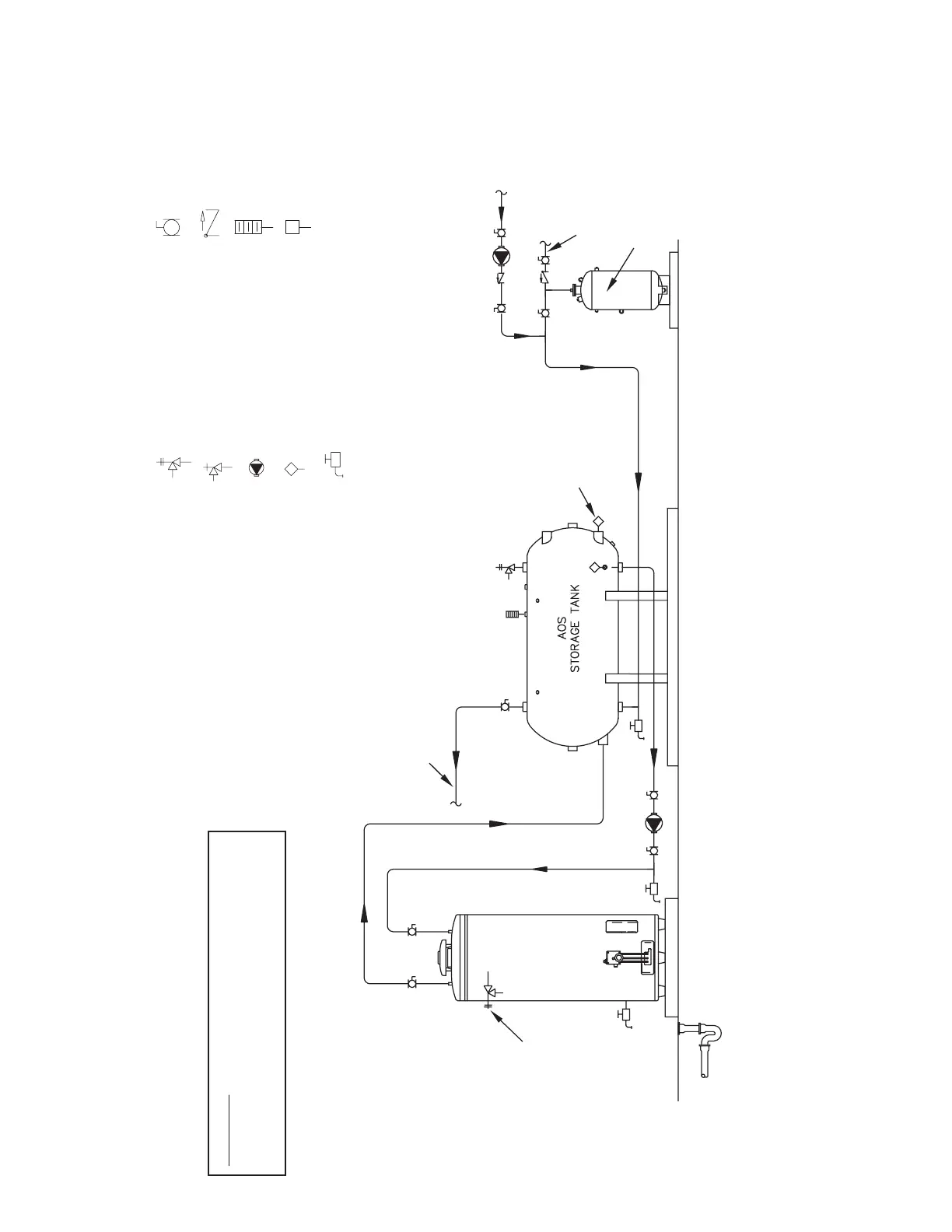
A.O. Smith BL-80 - Water Piping Diagrams (Continued); Single Flue - (1 Unit) with Horizontal Storage Tank

A.O. Smith BL-80
36 pages
Print Icon
To Next Page IconTo Next Page
To Next Page IconTo Next Page
To Previous Page IconTo Previous Page
To Previous Page IconTo Previous Page
Loading...
29
October 2009 | Printed in U.S.A. | © A. O. Smith For Technical Information and Automated Fax Service, call 800-527-1953 or visit www.hotwater.com. AOSCG61150 | PAGE 1 of 1
A. O. Smith Corporation reserves the right to make product changes or improvements without prior notice.
NOTES:
1. Preferred piping diagram.
2. The temperature and pressure relief valve setting shall not exceed pressure rating of any component in the system.
3. Service valves are shown for servicing unit. However, local codes shall govern their usage.
4. The Tank Temperature Control should be wired to and control the pump between the water heater(s) and the storage tank(s).
5. The water heater’s operating thermostat should be set 5 degrees F higher than the Tank Temperature Control.
SINGLE FLUE - (1 UNIT) WITH HORIZONTAL STORAGE TANK
LEGEND
TEMPERATURE & PRESSURE
RELIEF VALVE
PRESSURE RELIEF VALVE
CIRCULATING PUMP
TANK TEMPERATURE CONTROL
DRAIN
FULL PORT BALL VALV
E
TEMPERATURE GAGE
WATER FLOW SWITCH
CHECK VALVE
WARNING: THIS DRAWING SHOWS SUGGESTED
PIPING CONFIGURATION AND OTHER DEVICES;
CHECK WITH LOCAL CODES AND ORDINANCES
FOR ADDITIONAL REQUIREMENTS.
FINISHED
FLOOR
HOTCOLD
EXPANSION
TANK
COLD WATER
SUPPLY
HOT WATER
RETURN FROM
FIXTURES
HOT WATER
TO FIXTURES
ALTERNATE
LOCATION
PIPE T&P TO
OPEN DRAIN

Table of Contents

Related product manuals