EasyManua.ls Logo

ABB DCS550-S01 - Page 70

ABB DCS550-S01
108 pages
Print Icon
To Next Page IconTo Next Page
To Next Page IconTo Next Page
To Previous Page IconTo Previous Page
To Previous Page IconTo Previous Page
Loading...
70 3ADW000395R0100 DCS550 Quick guide edisf a70 3ADW000395R0100 DCS550 Quick guide edisf a
Signaux de commande DEMARRAGE, ARRET et ARRET
URGENCE
La logique de commande peut être divisée en trois parties:
a: Génération des signaux ENC/DECL et DEMAR/ARRET:
ces signaux de commande repsentés par les relais à
verrouillage K20 et K21 peuvent, par exemple, provenir dun
automate (API) et être transmis sur les bornes du convertis-
seur soit par des relais à isolation galvanique soit directement
en utilisant des signaux 24 V.
Ces signaux peuvent également être transmis sur liaison série.
Même une solution mixte peut être réalie, en utilisant une
option pour un signal et une autre pour un autre signal (cf.
groupe de paramètres 11).
b: Gération des signaux de commande et de surveillance:
Le contacteur principal K1 de l’alimentation (puissance du va-
riateur) est comman par un contact sec (DO 8) de la carte
SDCS-PIN-F. Létat des ventilateurs et de leurs sondes klixon
peut être surveillé avec les signaux dacquit du ventilateur :
AcqVentilMoteur (10.06).
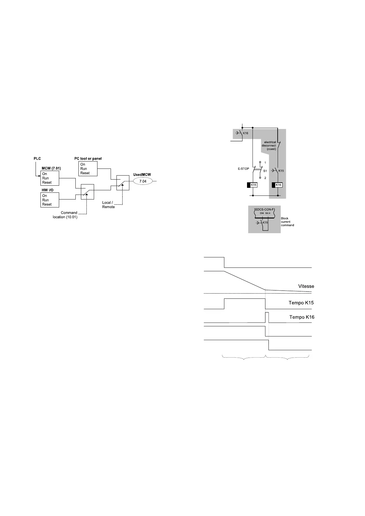
c: Arrêts OFF2 (ArrUrg/RoueLibre), OFF3 (Art Urgence):
Outre les types darrêt ENC/DECL et DEMAR/ARRET, le varia-
teur offre deux types d’art supplémentaires, OFF2 et OFF3,
conformes Profibus. OFF3 est un type darrêt paratrable
(sur rampe, limite couple, freinage dynamique,) pour ali-
ser un arrêt de catégorie 1. Cette fonction doit être raccore
au bouton d’arrêt d’urgence (E-STOP) sans temporisation.
Si un arrêt sur rampe est sélectionné, le relais temporisé K15
doit être réglé sur un délai plus long que RampArretUrgenc
(22.04). Si un arrêt en roue libre est sélectionné, le variateur
ouvre immédiatement le contacteur principal.
Le réglage OFF2 coupe le courant continu le plus vite pos-
sible et ppare le variateur à l’ouverture du contacteur prin-
cipal ou à la coupure de la tension seau. Pour une charge
moteur CC normale, le temps de coupure du courant continu
est inférieur à 20 ms. Ce type d’arrêt, important pour les va-
riateurs 4Q, doit être raccor à tous les signaux et fonctions
de sécurité avec ouverture du contacteur principal. Ne pas
ouvrir le contacteur principal pendant le fonctionnement en
mode rénératif.
Séquence correcte
1. coupure du courant génératif, puis
2. ouverture du contacteur principal
Si le bouton d’arrêt d’urgence (E-STOP) est activé, l’informa-
tion est transmise au convertisseur via l’entrée logique DI5. Si
un arrêt sur rampe ou par la limite de couple est lection,
le variateur célérera le moteur et le contacteur principal
s’ouvrira.
Si le variateur ne peut arrêter complètement le moteur au
cours de la tempo scifiée pour K15, il doit envoyer le signal
de coupure du courant via K16. Aps écoulement de la
tempo de K16, le contacteur principal s’ouvre quel que soit
l’état du variateur.
Anschl_special_b.dsf
Stop-Mode_b.dsf
Rampe Arrêt Urgence
Roue libre
Contacteur princ. K1
Cde blocage courant
Arrêt d
urgence
Séquence d’art durgence (E-Stop)
Type d’arrêt

Table of Contents

Related product manuals