EasyManua.ls Logo

ABB E1N 08 - Page 156

ABB E1N 08
161 pages
Print Icon
To Next Page IconTo Next Page
To Next Page IconTo Next Page
To Previous Page IconTo Previous Page
To Previous Page IconTo Previous Page
Loading...
L2234
Emax
155/158
Doc. No.
Model
1SDH000460R0002
Apparatus
Scale
Page No.
L2778
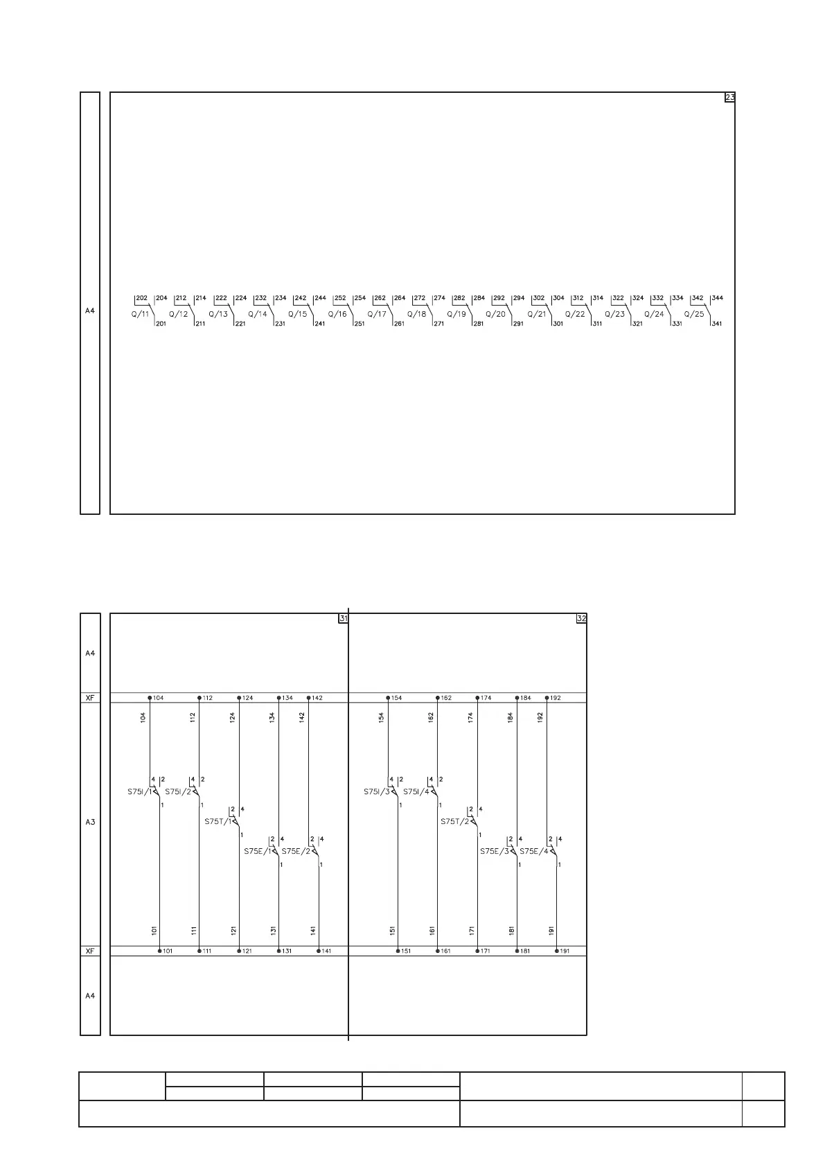
Signalling contacts

Table of Contents

Related product manuals