EasyManua.ls Logo

ABB Emax E1 - Page 57

ABB Emax E1
74 pages
Print Icon
To Next Page IconTo Next Page
To Next Page IconTo Next Page
To Previous Page IconTo Previous Page
To Previous Page IconTo Previous Page
Loading...
L6555
Emax
57/74
Doc. No
Model
Apparatus
Scale
Page No
1SDH000460R0002
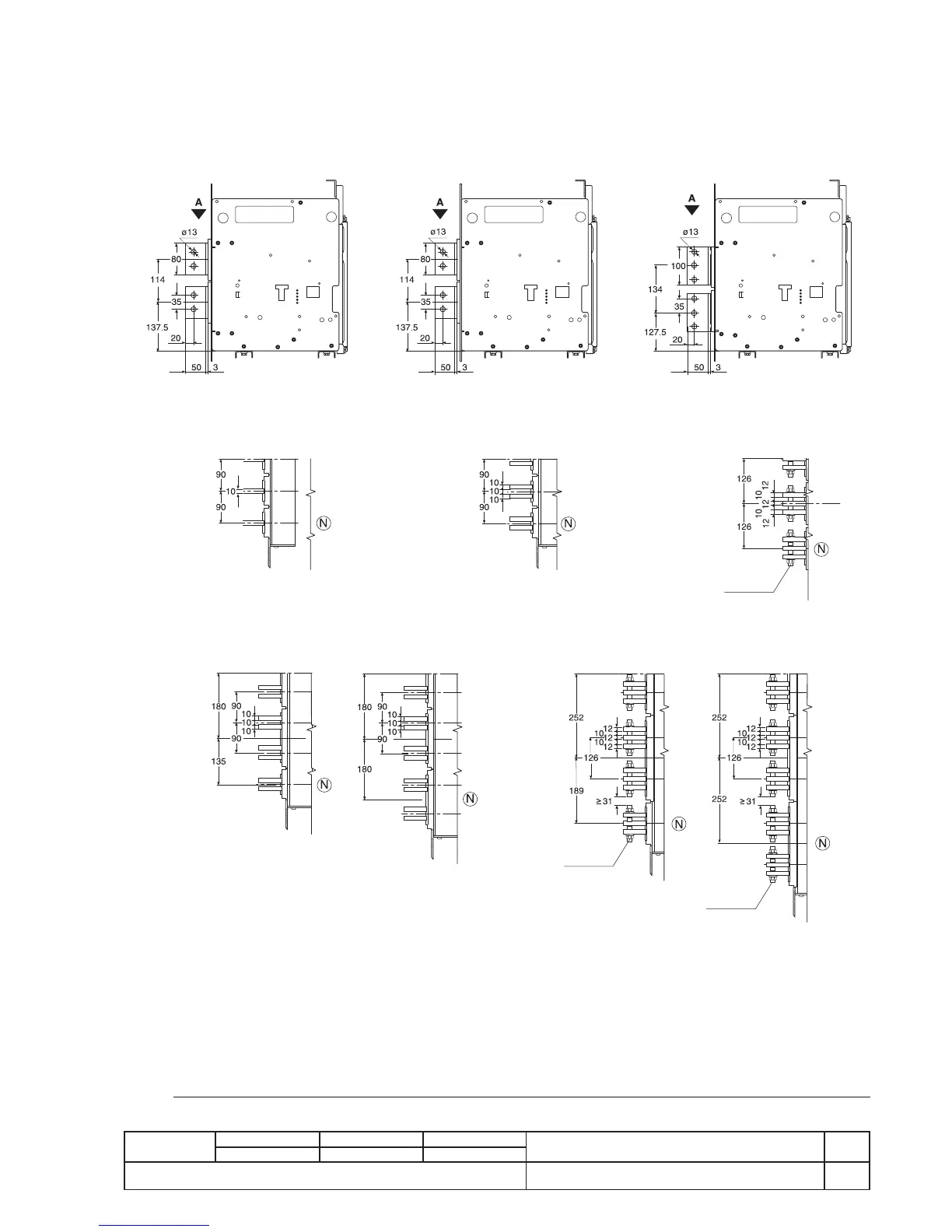
E1 E2/E4 E3/E6
Withdrawable circuit-breaker
Basic version with vertical rear terminals
Captive M12
included in the
supply
E1
View A
E2
View A
E3
View A
E4
View A
E6
View A
E4/f
View A
E6/f
View A
Captive M12
included in the
supply
Captive M12
included in the
supply
Fig. 42

Table of Contents

Related product manuals