EasyManua.ls Logo

ABB Emax E1 - Page 59

ABB Emax E1
74 pages
Print Icon
To Next Page IconTo Next Page
To Next Page IconTo Next Page
To Previous Page IconTo Previous Page
To Previous Page IconTo Previous Page
Loading...
L6555
Emax
59/74
Doc. No
Model
Apparatus
Scale
Page No
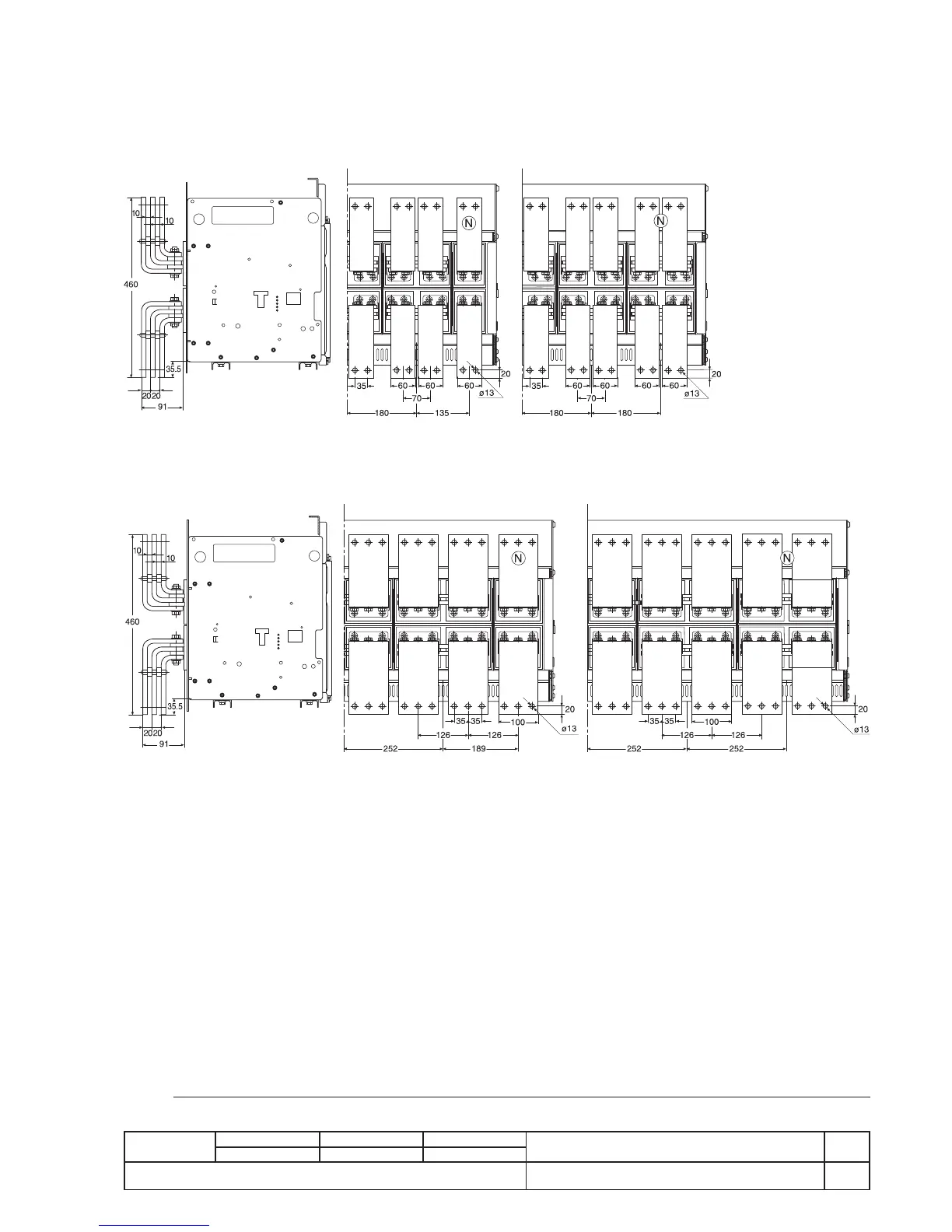
1SDH000460R0002
E4
E6
E6 E6/f
E4 E4/f
Withdrawable circuit-breaker
Version with front terminals
Fig. 44

Table of Contents

Related product manuals