EasyManua.ls Logo

ABB Emax E6 - Page 58

ABB Emax E6
74 pages
Print Icon
To Next Page IconTo Next Page
To Next Page IconTo Next Page
To Previous Page IconTo Previous Page
To Previous Page IconTo Previous Page
Loading...
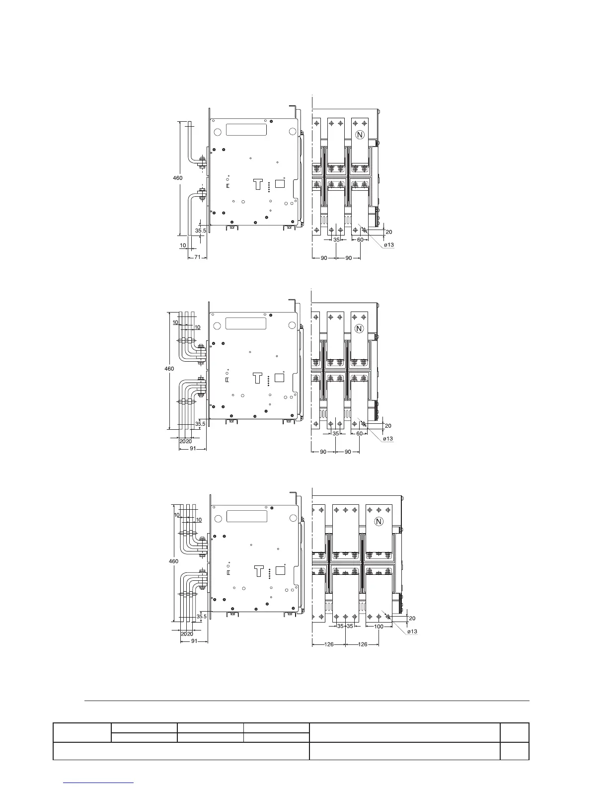
L6555
Emax
58/74
Doc. no.
Model
Apparatus
Scale
Page No
1SDH000460R0002
E1
E2
E3
Withdrawable circuit-breaker
Version with front terminals
Fig. 43

Table of Contents

Related product manuals