EasyManua.ls Logo

ABB hd4 - Page 23

ABB hd4
44 pages
Print Icon
To Next Page IconTo Next Page
To Next Page IconTo Next Page
To Previous Page IconTo Previous Page
To Previous Page IconTo Previous Page
Loading...
21
F
F
232
842
275 275
730
750
792
853
882
144
708
284
310
673
552
169
89
109
36
30
53
695
8
28
10
702
6356
15
416
359
4
25.5
19.5
640
Φ
144 232
275 275
730
842
708
750
792
853
882
(*)
34 x 80
80
4
30
359
53
416
554
33
640
8
28
640
702
10
15
63
56
169
89
673
695
25.5
19.5
310
284
YU
YU
Q60
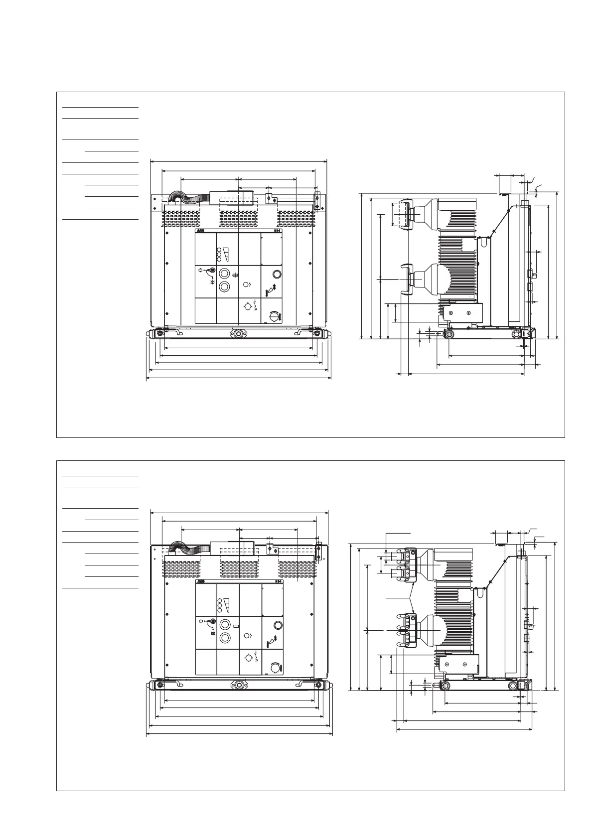
HD4/C utdragbar brytare för CBE-kapslingar och
CBF-kassetter
HD4/C withdrawable circuit-breakers for CBE
enclosures and CBF fixed parts
HD4/C
TN 7153
För
For
CBE31
Ur 12 kV
17,5 kV
Ir 2000 A
Isc 25 kA
31,5 kA
40 kA
50 kA
HD4/C
TN 7155
För
For
CBE31
Ur 12 kV
17,5 kV
Ir 2500 A
Isc 25 kA
31,5 kA
40 kA
50 kA
(*) Only for 17.5 kV.
(*) Endast för 17,5 kV.

Table of Contents

Related product manuals