EasyManua.ls Logo

ABB hd4 - HD4;P Utdragbar Brytare Till Ställverk Unigear Typ ZS1; HD4;P Withdrawable Circuit-Breakers

ABB hd4
44 pages
Print Icon
To Next Page IconTo Next Page
To Next Page IconTo Next Page
To Previous Page IconTo Previous Page
To Previous Page IconTo Previous Page
Loading...
25
F
F
Q60
35
78
4
437
53570
36
659
20
5.572
56
543
586
205
260
154
21.5
51
28
10
622 MAX
19
416
4
30
202
150
150
503
532
493
458
621.5
247.5
63
67.5
624.5
4
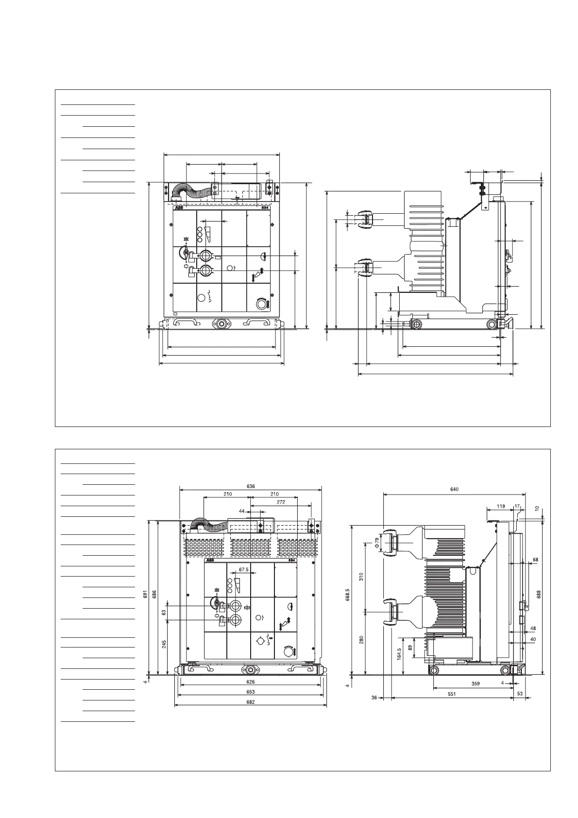
HD4/P utdragbar brytare till ställverk
UniGear typ ZS1
HD4/P withdrawable circuit-breakers
for UniGear type ZS1 switchgears
HD4/P
TN 7286
Ur 12 kV
17,5 kV
Ir 630 A
1250 A
Isc 16 kA
25 kA
31,5 kA
HD4/P
TN 7350
Ur 12 kV
17,5 kV
Ir 1250 A
Isc 40 kA
HD4/P
TN 7350
Ur 12 kV
17,5 kV
Ir 1600 A
Isc 25 kA
31,5 kA
40 kA (*)
50 kA (*)
HD4/P
TN 7351
Ur 12 kV
17,5 kV
Ir 2000 A
Isc 25 kA
31,5 kA
40 kA (*)
50 kA (*)
(*) Effektbrytare anpassad för PowerCube PB2.
(*) Also suitable for PowerCube PB2.

Table of Contents

Related product manuals