EasyManua.ls Logo

ABB hd4 - HD4;C Utdragbar Brytare För CBE-Kapsling Och CBF-Kassetter

ABB hd4
44 pages
Print Icon
To Next Page IconTo Next Page
To Next Page IconTo Next Page
To Previous Page IconTo Previous Page
To Previous Page IconTo Previous Page
Loading...
20
35
264
205
158
78
4
437
53
570
36
659
636
8
588
28
25.5
19.5
547
416
20
5.5
72
56
630
10
30
202
150 150
503
532
493
458
340
627
F
F
F
F
636
578
210 210
550
606
653
682
272
44
36
79
169
89
359
4
551
40
8
28
640
695
25.5
19.5
416
15
63
56
284
310
673
10
702
640
53
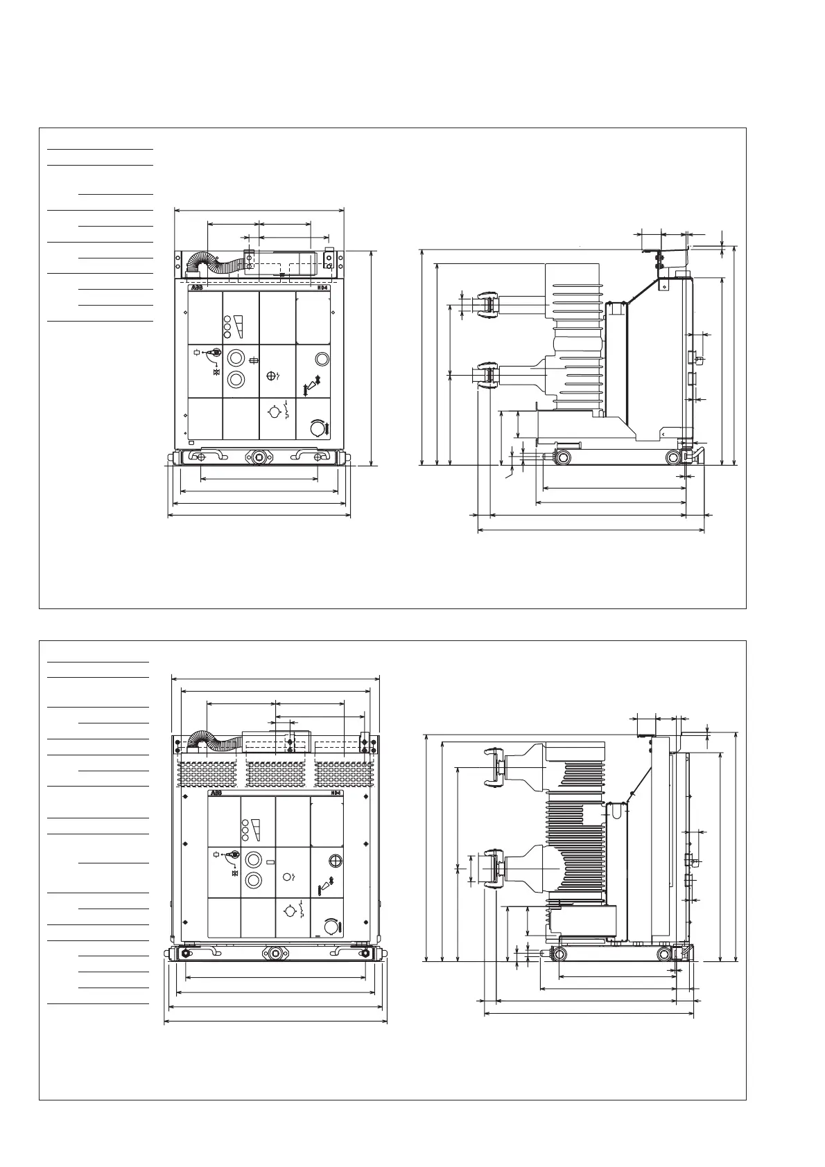
HD4/C utdragbar brytare för CBE-kapslingar och
CBF-kassetter
HD4/C withdrawable circuit-breakers for CBE
enclosures and CBF fixed parts
HD4/C
TN 7184
För
For
CBE11
CBF11
Ur 12 kV
17,5 kV
Ir 630 A
1250 A
Isc 16 kA
25 kA
31,5 kA
HD4/C
TN 7151
För
For
CBE21
Ur 12 kV
17,5 kV
Ir 1250 A
Isc 40 kA
50 kA
HD4/C
TN 7151
För
For
CBE21
CBF21
(31,5kA)
Ur 12 kV
17,5 kV
Ir 1600 A
Isc 25 kA
31,5 kA
40 kA
50 kA

Table of Contents

Related product manuals