EasyManua.ls Logo

ABB hd4 - Page 25

ABB hd4
44 pages
Print Icon
To Next Page IconTo Next Page
To Next Page IconTo Next Page
To Previous Page IconTo Previous Page
To Previous Page IconTo Previous Page
Loading...
23
F
F
550
610
653
682
776
44
641
578
272
210 210
329
310
718
710
20
36
792
23
799
23
202
125
25.5
460
53
4
10
452
35
25.5
8
28
682
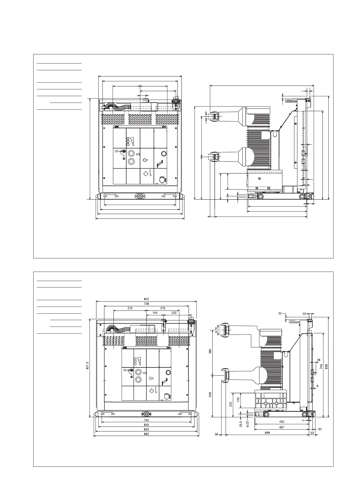
HD4/C utdragbar brytare för CBE-kapslingar och
CBF-kassetter
HD4/C withdrawable circuit-breakers for CBE
enclosures and CBF fixed parts
HD4/C
TN 7156
För
For
CBE41
Ur 24 kV
Ir 1250 A
Isc 31,5 kA
40 kA
HD4/C
TN 7157
För
For
CBE51
Ur 24 kV
Ir 1600 A
Isc 25 kA
31,5 kA
40 kA

Table of Contents

Related product manuals