EasyManua.ls Logo

ABB S800 - Page 72

ABB S800
186 pages
Print Icon
To Next Page IconTo Next Page
To Next Page IconTo Next Page
To Previous Page IconTo Previous Page
To Previous Page IconTo Previous Page
Loading...
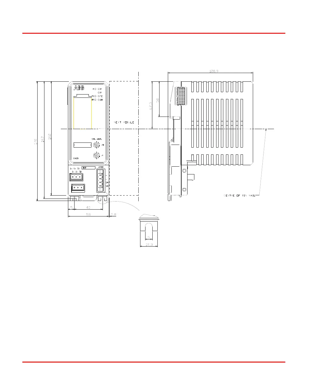
Fieldbus Communication Interface Section 2 Product Description
72 3BSE015969-600 A
Figure 25. CI820 FCI Dimensions

Table of Contents

Related product manuals