EasyManua.ls Logo

ABB S800 - Page 73

ABB S800
186 pages
Print Icon
To Next Page IconTo Next Page
To Next Page IconTo Next Page
To Previous Page IconTo Previous Page
To Previous Page IconTo Previous Page
Loading...
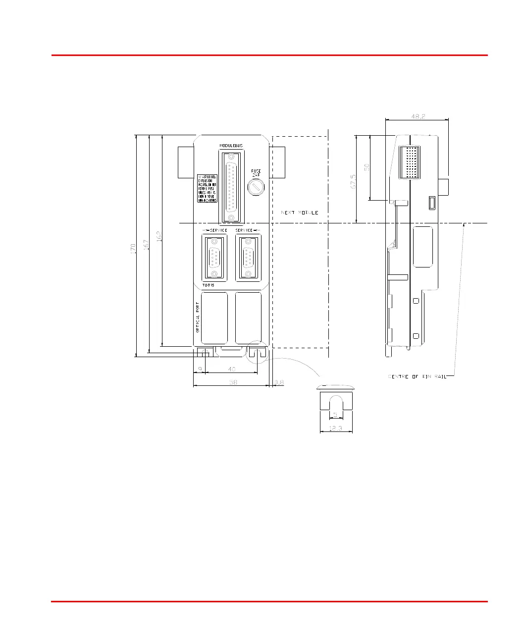
Section 2 Product Description Fieldbus Communication Interface
3BSE015969-600 A 73
Figure 26. TB815 Interconnection Unit Dimensions

Table of Contents

Related product manuals