EasyManua.ls Logo

ABB TPU - Page 40

ABB TPU
60 pages
Print Icon
To Next Page IconTo Next Page
To Next Page IconTo Next Page
To Previous Page IconTo Previous Page
To Previous Page IconTo Previous Page
Loading...
40
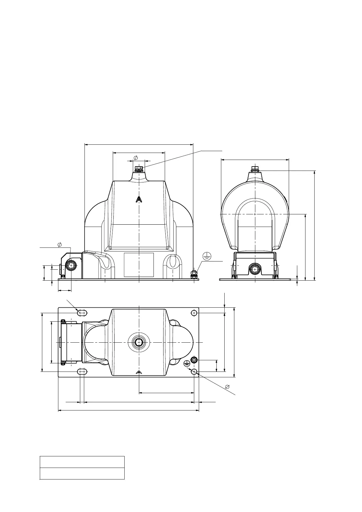
CURRENT AND VOLTAGE INSTRUMENT TRANSFORMERS
INSTRUCTIONS FOR INSTALLATION, USE AND MAINTENANCE
272
28
38
33
30
130
M8
M10x16
Pg16
14
4
170
280
169
178
R
7
352
2x
14
10 275 12
150 14
30
150
138
107
Drawing n.
1VL4200396R0101
TJCL 6
WEIGHT: 25kg
CREEPAGE DISTANCE: 326mm


Creepage distance: 326 mm


Related product manuals