EasyManua.ls Logo

ABB TPU - Page 48

ABB TPU
60 pages
Print Icon
To Next Page IconTo Next Page
To Next Page IconTo Next Page
To Previous Page IconTo Previous Page
To Previous Page IconTo Previous Page
Loading...
48
CURRENT AND VOLTAGE INSTRUMENT TRANSFORMERS
INSTRUCTIONS FOR INSTALLATION, USE AND MAINTENANCE
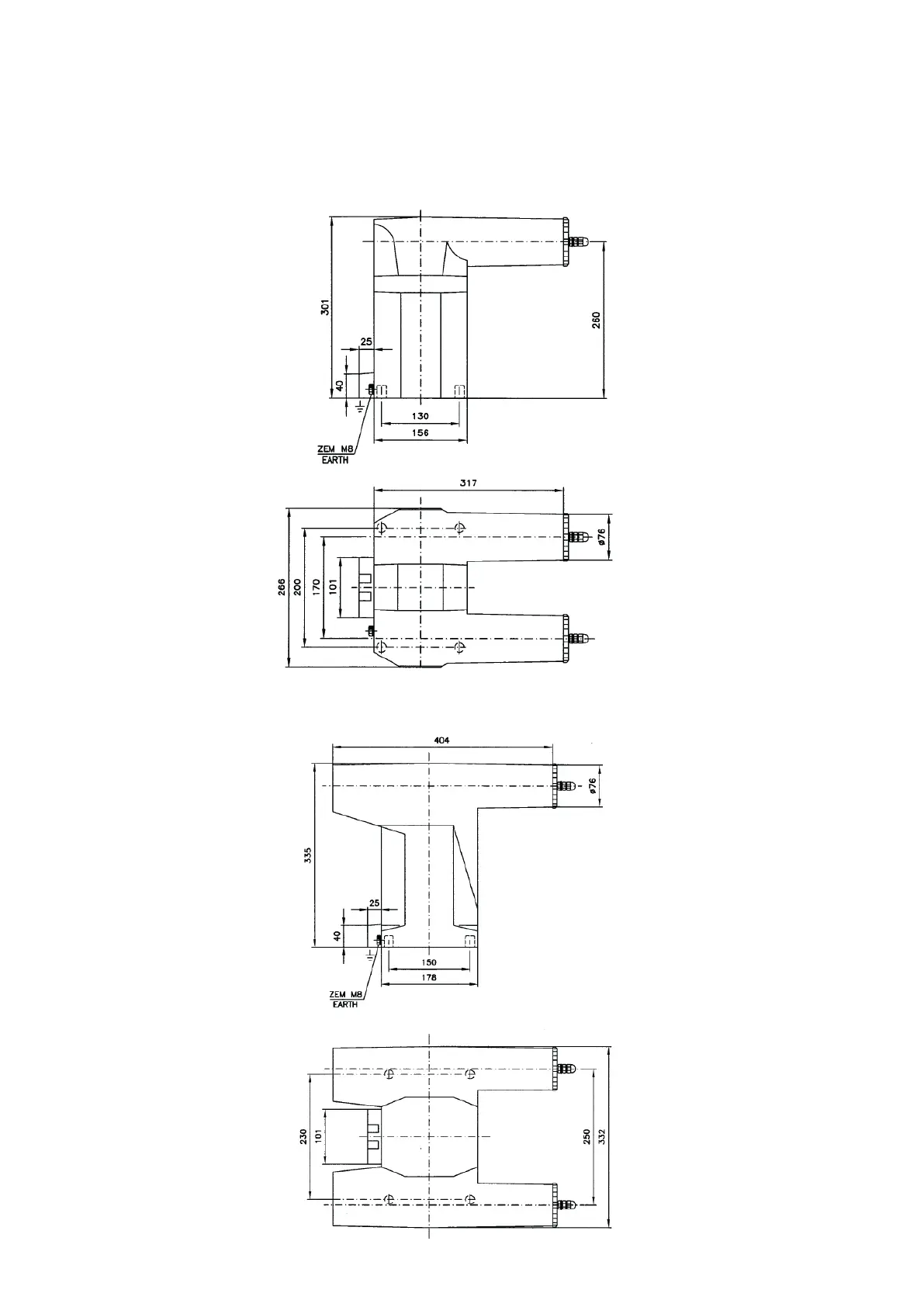
TDP 4.1
fuse JT6 300 mA
fuse JT6 600 mA
Weight: 29 kg
TDP 6.1
fuse JT6 300 mA
fuse JT6 600 mA
Weight: 38 kg
TDP 4.2
fuse IEC 600282-1
Weight: 29 kg
TDP 6.2
fuse IEC 600282-1
Weight: 38 kg
TDP
Dimensional Drawing

Related product manuals