EasyManua.ls Logo

ACP HDC12 - Page 40

ACP HDC12
44 pages
Print Icon
To Next Page IconTo Next Page
To Next Page IconTo Next Page
To Previous Page IconTo Previous Page
To Previous Page IconTo Previous Page
Loading...
38
FA F F FA
208/230V 60HZ
3-WIRE
SCHEMATIC
CONDITION:
DOOR OPEN
DOOR CLOSED
INTERLOCK SWITCH
SCHEMATIC
NOC
C NO
PRIMARY
SECONDARY
C NCMONITOR
CAPACITOR
RESISTOR
CAPACITOR
RESISTOR
INTERLOCK
SWITCH
(PRIMARY)
M
BLOWER MOTOR
COM
POWER
AUX
CONTROL
BOARD
MONITOR
SWITCH
TCO
(OVEN)
MAGNETRON 1
(TOP)
MAGNETRON 2
(BOTTOM)
BOT MAG
TCO
POWER TRANSFORMER
208
230 COM
230 208
208/230
HV
FAN
RELAY
OVEN LIGHT
(NOT ON ALL MODELS)
M
INTERLOCK
SWITCH
(SECONDARY)
LOWER
ANTENNA MOTOR
TOP MAG
TCO
20A
FUSE
POWER
CORD
RECTIFIER RECTIFIER
J1-2
E4
J4-6 J2-3
J2-1
E1
J4-1
J1-1
E3
E2
J2-2
G
TRIAC
2
J2-5
J2-4
1
M
UPPER
ANTENNA MOTOR
!
WARNING
To avoid risk of electrical shock, personal injury or death, disconnect power to oven and discharge capacitor
before servicing, unless testing requires power.
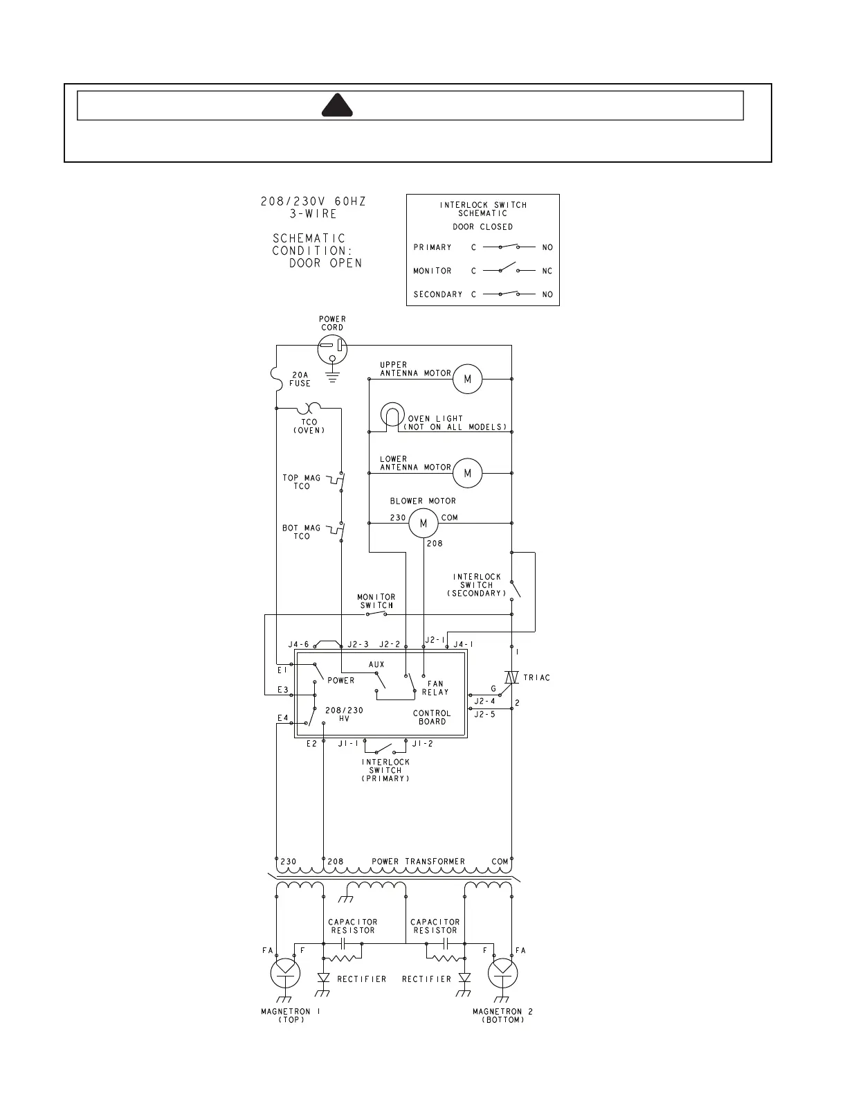
Schematic Diagram
Sample w/ CPI Control Current Production started at S/N 0911102348

Related product manuals