EasyManua.ls Logo

ACP MOC24 - Page 13

ACP MOC24
29 pages
Print Icon
To Next Page IconTo Next Page
To Next Page IconTo Next Page
To Previous Page IconTo Previous Page
To Previous Page IconTo Previous Page
Loading...
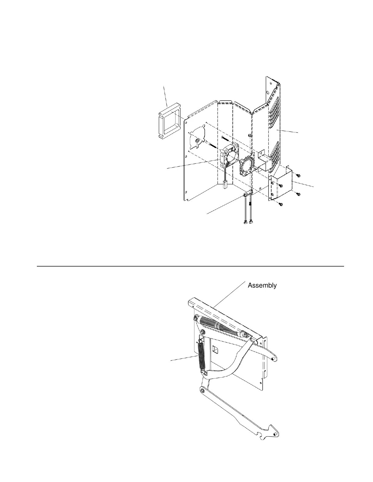
OVEN CONSTRUCTION
11
Lower Back Panel
Cavity Exhaust Gasket
Cavity Exhaust Fan Motor
Cavity TCO
Cavity Fan Hood
Cavity Exhaust
Motor Gasket
Lower Back
Panel
Cavity Exhaust
Fan Motor
Cavity Fan
Hood
Cavity TCO
Hinge Assembly
Hinge Spring
Hinge
Spring
Hinge
Assembly

Related product manuals